Property
Beds
3
Full Baths
3
1/2 Baths
1
Year Built
2026
Sq.Footage
1,911
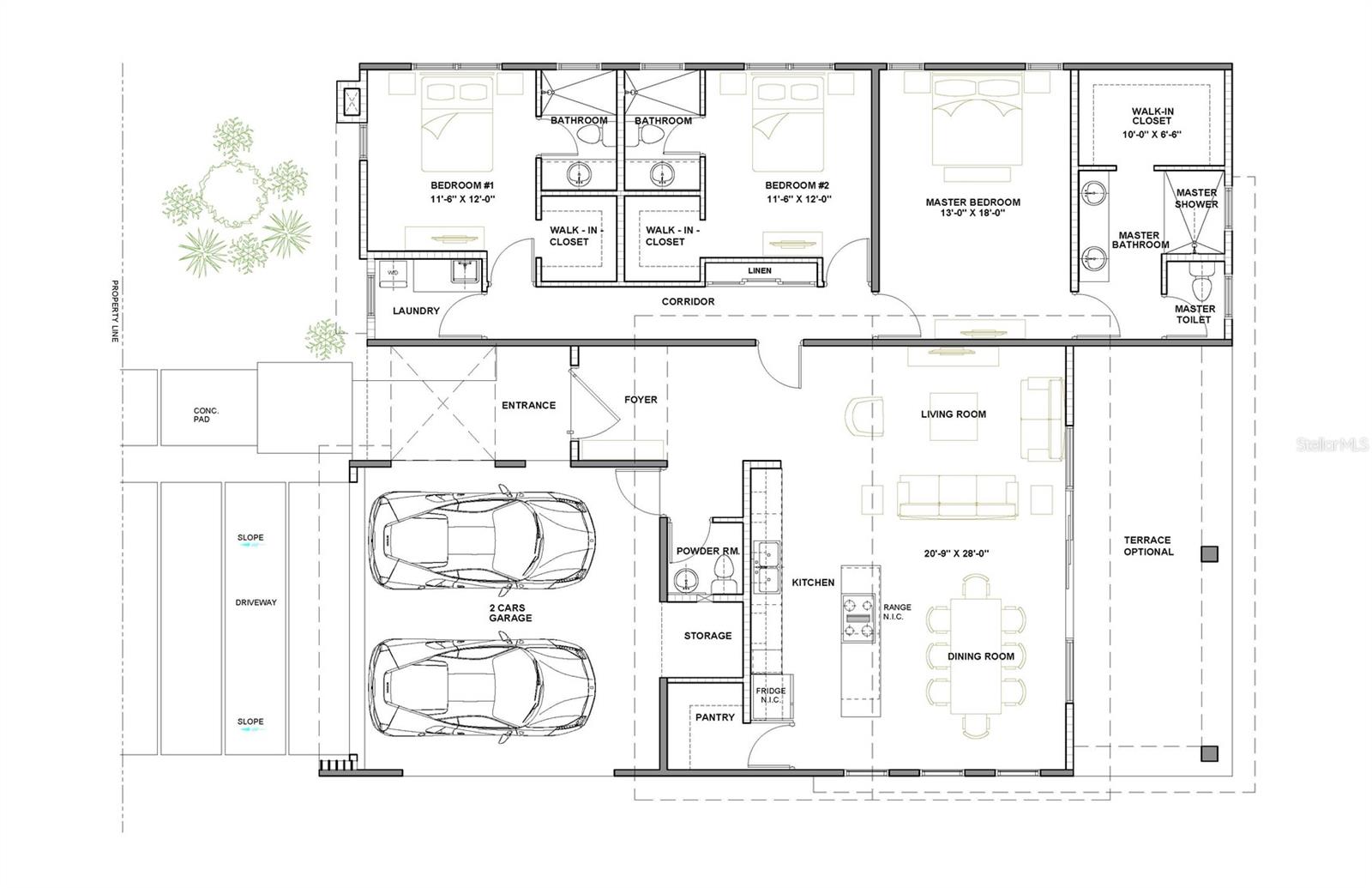
One or more photo(s) has been virtually staged. Pre-Construction. To be built. Discover luxury living in this stunning 3-bedroom, 3.5-bath pre-construction home located in The Views Reserve, a private gated community within Palmas del Mar. Offered at $775,550, this is a unique opportunity to secure pre-construction pricing on one of the development’s premier residences. Unit 17 sits on a generous 1,825.56 square meter lot and features 2,577 square feet of thoughtfully designed construction. Positioned as a corner unit in a tranquil cul-de-sac, the home offers added privacy and space. The open-concept layout boasts soaring 16-foot ceilings, a modern kitchen with quartz countertops and full backsplash, and a spacious great room ideal for entertaining. Each bedroom includes a walk-in closet, and the master suite offers a private bathroom with dual walk-ins. Additional features include a 2-car garage, laundry room, solar water heater, electric car charging outlet, and optional 370-square-foot terrace. Built with eco-friendly materials and impact-resistant windows, the home is also generator and solar panel-ready. Residents enjoy access to Palmas del Mar’s extensive resort amenities, including two championship golf courses, tennis and pickleball courts, an equestrian center, private beach club, marina, restaurants, and 24/7 security. The initiation fee for PAC Membership is included.
Features & Amenities
Interior
-
Other Interior Features
Open Floorplan, Stone Counters, Walk-In Closet(s)
-
Total Bedrooms
3
-
Bathrooms
3
-
1/2 Bathrooms
1
-
Cooling YN
NO
-
Cooling
N/A
-
Fireplace YN
NO
-
Heating YN
NO
-
Heating
None
-
Pet friendly
Yes
Exterior
-
Garage
Yes
-
Garage spaces
2
-
Construction Materials
Concrete
-
Other Exterior Features
Other
-
Parking
Attached
-
Pool
No
-
Waterfront YN
NO
-
View
Garden
Area & Lot
-
Lot Size(acres)
0.45
-
Property Type
Residential
-
Property Sub Type
Single Family Residence
Price
-
Sales Price
$775,550
-
Sq. Footage
1, 911
-
Price/SqFt
$405
HOA
-
Association
NO
School District
-
Elementary School
N/A
-
Middle School
N/A
-
High School
N/A
Property Features
-
Foundation Details
Concrete Perimeter
-
Ownership
Fee Simple
-
Sewer
Private Sewer
Schedule a Showing
Showing scheduled successfully.
Mortgage calculator
Estimate your monthly mortgage payment, including the principal and interest, property taxes, and HOA. Adjust the values to generate a more accurate rate.
Your payment
Principal and Interest:
$
Property taxes:
$
HOA fees:
$
Total loan payment:
$
Total interest amount:
$
Location
County
Humacao
Elementary School
Middle School
High School
Listing Courtesy of Ricardo Casillas , CASILLAS REALTY GROUP DBA
RealHub Information is provided exclusively for consumers' personal, non-commercial use, and it may not be used for any purpose other than to identify prospective properties consumers may be interested in purchasing. All information deemed reliable but not guaranteed and should be independently verified. All properties are subject to prior sale, change or withdrawal. RealHub website owner shall not be responsible for any typographical errors, misinformation, misprints and shall be held totally harmless.

FOUNDER
DanielleUrtnowski
Call Danielle today to schedule a private showing.

* Listings on this website come from the FMLS IDX Compilation and may be held by brokerage firms other than the owner of this website. The listing brokerage is identified in any listing details. Information is deemed reliable but is not guaranteed. If you believe any FMLS listing contains material that infringes your copyrighted work please click here to review our DMCA policy and learn how to submit a takedown request.© 2024 FMLS.
