Property
Beds
3
Full Baths
3
1/2 Baths
1
Year Built
2026
Sq.Footage
1,911
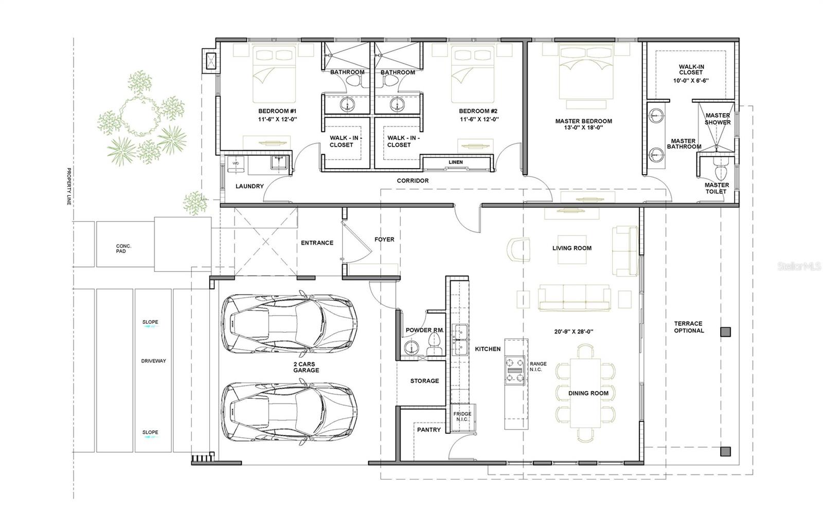
One or more photo(s) has been virtually staged. Pre-Construction. To be built. Resort-Style Living in Palmas del Mar: Elegant New Estate Home Take advantage of pre-construction pricing with this exceptional opportunity at The Views Reserve, a premier gated enclave in Palmas del Mar. Priced at $715,000, this elegant 3-bedroom, 3.5-bath residence offers 2,577 sq ft of thoughtfully designed living space on a generous 1,064.61 sqm lot, ideally positioned on a quiet cul-de-sac for maximum privacy and tranquility. Construction is scheduled to begin in September, giving you the perfect window to secure your place in this exclusive community.. Inside, enjoy a bright, open layout with 16-foot ceilings in the main living areas, a modern kitchen with quartz countertops and full backsplash, and a generous pantry. The master suite features a private bath and large walk-in closet, while all bedrooms offer walk-in closets of their own. The home also includes a powder room, laundry room, 2-car covered garage with EV charging outlet, and the option to add a 370 sq ft covered terrace ideal for outdoor entertaining. Eco-friendly features include impact-resistant windows, a solar water heater, and readiness for a backup generator and solar panel system. Residents at The Views Reserve will enjoy access to all of Palmas del Mar’s world-class amenities including over 15 restaurants, a renowned K-12 school, equestrian center, full-service marina, beaches, golf courses, tennis and pickleball facilities, and a lively beach club. Secure your place in paradise. This is your moment to invest in resort-style living at a rare pre-construction price.
Features & Amenities
Interior
-
Other Interior Features
Open Floorplan, Stone Counters, Walk-In Closet(s)
-
Total Bedrooms
3
-
Bathrooms
3
-
1/2 Bathrooms
1
-
Cooling YN
NO
-
Cooling
N/A
-
Fireplace YN
NO
-
Heating YN
NO
-
Heating
None
-
Pet friendly
Yes
Exterior
-
Garage
Yes
-
Garage spaces
2
-
Construction Materials
Concrete
-
Other Exterior Features
Other
-
Parking
Attached
-
Pool
No
-
Waterfront YN
NO
-
View
Garden
Area & Lot
-
Lot Size(acres)
0.26
-
Property Type
Residential
-
Property Sub Type
Single Family Residence
Price
-
Sales Price
$725,000
-
Sq. Footage
1, 911
-
Price/SqFt
$379
HOA
-
Association
NO
School District
-
Elementary School
N/A
-
Middle School
N/A
-
High School
N/A
Property Features
-
Foundation Details
Concrete Perimeter
-
Ownership
Fee Simple
-
Sewer
Private Sewer
Schedule a Showing
Showing scheduled successfully.
Mortgage calculator
Estimate your monthly mortgage payment, including the principal and interest, property taxes, and HOA. Adjust the values to generate a more accurate rate.
Your payment
Principal and Interest:
$
Property taxes:
$
HOA fees:
$
Total loan payment:
$
Total interest amount:
$
Location
County
Humacao
Elementary School
Middle School
High School
Listing Courtesy of Ricardo Casillas , CASILLAS REALTY GROUP DBA
RealHub Information is provided exclusively for consumers' personal, non-commercial use, and it may not be used for any purpose other than to identify prospective properties consumers may be interested in purchasing. All information deemed reliable but not guaranteed and should be independently verified. All properties are subject to prior sale, change or withdrawal. RealHub website owner shall not be responsible for any typographical errors, misinformation, misprints and shall be held totally harmless.

FOUNDER
DanielleUrtnowski
Call Danielle today to schedule a private showing.

* Listings on this website come from the FMLS IDX Compilation and may be held by brokerage firms other than the owner of this website. The listing brokerage is identified in any listing details. Information is deemed reliable but is not guaranteed. If you believe any FMLS listing contains material that infringes your copyrighted work please click here to review our DMCA policy and learn how to submit a takedown request.© 2024 FMLS.
