Property
Beds
4
Full Baths
3
1/2 Baths
1
Year Built
2016
Sq.Footage
3,118
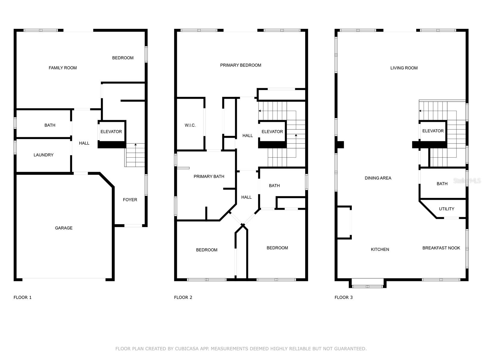
Coastal Luxury Living in Beverly Beach – Saltwater Canal Home with Private Dock. Lock in this home and up to *10,000 flex cash with our preferred lender. Welcome to your dream waterfront retreat in Beverly Beach, Florida, ideally located off scenic A1A and nestled between the Atlantic Ocean and the Intracoastal Waterway (ICW). This stunning three-story saltwater canal home offers the best of Florida coastal living with 3 bedrooms, 3.5 baths, and a private in-law suite on the first floor — all accessible by a convenient elevator. The second level features a spacious primary suite with a sitting area and a private balcony overlooking the canal. The luxurious primary bathroom includes a double walk-in tiled shower with a rain shower head, a garden tub, double vanities, and elegant quartz countertops. Two additional bedrooms and another full bath complete the floor. On the third level, enjoy light-filled living with an open-concept design, a custom built-in entertainment center, and a third balcony with canal views. The chef’s kitchen features a large island, tile backsplash, Monogram stainless steel appliances, and plenty of prep and storage space. A formal dining area, breakfast nook or sitting space, and abundant windows create a welcoming and airy ambiance. Outside, unwind on the paver lanai complete with a hot tub, fire pit, and ample seating space — all overlooking the peaceful canal. Just steps away is your private dock with boat lift, offering direct access to the ICW in minutes — a paradise for boaters and water lovers. Additional features include a 2-car garage with paver driveway, a neighborhood community dock, and a private beach walkover just a short stroll away. You're also conveniently located near local restaurants, shops, and attractions — with Daytona Beach and St. Augustine just a short drive away. Whether you’re looking to relax by the ocean, explore the waterways, or enjoy the best of small-town charm with easy access to city amenities, this Beverly Beach gem has it all. Don’t miss your chance to live where luxury meets laid-back coastal lifestyle — schedule your showing today!
Features & Amenities
Interior
-
Other Interior Features
Built-in Features, Crown Molding, Eat-in Kitchen, Elevator, High Ceilings, Open Floorplan
-
Total Bedrooms
4
-
Bathrooms
3
-
1/2 Bathrooms
1
-
Cooling YN
YES
-
Cooling
Central Air
-
Fireplace YN
NO
-
Heating YN
YES
-
Heating
Electric, Heat Pump
-
Pet friendly
Yes
Exterior
-
Garage
Yes
-
Garage spaces
2
-
Construction Materials
Concrete, HardiPlank Type, Stucco
-
Other Exterior Features
Balcony, Lighting, Rain Gutters, Dock
-
Parking
Attached
-
Pool
No
-
Waterfront YN
YES
-
View
Water
Area & Lot
-
Lot Features
Waterfront
-
Lot Size(acres)
0.08
-
Property Type
Residential
-
Property Sub Type
Single Family Residence
Price
-
Sales Price
$999,000
-
Tax Amount
9119.01
-
Sq. Footage
3, 118
-
Price/SqFt
$320
HOA
-
Association
YES
-
Association Fee
$365
-
Association Fee Frequency
Monthly
-
Association Fee Includes
N/A
School District
-
Elementary School
Old Kings Elementary
-
Middle School
Buddy Taylor Middle
-
High School
Flagler-Palm Coast High
Property Features
-
Stories
3
-
Foundation Details
Concrete Perimeter
-
Ownership
Fee Simple
-
Senior Community YN
NO
-
Sewer
Public Sewer
-
Tax Lot
10
-
Water Source
Public
Schedule a Showing
Showing scheduled successfully.
Mortgage calculator
Estimate your monthly mortgage payment, including the principal and interest, property taxes, and HOA. Adjust the values to generate a more accurate rate.
Your payment
Principal and Interest:
$
Property taxes:
$
HOA fees:
$
Total loan payment:
$
Total interest amount:
$
Location
County
Flagler
Elementary School
Old Kings Elementary
Middle School
Buddy Taylor Middle
High School
Flagler-Palm Coast High
Listing Courtesy of DANIELLE COLVIN , FLAGLER REALTY PROFESSIONALS L
RealHub Information is provided exclusively for consumers' personal, non-commercial use, and it may not be used for any purpose other than to identify prospective properties consumers may be interested in purchasing. All information deemed reliable but not guaranteed and should be independently verified. All properties are subject to prior sale, change or withdrawal. RealHub website owner shall not be responsible for any typographical errors, misinformation, misprints and shall be held totally harmless.

FOUNDER
DanielleUrtnowski
Call Danielle today to schedule a private showing.

* Listings on this website come from the FMLS IDX Compilation and may be held by brokerage firms other than the owner of this website. The listing brokerage is identified in any listing details. Information is deemed reliable but is not guaranteed. If you believe any FMLS listing contains material that infringes your copyrighted work please click here to review our DMCA policy and learn how to submit a takedown request.© 2024 FMLS.
