Property
Beds
5
Full Baths
2
1/2 Baths
1
Year Built
2019
Sq.Footage
3,200
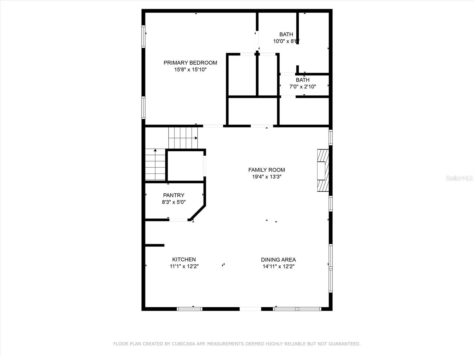
Coastal living at its finest! This custom-built, three-story retreat offers an unbeatable blend of quality craftsmanship, stunning water views, and prime beachside convenience! Enjoy breathtaking Intracoastal view sunsets, sunrises and ocean breezes from expansive covered decks on both the second and third floors. Decks are Fiber glassed like a boat and will never leak! You’ll have private deeded beach access just steps away, allowing you to have your toes in the sand within minutes. With 5 bedrooms, 2.5 bathrooms, and over 3,200 sq. ft. of thoughtfully designed living space, this home is built for both comfort and entertaining. Designed with durability and efficiency in mind, this home is concrete-sided, including soffits for hurricane protection and strategically set back on the lot to maximize unobstructed views. 10 ft ceilings on all floors to optimize third floor views with a low-profile roof, for low wind-impact. Two zone HVAC. All walls and floors between levels are insulated for quiet and peaceful enjoyment within all the individual spaces and maximizing energy as well. The elevator shaft has already been built and pre-wired so it’s ready to go for those who desire an elevator or simply leave them in their current use for tons of extra storage spaces! The third level is the heart of the home, featuring an elegant open-concept living area, a beautiful & functional kitchen with gorgeous backsplash, soft-close cabinetry, walk-in pantry providing ample storage. Cozy up by the fireplace and soak in the serene coastal ambiance. For convenience, there is also a guest half bath on this level. The large primary suite will be where you love to unwind after a long day with its spacious yet warm space which includes plenty of closet space and a fabulous oversized upgraded designer tiled walk-in shower. The second level hosts a full bathroom and four guest rooms, each with private balcony access while the first-floor office/den opens to the backyard, perfect for enjoying Flagler Beach’s captivating sea breezes. Not to mention over 30 palm trees for just an absolute tropical, inviting vibe that you will long to get home to each day! With a one-car garage, two covered parking spaces, and a spacious driveway for extra vehicles and all your water enthusiast toys, this home offers the ultimate Florida lifestyle in a tucked-away location just off Ocean Shore Blvd. Don't miss this rare opportunity to own a stunning coastal escape in beautiful Flagler Beach! Flagler Beach offers six miles of uncrowded shoreline, ocean view dining, parks, fishing spots, surf-able waves and a friendly laid-back atmosphere just south of St. Augustine and just north of Ormond/Daytona Beach. A short drive away to the center of town, near dining, shopping and more. This home will be where your heart is, do not delay! Your private tour of your new home is awaiting!
Features & Amenities
Interior
-
Other Interior Features
Built-in Features, Open Floorplan, Vaulted Ceiling(s), Walk-In Closet(s)
-
Total Bedrooms
5
-
Bathrooms
2
-
1/2 Bathrooms
1
-
Cooling YN
YES
-
Cooling
Central Air
-
Fireplace YN
YES
-
Heating YN
YES
-
Heating
Central, Electric
-
Pet friendly
N/A
Exterior
-
Garage
Yes
-
Garage spaces
1
-
Construction Materials
Concrete
-
Other Exterior Features
Lighting
-
Parking
Attached
-
Patio and Porch Features
Covered, Front Porch, Rear Porch
-
Pool
No
-
Waterfront YN
NO
-
View
Water, Trees/Woods
Area & Lot
-
Lot Features
Cul-De-Sac
-
Lot Size(acres)
0.18
-
Property Type
Residential
-
Property Sub Type
Single Family Residence
-
Architectural Style
Coastal, Custom
Price
-
Sales Price
$899,000
-
Tax Amount
4780.0
-
Sq. Footage
3, 200
-
Price/SqFt
$280
HOA
-
Association
NO
School District
-
Elementary School
N/A
-
Middle School
N/A
-
High School
N/A
Property Features
-
Stories
3
-
Foundation Details
Slab
-
Ownership
Fee Simple
-
Senior Community YN
NO
-
Sewer
Public Sewer
-
Tax Lot
23
-
Water Source
Public
Schedule a Showing
Showing scheduled successfully.
Mortgage calculator
Estimate your monthly mortgage payment, including the principal and interest, property taxes, and HOA. Adjust the values to generate a more accurate rate.
Your payment
Principal and Interest:
$
Property taxes:
$
HOA fees:
$
Total loan payment:
$
Total interest amount:
$
Location
County
Flagler
Elementary School
Middle School
High School
Listing Courtesy of BJ Patton , KELLER WILLIAMS RLTY FL. PARTN
RealHub Information is provided exclusively for consumers' personal, non-commercial use, and it may not be used for any purpose other than to identify prospective properties consumers may be interested in purchasing. All information deemed reliable but not guaranteed and should be independently verified. All properties are subject to prior sale, change or withdrawal. RealHub website owner shall not be responsible for any typographical errors, misinformation, misprints and shall be held totally harmless.

FOUNDER
DanielleUrtnowski
Call Danielle today to schedule a private showing.

* Listings on this website come from the FMLS IDX Compilation and may be held by brokerage firms other than the owner of this website. The listing brokerage is identified in any listing details. Information is deemed reliable but is not guaranteed. If you believe any FMLS listing contains material that infringes your copyrighted work please click here to review our DMCA policy and learn how to submit a takedown request.© 2024 FMLS.
