Property
Beds
4
Full Baths
3
1/2 Baths
None
Year Built
2005
Sq.Footage
2,990
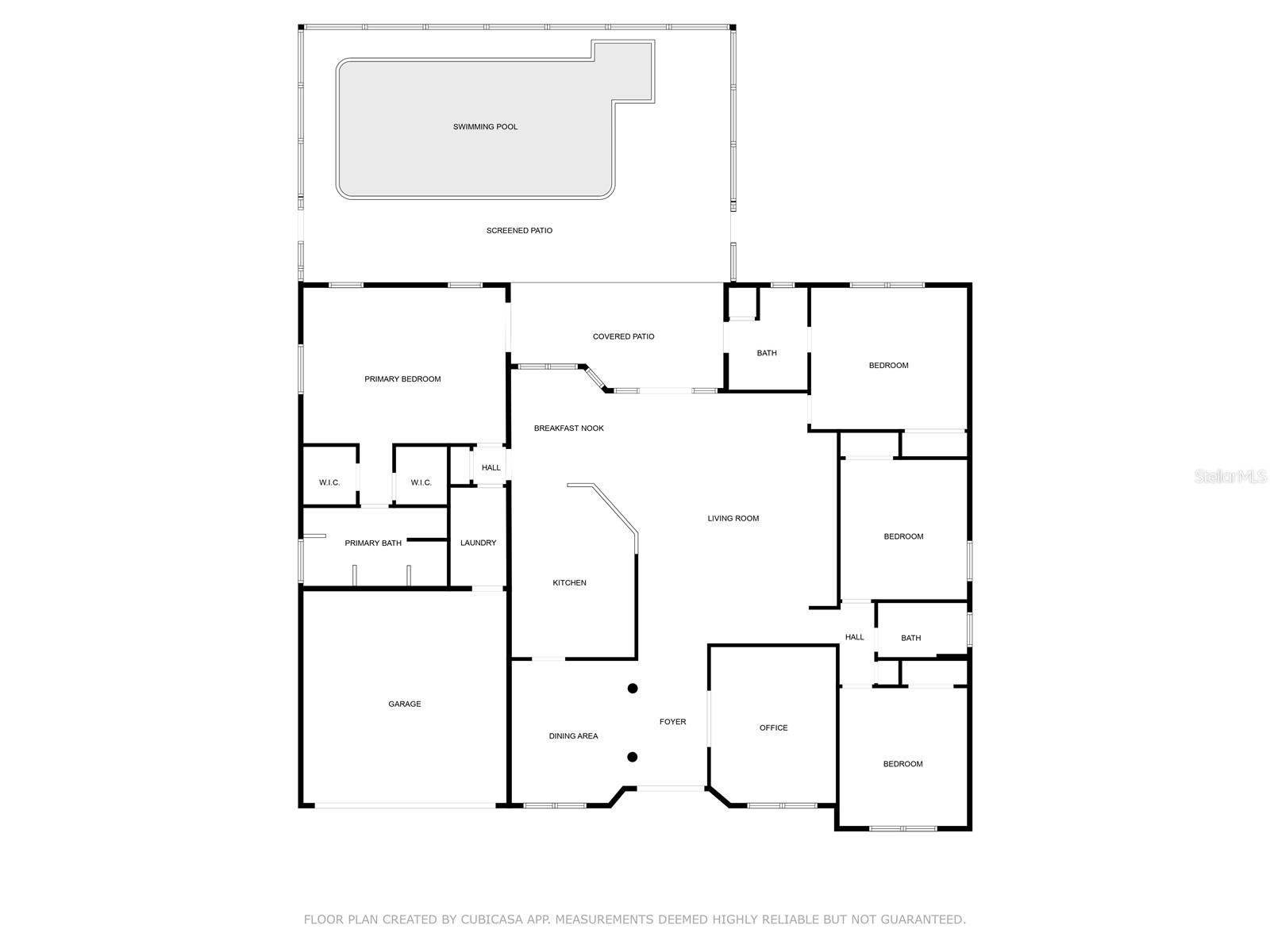
Tucked away in the beautiful community of Ormond Lakes, this lakefront pool home is the perfect mix of comfort, style, and everyday practicality. With 4 bedrooms, 3 baths, and a 2-car garage, it has the space you need, plus all the upgrades you'll love including a freshly sealed driveway that adds to the home's curb appeal right from the start. Roof 2022 / AC 2015 / HWH 2020. From the moment you step inside, you'll feel how open and inviting this home is. Over 11-foot ceilings, fresh interior paint, and upgraded lighting fixtures create a bright, welcoming atmosphere. The heart of the home is the newly renovated kitchen completely redone for the pickiest of buyers. You'll find sleek quartz countertops, stainless steel appliances, and plenty of cabinet space. The kitchen flows easily into the living and dining areas, making it ideal for gatherings and everyday living. There's also a bonus room that works perfectly as an office, playroom, or flex space. The primary suite is designed for relaxation, with a spa-like bathroom featuring his-and-her vanities, a soaking tub, a walk-in shower, and two spacious walk-in closets. One of the closets is reinforced to double as a safe room. Engineered wood flooring runs throughout much of the home, tying everything together with a warm, classic feel. Step outside and you'll see why this home is truly special. The 2013 saltwater pool sparkles under the Florida sun, surrounded by travertine decking that's been freshly sealed. Enjoy peace of mind with a Brand New 2025 Pool Heater, 2025 Salt Cell, and 2025 Jandy AquaLink Remote to enable pool control at your finger tips. The lanai is perfect for relaxing or entertaining, and it comes equipped with a full-length electric hurricane shutter that spans the entire patio, protecting the home at the push of a button. Beyond the pool, the peaceful lake views and mature landscaping create a private backyard oasis. The pool equipment updates, along with a newer roof (just 3 years old), you can enjoy your dream home worry-free. Practical touches like all the toilets outfitted with bidets, a generator hook-up and a mounted A/C wall unit in the garage make everyday life easier. And when you live in Ormond Lakes, you're not just buying a home, you're joining a community. Ormond Lakes features several miles of walking and biking sidewalks, newly updated clubhouse, tennis, fishing pier, community pool, easy access to I-95, and is located several minutes from Tomoka State Park. Square footage from tax rolls. All info intended to be accurate but can't be guaranteed.
Features & Amenities
Interior
-
Other Interior Features
Built-in Features, High Ceilings
-
Total Bedrooms
4
-
Bathrooms
3
-
Cooling YN
YES
-
Cooling
Central Air, Wall/Window Unit(s)
-
Fireplace YN
NO
-
Heating YN
YES
-
Heating
Central
-
Pet friendly
Cats OK, Dogs OK
Exterior
-
Garage
Yes
-
Garage spaces
2
-
Construction Materials
Block, Concrete
-
Parking
Attached
-
Pool
Yes
-
Pool Features
In Ground, Salt Water, Private
-
Waterfront YN
YES
-
View
Lake, Pond, Water
Area & Lot
-
Lot Features
Waterfront
-
Lot Size(acres)
0.41
-
Property Type
Residential
-
Property Sub Type
Single Family Residence
Price
-
Sales Price
$725,000
-
Tax Amount
8888.04
-
Sq. Footage
2, 990
-
Price/SqFt
$242
HOA
-
Association
YES
-
Association Fee
$279
-
Association Fee Frequency
Quarterly
-
Association Fee Includes
N/A
School District
-
Elementary School
N/A
-
Middle School
N/A
-
High School
N/A
Property Features
-
Stories
1
-
Association Amenities
Clubhouse, Pool, Tennis Court(s)
-
Foundation Details
Slab
-
Ownership
Fee Simple
-
Senior Community YN
NO
-
Sewer
Public Sewer
-
Tax Lot
1
-
Water Source
Public
Schedule a Showing
Showing scheduled successfully.
Mortgage calculator
Estimate your monthly mortgage payment, including the principal and interest, property taxes, and HOA. Adjust the values to generate a more accurate rate.
Your payment
Principal and Interest:
$
Property taxes:
$
HOA fees:
$
Total loan payment:
$
Total interest amount:
$
Location
County
Volusia
Elementary School
Middle School
High School
Listing Courtesy of Jonathan Gildon, PA , REALTY PROS ASSURED
RealHub Information is provided exclusively for consumers' personal, non-commercial use, and it may not be used for any purpose other than to identify prospective properties consumers may be interested in purchasing. All information deemed reliable but not guaranteed and should be independently verified. All properties are subject to prior sale, change or withdrawal. RealHub website owner shall not be responsible for any typographical errors, misinformation, misprints and shall be held totally harmless.

FOUNDER
DanielleUrtnowski
Call Danielle today to schedule a private showing.

* Listings on this website come from the FMLS IDX Compilation and may be held by brokerage firms other than the owner of this website. The listing brokerage is identified in any listing details. Information is deemed reliable but is not guaranteed. If you believe any FMLS listing contains material that infringes your copyrighted work please click here to review our DMCA policy and learn how to submit a takedown request.© 2024 FMLS.
