Property
Beds
3
Full Baths
2
1/2 Baths
None
Year Built
1994
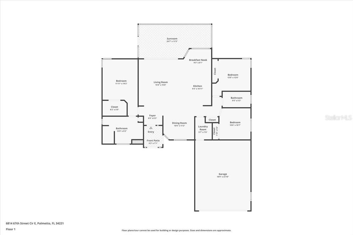
Sq.Footage
1,506
A Beautiful Blend of Style, Comfort, and Convenience! Located in the highly sought-after Heather Glen community, this immaculate 3-bedroom, 2-bathroom home offers the perfect combination of modern living and serene surroundings. Built in 1994, the home features a light and airy open-concept layout designed for today's lifestyle. Step inside to discover a spacious living area with neutral tones, vaulted ceilings and oversized plank tile flooring, creating a warm and inviting atmosphere. The gourmet kitchen boasts quartz countertops, stainless steel appliances, a large center island and a beautiful skylight ideal for both everyday living and entertaining. The private owner's suite is a true retreat, complete with a large walk-in closet and an elegant en-suite bath with dual sinks and a glass-enclosed walk-in shower. Two additional bedrooms provide ample space for family, guests, or a home office. For your peace of mind the home has a new 2025 Roof, Newer AC, and Newer Plumbing. Enjoy peaceful evenings on the covered lanai overlooking the fully fenced backyard with plenty of room for a pool, perfect for pets, play, or relaxing under the Florida sun. The home also features a 2-car garage. Heather Glen is convenient to I-75, 1-275 and you can walk to Elementary and Middle schools, sports fields, a dog park and even an 18 hole golf course. Conveniently located near I-75 and 1-275, you'll have quick access to Tampa, St. Pete, Sarasota, and the area's world-famous beaches. Move-in ready and loaded with upgrades-this home is a must-see!
Features & Amenities
Interior
-
Total Bedrooms
3
-
Bathrooms
2
-
Cooling YN
YES
-
Cooling
Central Air
-
Fireplace YN
NO
-
Heating YN
YES
-
Heating
Central
-
Pet friendly
No
Exterior
-
Garage
Yes
-
Garage spaces
2
-
Construction Materials
Block, Stucco
-
Other Exterior Features
Lighting
-
Parking
Attached
-
Pool
No
-
Waterfront YN
NO
Area & Lot
-
Lot Size(acres)
0.28
-
Property Type
Residential
-
Property Sub Type
Single Family Residence
Price
-
Sales Price
$399,888
-
Tax Amount
1173.16
-
Sq. Footage
1, 506
-
Price/SqFt
$265
HOA
-
Association
YES
-
Association Fee
$394
-
Association Fee Frequency
Annually
-
Association Fee Includes
N/A
School District
-
Elementary School
N/A
-
Middle School
N/A
-
High School
N/A
Property Features
-
Stories
1
-
Foundation Details
Slab
-
Ownership
Fee Simple
-
Senior Community YN
NO
-
Sewer
Public Sewer
-
Tax Lot
6
-
Water Source
Public
Schedule a Showing
Showing scheduled successfully.
Mortgage calculator
Estimate your monthly mortgage payment, including the principal and interest, property taxes, and HOA. Adjust the values to generate a more accurate rate.
Your payment
Principal and Interest:
$
Property taxes:
$
HOA fees:
$
Total loan payment:
$
Total interest amount:
$
Location
County
Manatee
Elementary School
Middle School
High School
Listing Courtesy of Andre Ciappetta , DALTON WADE INC
RealHub Information is provided exclusively for consumers' personal, non-commercial use, and it may not be used for any purpose other than to identify prospective properties consumers may be interested in purchasing. All information deemed reliable but not guaranteed and should be independently verified. All properties are subject to prior sale, change or withdrawal. RealHub website owner shall not be responsible for any typographical errors, misinformation, misprints and shall be held totally harmless.

FOUNDER
DanielleUrtnowski
Call Danielle today to schedule a private showing.

* Listings on this website come from the FMLS IDX Compilation and may be held by brokerage firms other than the owner of this website. The listing brokerage is identified in any listing details. Information is deemed reliable but is not guaranteed. If you believe any FMLS listing contains material that infringes your copyrighted work please click here to review our DMCA policy and learn how to submit a takedown request.© 2024 FMLS.
