Property
Beds
3
Full Baths
2
1/2 Baths
None
Year Built
1960
Sq.Footage
928
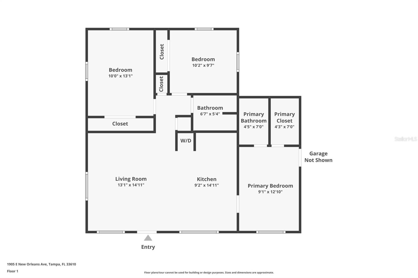
Welcome to 1905 E New Orleans Avenue — where modern living meets timeless charm in the heart of Tampa. This inviting 3-bedroom, 2-bath block home offers the perfect blend of style, comfort, and location, making it an ideal choice for today’s homeowner seeking both convenience and character. Step inside to discover a bright, open-concept layout filled with natural light. The living area flows seamlessly into a thoughtfully designed kitchen with sleek countertops, modern cabinetry, and stainless steel appliances — a perfect space for entertaining friends or enjoying cozy nights at home. The primary suite offers a peaceful retreat with a walk-in closet and updated en-suite bathroom, while two additional bedrooms provide flexibility for guests, a home office, or a growing family. Both bathrooms have been tastefully refreshed with modern fixtures and finishes, creating a polished, move-in-ready experience from day one. Outside, you’ll find a fully fenced backyard — a rare bonus in the city — ideal for pets, gardening, playtime, or weekend gatherings. With a roof replaced in 2014, a new HVAC system in 2021, and an insurable electrical panel, many major updates have already been taken care of, offering peace of mind for years to come. The home is also located in a non-flood zone, keeping insurance costs manageable. While there are a few light handyman touches you may choose to personalize, the property has been very well maintained and is truly move-in ready. The seller has priced this home strategically based on current market conditions, location, and condition, making it one of the most cost-effective options in the area. They are open to a wide range of financing options, including VA, FHA, conventional loans, and down payment assistance programs. Location is everything, and this property delivers. Situated in a vibrant and rapidly growing neighborhood, you’re just minutes from Downtown Tampa, historic Ybor City, and an array of award-winning restaurants, coffee shops, nightlife, parks, and cultural landmarks. Commuters will appreciate easy access to major highways and public transit, while nature lovers will enjoy nearby green spaces like McKay Bay Nature Park and the Tampa Riverwalk. Whether you’re a first-time buyer, relocating to the area, or looking for an affordable and stylish upgrade, 1905 E New Orleans Avenue offers a rare opportunity to own a well-maintained, updated home with unbeatable value in one of Tampa’s most promising areas. Don’t miss your chance — schedule a private showing today and see why this home is such a smart move in today’s market!
Features & Amenities
Interior
-
Total Bedrooms
3
-
Bathrooms
2
-
Cooling YN
YES
-
Cooling
Central Air
-
Fireplace YN
NO
-
Heating YN
YES
-
Heating
Central
-
Pet friendly
N/A
Exterior
-
Garage
No
-
Construction Materials
Block, Concrete
-
Other Exterior Features
Lighting
-
Parking
Assigned, Driveway
-
Pool
No
-
Waterfront YN
NO
-
View
Trees/Woods
Area & Lot
-
Lot Features
Cleared, Landscaped
-
Lot Size(acres)
0.13
-
Property Type
Residential
-
Property Sub Type
Single Family Residence
Price
-
Sales Price
$289,000
-
Tax Amount
1727.44
-
Sq. Footage
928
-
Price/SqFt
$311
HOA
-
Association
NO
School District
-
Elementary School
Edison-HB
-
Middle School
N/A
-
High School
Middleton-HB
Property Features
-
Stories
1
-
Foundation Details
Slab
-
Ownership
Fee Simple
-
Senior Community YN
NO
-
Sewer
Public Sewer
-
Tax Lot
9
-
Water Source
Public
Schedule a Showing
Showing scheduled successfully.
Mortgage calculator
Estimate your monthly mortgage payment, including the principal and interest, property taxes, and HOA. Adjust the values to generate a more accurate rate.
Your payment
Principal and Interest:
$
Property taxes:
$
HOA fees:
$
Total loan payment:
$
Total interest amount:
$
Location
County
Hillsborough
Elementary School
Edison-HB
Middle School
High School
Middleton-HB
Listing Courtesy of Lance Willard LLC , CHARLES RUTENBERG REALTY INC
RealHub Information is provided exclusively for consumers' personal, non-commercial use, and it may not be used for any purpose other than to identify prospective properties consumers may be interested in purchasing. All information deemed reliable but not guaranteed and should be independently verified. All properties are subject to prior sale, change or withdrawal. RealHub website owner shall not be responsible for any typographical errors, misinformation, misprints and shall be held totally harmless.

FOUNDER
DanielleUrtnowski
Call Danielle today to schedule a private showing.

* Listings on this website come from the FMLS IDX Compilation and may be held by brokerage firms other than the owner of this website. The listing brokerage is identified in any listing details. Information is deemed reliable but is not guaranteed. If you believe any FMLS listing contains material that infringes your copyrighted work please click here to review our DMCA policy and learn how to submit a takedown request.© 2024 FMLS.
