Property
Beds
None
Full Baths
None
1/2 Baths
None
Year Built
1973
Sq.Footage
2,650
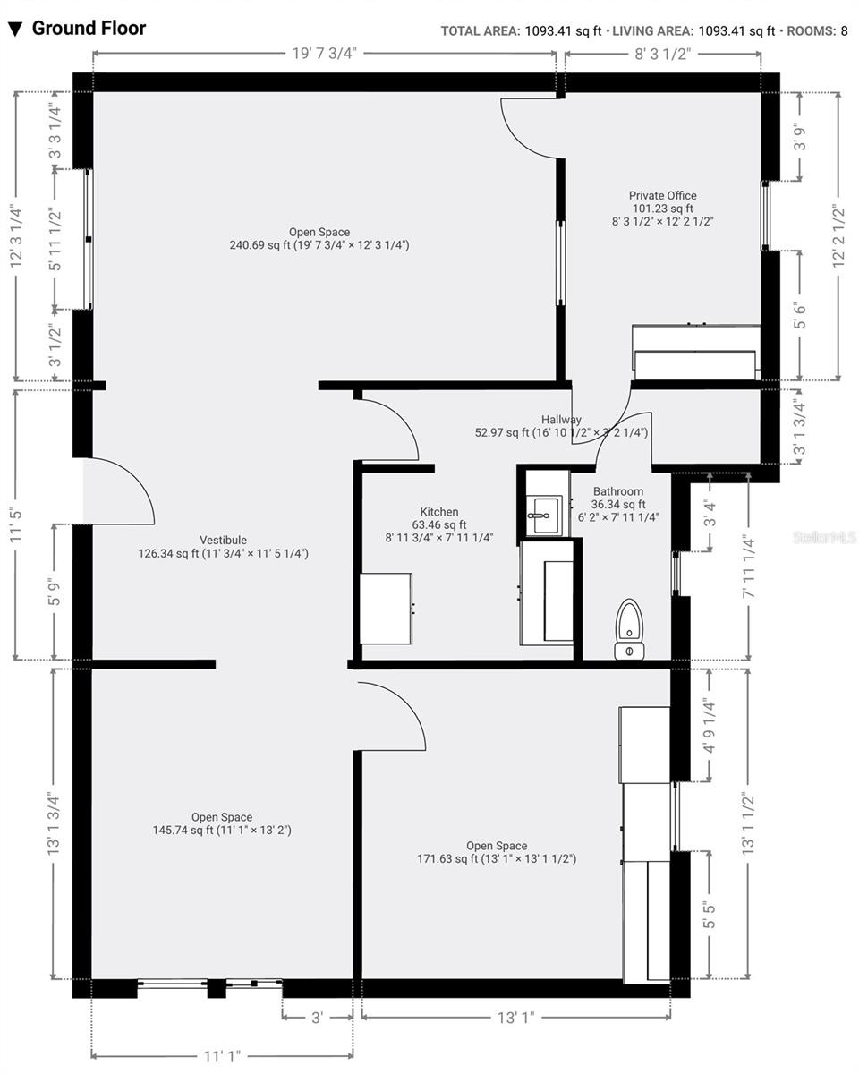
Office space available for lease on a high visibility main thoroughfare with excellent traffic counts. The space features three private offices, a dedicated conference room, kitchen, and private bathroom. Recently updated with fresh paint and tile flooring, the property is turnkey and ready for immediate occupancy. Ample parking is available in both the front and rear of the building, making this a convenient and professional setting for a variety of office use and potential retail usage. No pass-thrus and owner pays water. Tenant responsible for electricity.
Features & Amenities
Interior
-
Total Bedrooms
N/A
-
Bathrooms
N/A
-
Cooling YN
YES
-
Cooling
Central Air
-
Heating YN
YES
-
Heating
Central, Electric
-
Pet friendly
No
Exterior
-
Garage
No
-
Construction Materials
Brick
-
Pool
No
-
Waterfront YN
NO
Area & Lot
-
Lot Features
Paved
-
Lot Size(acres)
0.3
-
Property Type
Commercial Lease
-
Property Sub Type
Office
Price
-
Sales Price
$21,600
-
Tax Amount
5480.83
-
Sq. Footage
2, 650
-
Price/SqFt
$8
HOA
-
Association
No
School District
-
Elementary School
N/A
-
Middle School
N/A
-
High School
N/A
Property Features
-
Stories
1
-
Foundation Details
Slab
-
Sewer
Public Sewer
-
Tax Lot
0
-
Water Source
Public
Schedule a Showing
Showing scheduled successfully.
Mortgage calculator
Estimate your monthly mortgage payment, including the principal and interest, property taxes, and HOA. Adjust the values to generate a more accurate rate.
Your payment
Principal and Interest:
$
Property taxes:
$
HOA fees:
$
Total loan payment:
$
Total interest amount:
$
Location
County
Hillsborough
Elementary School
Middle School
High School
Listing Courtesy of Mac McGrath , MCGRATH POPPELL & CO., INC.
RealHub Information is provided exclusively for consumers' personal, non-commercial use, and it may not be used for any purpose other than to identify prospective properties consumers may be interested in purchasing. All information deemed reliable but not guaranteed and should be independently verified. All properties are subject to prior sale, change or withdrawal. RealHub website owner shall not be responsible for any typographical errors, misinformation, misprints and shall be held totally harmless.

FOUNDER
DanielleUrtnowski
Call Danielle today to schedule a private showing.

* Listings on this website come from the FMLS IDX Compilation and may be held by brokerage firms other than the owner of this website. The listing brokerage is identified in any listing details. Information is deemed reliable but is not guaranteed. If you believe any FMLS listing contains material that infringes your copyrighted work please click here to review our DMCA policy and learn how to submit a takedown request.© 2024 FMLS.

Related Properties
