Property
Beds
2
Full Baths
1
1/2 Baths
1
Year Built
1967
Sq.Footage
636
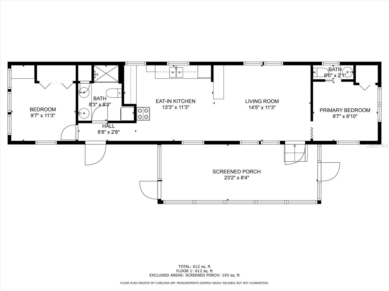
NO LOT RENT | TURNKEY 2BR/1.5BA IN 55+ CO-OP COMMUNITY Discover your perfect Florida retreat in this beautifully maintained 2-bedroom, 1.5-bath home located in a desirable 55+ co-op community—and yes, there’s NO LOT RENT! This move-in-ready home features a sought-after split floor plan and comes mostly furnished, so you can start enjoying the sunshine right away. The updated kitchen shines with stainless steel appliances, including a 2023 refrigerator, 2021 stove, and brand-new 2025 microwave. The main bath was fully renovated in 2022 and includes a walk-in shower & stackable washer and dryer (2022) for added convenience. Additional updates include a 2021 electrical panel, new windows in 2024, and a 2018 heat pump providing efficient central A/C. Hurricane straps add peace of mind during storm season. Stylish laminate flooring flows throughout, complemented by tile in the Florida room—perfect for relaxing, entertaining, or working from home. Step outside to a private patio ideal for grilling or outdoor dining. A 10x8 storage shed offers plenty of room for tools, beach gear, or hobby supplies. Located just steps from the community pool, this home is ideal for snowbirds or year-round residents seeking a low-maintenance Florida lifestyle. One resident must be 55 or older. The ultra-low co-op fee of just $180/month covers water, sewer, trash, common area maintenance, and use of the pool & other amenities like the shuffleboard & pool hall—plus your ownership share is included in the sale, meaning no lot rent ever! Enjoy optional social activities and friendly neighbors in this welcoming community. Home was tented in September, 2025 and comes with transferrable warranty. Co-op share included in purchase price. All appliances and most furniture stays. Cash buyers only.
Features & Amenities
Interior
-
Other Interior Features
Eat-in Kitchen, Open Floorplan
-
Total Bedrooms
2
-
Bathrooms
1
-
1/2 Bathrooms
1
-
Cooling YN
YES
-
Cooling
Central Air
-
Fireplace YN
NO
-
Heating YN
YES
-
Heating
Electric
-
Pet friendly
No
Exterior
-
Garage
No
-
Construction Materials
Metal Siding
-
Other Exterior Features
Storage
-
Patio and Porch Features
Patio
-
Pool
No
-
Waterfront YN
NO
Area & Lot
-
Lot Features
Paved
-
Lot Size(acres)
10.85
-
Property Type
Residential
-
Property Sub Type
Mobile Home
Price
-
Sales Price
$100,000
-
Tax Amount
898.43
-
Sq. Footage
636
-
Price/SqFt
$157
HOA
-
Association
YES
-
Association Fee
$180
-
Association Fee Frequency
Monthly
-
Association Fee Includes
N/A
School District
-
Elementary School
Seventy-Fourth St. Elem-PN
-
Middle School
Azalea Middle-PN
-
High School
Dixie Hollins High-PN
Property Features
-
Stories
1
-
Association Amenities
Clubhouse, Pool, Shuffleboard Court
-
Foundation Details
Pillar/Post/Pier
-
Ownership
Co-op
-
Senior Community YN
YES
-
Sewer
Public Sewer
-
Tax Lot
43
-
Water Source
Public
Schedule a Showing
Showing scheduled successfully.
Mortgage calculator
Estimate your monthly mortgage payment, including the principal and interest, property taxes, and HOA. Adjust the values to generate a more accurate rate.
Your payment
Principal and Interest:
$
Property taxes:
$
HOA fees:
$
Total loan payment:
$
Total interest amount:
$
Location
County
Pinellas
Elementary School
Seventy-Fourth St. Elem-PN
Middle School
Azalea Middle-PN
High School
Dixie Hollins High-PN
Listing Courtesy of Tracy Cooper , LPT REALTY, LLC
RealHub Information is provided exclusively for consumers' personal, non-commercial use, and it may not be used for any purpose other than to identify prospective properties consumers may be interested in purchasing. All information deemed reliable but not guaranteed and should be independently verified. All properties are subject to prior sale, change or withdrawal. RealHub website owner shall not be responsible for any typographical errors, misinformation, misprints and shall be held totally harmless.

FOUNDER
DanielleUrtnowski
Call Danielle today to schedule a private showing.

* Listings on this website come from the FMLS IDX Compilation and may be held by brokerage firms other than the owner of this website. The listing brokerage is identified in any listing details. Information is deemed reliable but is not guaranteed. If you believe any FMLS listing contains material that infringes your copyrighted work please click here to review our DMCA policy and learn how to submit a takedown request.© 2024 FMLS.
