Property
Beds
4
Full Baths
3
1/2 Baths
1
Year Built
2023
Sq.Footage
2,524
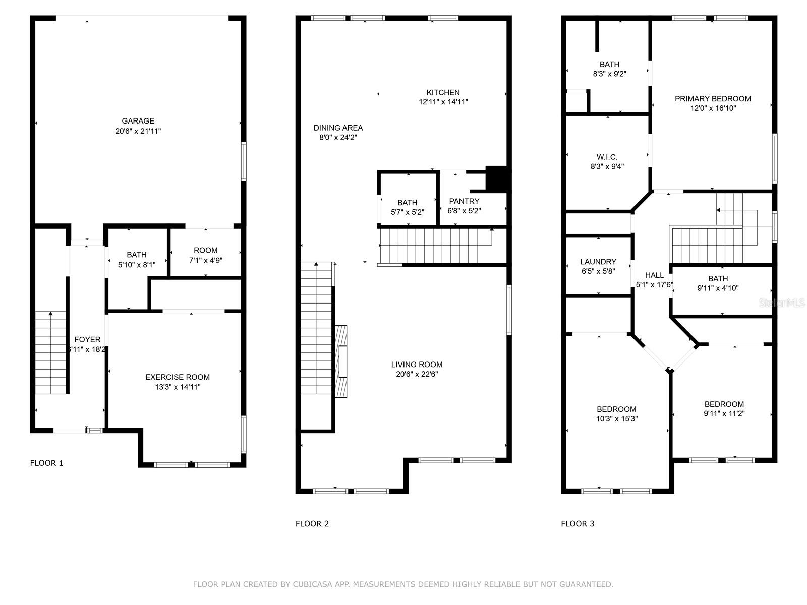
A rare end-unit townhome in the heart of Tampa’s Westshore Marina District. This residence offers the best of both worlds: a newer construction home with thoughtful upgrades, and a lifestyle defined by one of Tampa Bay’s most exciting waterfront communities. Step inside and you’ll notice the difference immediately. The main living area is anchored by a sleek electric fireplace with a Frame TV above, blending art, technology, and comfort. Designer wallpaper, bold light fixtures, and custom details create a home that feels elevated beyond builder-standard finishes. The open concept kitchen, dining, and living areas make entertaining effortless, while upstairs bedrooms feature spacious walk-in closets and a dedicated laundry suite for convenience. Bathrooms throughout the home have been transformed into design statements—each with its own personality, from sophisticated textures to rainforest-inspired wallpaper. The garage has been turned into a custom entertainment retreat complete with bar seating, theater setup, and sports-inspired details, showing the flexibility and creativity this property allows. Community & Lifestyle Life at Westshore Marina District is about more than just your home, it’s about the lifestyle. This gated community features a resort-style pool, cabanas, and shaded lounges perfect for relaxing weekends. Just beyond your doorstep, you’ll find miles of waterfront walking and jogging trails, boutique shops, fitness studios, and waterfront dining. The neighborhood is also at the center of Tampa’s rising culinary scene. With Michelin-starred and recognized restaurants like Rocca, Kosen, and Ebbe already making waves, and new top-name concepts rumored to join, the district is poised to become a destination in its own right. Location That Connects It All From here, you’re minutes from Downtown Tampa, St. Petersburg, Gulf beaches, and Tampa International Airport. Whether your lifestyle leans toward waterfront recreation, high-end dining, or city convenience, this address delivers it seamlessly. Why This Home? Unit 69 isn’t just a home—it’s a choice to live at the intersection of modern design, cultural momentum, and waterfront lifestyle. With its end-unit privacy, curated finishes, and the peace of mind of newer construction, this residence stands out as one of the most unique opportunities in the Westshore Marina District.
Features & Amenities
Interior
-
Other Interior Features
Smart Home, Stone Counters, Walk-In Closet(s)
-
Total Bedrooms
4
-
Bathrooms
3
-
1/2 Bathrooms
1
-
Cooling YN
YES
-
Cooling
Central Air
-
Fireplace YN
YES
-
Heating YN
YES
-
Heating
Central
-
Pet friendly
Yes
Exterior
-
Garage
Yes
-
Garage spaces
2
-
Construction Materials
Stucco
-
Other Exterior Features
Lighting, Rain Gutters
-
Parking
Attached
-
Pool
No
-
Waterfront YN
NO
Area & Lot
-
Lot Size(acres)
0.04
-
Property Type
Residential
-
Property Sub Type
Townhouse
Price
-
Sales Price
$875,000
-
Tax Amount
10626.14
-
Sq. Footage
2, 524
-
Price/SqFt
$346
HOA
-
Association
YES
-
Association Fee
$659
-
Association Fee Frequency
Monthly
-
Association Fee Includes
N/A
School District
-
Elementary School
N/A
-
Middle School
N/A
-
High School
N/A
Property Features
-
Stories
3
-
Association Amenities
Gated, Maintenance, Pool, Trail(s)
-
Foundation Details
Slab
-
Ownership
Fee Simple
-
Senior Community YN
NO
-
Sewer
Public Sewer
-
Tax Lot
57
-
Water Source
Public
Schedule a Showing
Showing scheduled successfully.
Mortgage calculator
Estimate your monthly mortgage payment, including the principal and interest, property taxes, and HOA. Adjust the values to generate a more accurate rate.
Your payment
Principal and Interest:
$
Property taxes:
$
HOA fees:
$
Total loan payment:
$
Total interest amount:
$
Location
County
Hillsborough
Elementary School
Middle School
High School
Listing Courtesy of Roza Vahedi , COASTAL PROPERTIES GROUP INTERNATIONAL
RealHub Information is provided exclusively for consumers' personal, non-commercial use, and it may not be used for any purpose other than to identify prospective properties consumers may be interested in purchasing. All information deemed reliable but not guaranteed and should be independently verified. All properties are subject to prior sale, change or withdrawal. RealHub website owner shall not be responsible for any typographical errors, misinformation, misprints and shall be held totally harmless.

FOUNDER
DanielleUrtnowski
Call Danielle today to schedule a private showing.

* Listings on this website come from the FMLS IDX Compilation and may be held by brokerage firms other than the owner of this website. The listing brokerage is identified in any listing details. Information is deemed reliable but is not guaranteed. If you believe any FMLS listing contains material that infringes your copyrighted work please click here to review our DMCA policy and learn how to submit a takedown request.© 2024 FMLS.
