Property
Beds
4
Full Baths
4
1/2 Baths
None
Year Built
2025
Sq.Footage
3,488
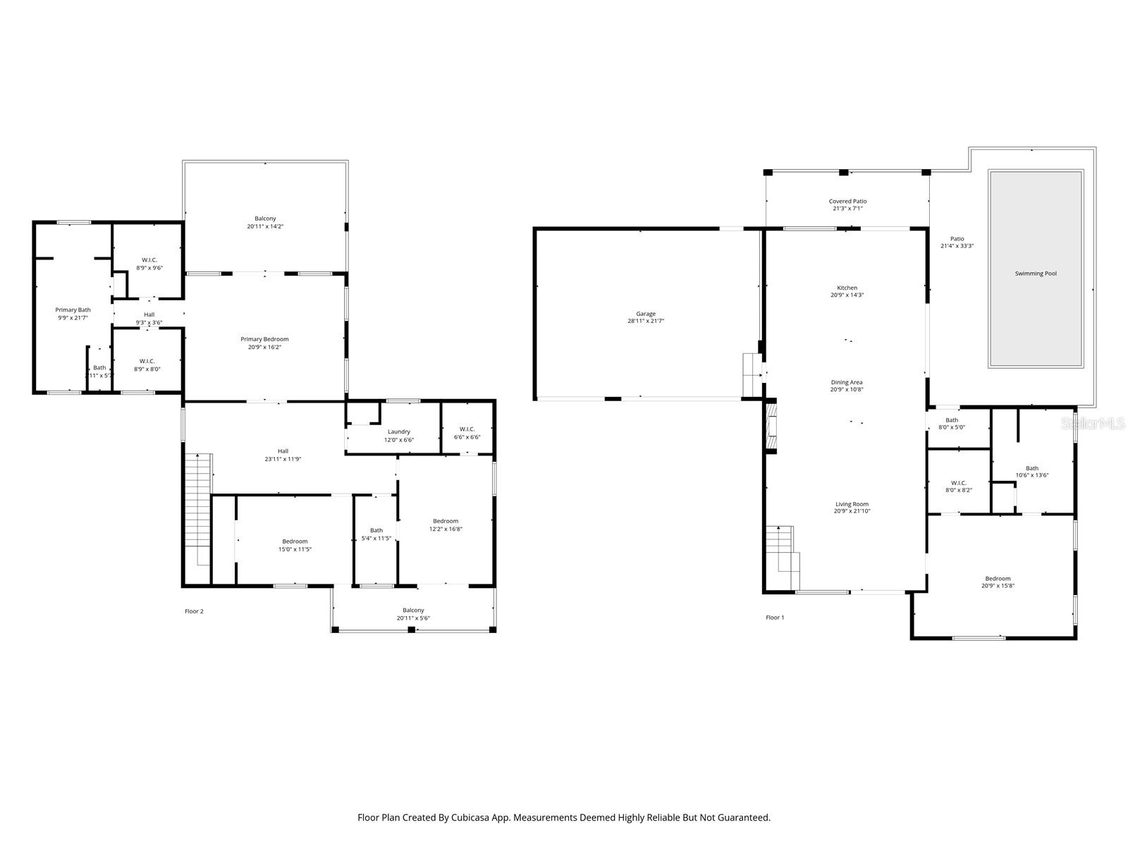
Under Construction. Welcome to 3426 Channelside in Safety Harbor and this exceptional brand-new custom residence that will be ready to move in mid Oct 2025. Located min from Mease Hospital. Perfectly situated on a spacious 0.25-acre lot on a tranquil canal in one of Tampa Bay’s most desirable towns—Safety Harbor. Offering over 3,448 sq. ft. of living space with 4 bedrooms, 4 full baths and 3 car garage with more than 5,000 sq. ft. under roof, this home was designed with both elegance and functionality in mind. Built high and dry to the latest building and safety codes, it features energy-efficient hurricane-rated windows, sliders, and doors throughout. The thoughtful floor plan includes two expansive primary suites, 2 additional bedrooms, and four full bathrooms across two levels, creating an ideal setting for multi-generational living or those seeking a luxurious retreat. As you arrive, you’ll be captivated by the home’s impressive curb appeal—complete with a large driveway accented by California design stone inlay, lush landscaping, and a three-car garage. The travertine walkway leads to large front porch and double front doors beneath a striking tongue-and-groove wood ceiling, complemented by cable railing systems and travertine porches that hint at the craftsmanship inside. Step into the open-concept great room where soaring beam-accented ceilings and a stacked-stone electric fireplace create a stunning focal point. Engineered hardwood flooring flows seamlessly into the chef’s kitchen, which showcases a massive waterfall quartzite island with backlit LED accents, abundant custom cabinetry, designer tile backsplash, and top-of-the-line GE Café refrigerator, a built-in oven, microwave, electric cooktop with pot filler, and custom vent hood. The adjoining dining area opens through sliders to the pool deck, covered porch area and backyard, creating effortless indoor-outdoor living. On the main level, one of two primary suites offers a serene escape with a spacious walk-in closet, spa-like en suite featuring double vanities, designer tile, oversized shower, water closet, and a private laundry area with full size washer and dryer hookups. A full pool bath with deck access adds convenience. Upstairs, a stylish loft leads to the second primary suite, complete with sliders to a private deck overlooking the canal, two walk-in closets with custom cabinetry, and a luxurious en suite with double vanities, designer finishes, freestanding tub, oversized European-tiled shower with dual showerheads, and a smart toilet. Two additional upstairs bedrooms share a well-appointed bathroom and each enjoy walk-in closets, ceiling fans, and access to a front balcony. Outdoor living is equally impressive with a sparkling pool and expansive travertine deck, ideal for entertaining or quiet relaxation. This prime location is just minutes from Mease Countryside Hospital, top-rated schools, waterfront parks, Safety Harbor Resort & Spa, vibrant downtown shops and restaurants, and only 20 minutes to Honeymoon Island and St. Pete–Clearwater Airport, with Tampa International just 25 minutes away. This extraordinary property offers peace of mind, modern efficiency, and a one-of-a-kind lifestyle on arguably the best lot in the neighborhood. Don’t miss the opportunity to own a luxury brand new Safety Harbor home that truly has it all—schedule your private showing today! To be completed Mid October 2025.
Features & Amenities
Interior
-
Other Interior Features
Open Floorplan, Stone Counters, Walk-In Closet(s)
-
Total Bedrooms
4
-
Bathrooms
4
-
Cooling YN
YES
-
Cooling
Central Air
-
Fireplace YN
YES
-
Heating YN
YES
-
Heating
Central, Electric
-
Pet friendly
Yes
Exterior
-
Garage
Yes
-
Garage spaces
3
-
Construction Materials
Block, Stone, Stucco, Frame
-
Other Exterior Features
Balcony, Rain Gutters
-
Parking
Driveway, Attached
-
Patio and Porch Features
Covered, Front Porch, Patio, Rear Porch
-
Pool
Yes
-
Pool Features
Gunite, In Ground, Private
-
Waterfront YN
YES
-
View
Canal, Water
Area & Lot
-
Lot Features
Waterfront
-
Lot Size(acres)
0.25
-
Property Type
Residential
-
Property Sub Type
Single Family Residence
Price
-
Sales Price
$1,898,888
-
Tax Amount
2539.0
-
Sq. Footage
3, 488
-
Price/SqFt
$544
HOA
-
Association
YES
-
Association Fee
$200
-
Association Fee Frequency
Monthly
-
Association Fee Includes
N/A
School District
-
Elementary School
Safety Harbor Elementary-PN
-
Middle School
Safety Harbor Middle-PN
-
High School
Countryside High-PN
Property Features
-
Stories
2
-
Foundation Details
Slab
-
Ownership
Fee Simple
-
Senior Community YN
NO
-
Sewer
Public Sewer
-
Tax Lot
1
-
Water Source
Public
Schedule a Showing
Showing scheduled successfully.
Mortgage calculator
Estimate your monthly mortgage payment, including the principal and interest, property taxes, and HOA. Adjust the values to generate a more accurate rate.
Your payment
Principal and Interest:
$
Property taxes:
$
HOA fees:
$
Total loan payment:
$
Total interest amount:
$
Location
County
Pinellas
Elementary School
Safety Harbor Elementary-PN
Middle School
Safety Harbor Middle-PN
High School
Countryside High-PN
Listing Courtesy of Kathie Lea , EXP REALTY
RealHub Information is provided exclusively for consumers' personal, non-commercial use, and it may not be used for any purpose other than to identify prospective properties consumers may be interested in purchasing. All information deemed reliable but not guaranteed and should be independently verified. All properties are subject to prior sale, change or withdrawal. RealHub website owner shall not be responsible for any typographical errors, misinformation, misprints and shall be held totally harmless.

FOUNDER
DanielleUrtnowski
Call Danielle today to schedule a private showing.

* Listings on this website come from the FMLS IDX Compilation and may be held by brokerage firms other than the owner of this website. The listing brokerage is identified in any listing details. Information is deemed reliable but is not guaranteed. If you believe any FMLS listing contains material that infringes your copyrighted work please click here to review our DMCA policy and learn how to submit a takedown request.© 2024 FMLS.
