Property
Beds
3
Full Baths
2
1/2 Baths
None
Year Built
2021
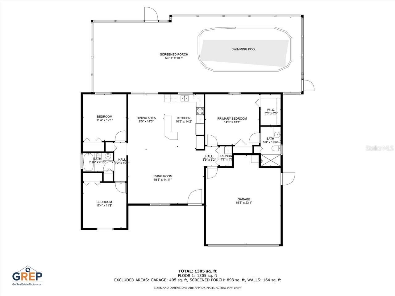
Sq.Footage
1,379
Charming & Clean 2021 POOL HOME on ½ Acre in Royal Highlands - Detached Workshop! Offering "10,000 IN SELLER CONCESSIONS TOWARDS CLOSING COSTS!" Free Americas Home Warranty included! This beautifully maintained 3-bedroom, 2-bath home offers the perfect blend of comfort and functionality. Built in 2021 and situated on a spacious (Fully Fenced )½ acre , this property features a sparkling in-ground pool, a covered patio for outdoor entertaining, and a detached metal building on slab - ideal for a workshop, storage, or hobby space. Lovely recently cleared back yard, fire pit area and plenty of space to store your toys, boat, trailers etc! NO HOA NO DEED RESTRICTIONS! NO FLOOD ZONE! Step inside to an inviting open floor plan with Pergo wood flooring throughout. The bright and modern kitchen boasts white cabinetry, elegant grey and white granite countertops, and plenty of space for meal prep and entertaining. The master suite offers a private retreat with a tiled walk-in shower and en-suite bath, while the guest bedrooms are generously sized with spacious closets. Located just off a paved road, this home is close to shopping, dining, schools, medical facilities, and recreational activities - including saltwater fishing in the Gulf, freshwater springs, rivers, and the Hernando Sportsman's club! Whether you're relaxing poolside or enjoying the great outdoors, this home offers it all. True Turn key home, just waiting for you to make it your home! Don't miss this move-in-ready gem - it's worth a look!
Features & Amenities
Interior
-
Total Bedrooms
3
-
Bathrooms
2
-
Cooling YN
YES
-
Cooling
Central Air
-
Fireplace YN
NO
-
Heating YN
YES
-
Heating
Central, Electric
-
Pet friendly
N/A
Exterior
-
Garage
Yes
-
Garage spaces
2
-
Construction Materials
Cement Siding
-
Other Exterior Features
Storage
-
Parking
Attached
-
Pool
Yes
-
Pool Features
In Ground, Screen Enclosure, Private
-
Waterfront YN
NO
Area & Lot
-
Lot Size(acres)
0.48
-
Property Type
Residential
-
Property Sub Type
Single Family Residence
Price
-
Sales Price
$398,000
-
Tax Amount
3083.81
-
Sq. Footage
1, 379
-
Price/SqFt
$288
HOA
-
Association
NO
School District
-
Elementary School
N/A
-
Middle School
N/A
-
High School
N/A
Property Features
-
Stories
1
-
Foundation Details
Slab
-
Ownership
Fee Simple
-
Senior Community YN
NO
-
Sewer
Septic Tank
-
Tax Lot
23
-
Water Source
Private, Well
Schedule a Showing
Showing scheduled successfully.
Mortgage calculator
Estimate your monthly mortgage payment, including the principal and interest, property taxes, and HOA. Adjust the values to generate a more accurate rate.
Your payment
Principal and Interest:
$
Property taxes:
$
HOA fees:
$
Total loan payment:
$
Total interest amount:
$
Location
County
Hernando
Elementary School
Middle School
High School
Listing Courtesy of Bryce Maldonado , PEOPLE'S TRUST REALTY
RealHub Information is provided exclusively for consumers' personal, non-commercial use, and it may not be used for any purpose other than to identify prospective properties consumers may be interested in purchasing. All information deemed reliable but not guaranteed and should be independently verified. All properties are subject to prior sale, change or withdrawal. RealHub website owner shall not be responsible for any typographical errors, misinformation, misprints and shall be held totally harmless.

FOUNDER
DanielleUrtnowski
Call Danielle today to schedule a private showing.

* Listings on this website come from the FMLS IDX Compilation and may be held by brokerage firms other than the owner of this website. The listing brokerage is identified in any listing details. Information is deemed reliable but is not guaranteed. If you believe any FMLS listing contains material that infringes your copyrighted work please click here to review our DMCA policy and learn how to submit a takedown request.© 2024 FMLS.
