Property
Beds
6
Full Baths
7
1/2 Baths
1
Year Built
2026
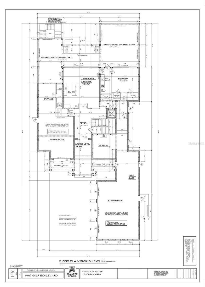
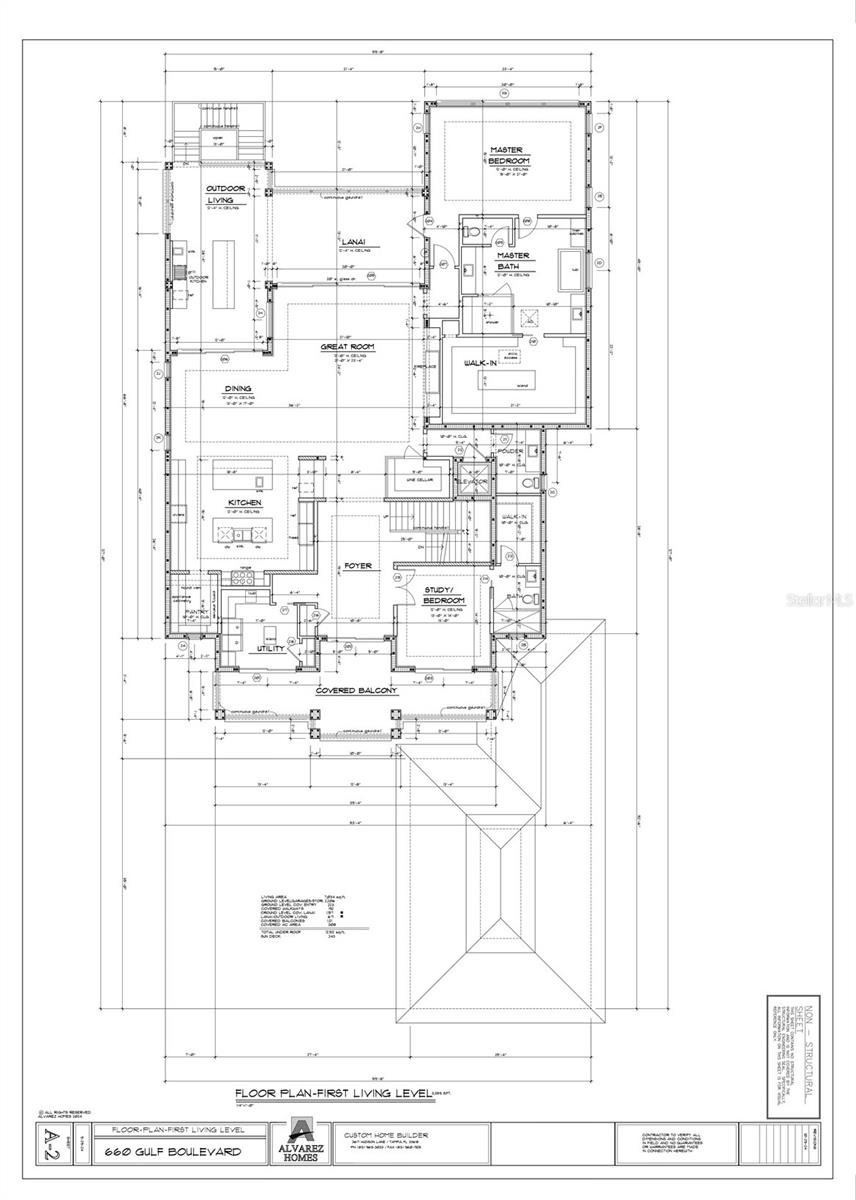
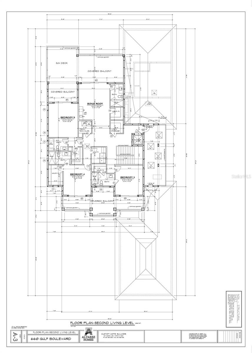
Sq.Footage
7,034
One or more photo(s) has been virtually staged. Under Construction. An exclusive opportunity has emerged for a discerning buyer to own a newly constructed, oceanfront estate in the prestigious community of Belleair Shore. This architectural masterpiece by Alvarez Homes, a 7,000-square-foot residence, is a testament to the pinnacle of luxury coastal living. Perched directly on the pristine, white sands of the Gulf of Mexico, this six-bedroom, eight-bathroom home is a sanctuary of refined elegance. With three levels of living space, each room is thoughtfully designed to capture breathtaking ocean vistas. The interiors, curated by renowned designer Michelle Miller, seamlessly blend high-end finishes with a sophisticated, coastal aesthetic, creating a lavish yet comfortable atmosphere. Unparalleled outdoor living awaits on the expansive balconies, offering an idyllic setting to entertain guests while enveloped by the calming sounds of the sea. Beyond the mesmerizing views, this estate offers a wealth of amenities, including a four-car garage, a private gate for ultimate seclusion, multiple club rooms, a private elevator, and a spectacular pool and spa combo. This property is not just a home; it's a legacy. As only the second new construction to be publicly offered in Belleair Shore in over a decade, this residence represents a unique chance to acquire one of the most coveted addresses on the Florida coast. For those who appreciate an unparalleled lifestyle, this is a property that must be experienced. For an exclusive showing and detailed pricing, please contact us. Further information can be found at https://www.660gulf.com/.
Features & Amenities
Interior
-
Other Interior Features
Built-in Features, Eat-in Kitchen, High Ceilings, Open Floorplan, Stone Counters, Tray Ceiling(s), Walk-In Closet(s), Wet Bar
-
Total Bedrooms
6
-
Bathrooms
7
-
1/2 Bathrooms
1
-
Cooling YN
YES
-
Cooling
Central Air
-
Fireplace YN
YES
-
Heating YN
YES
-
Heating
Central
-
Pet friendly
Yes
Exterior
-
Garage
Yes
-
Garage spaces
4
-
Construction Materials
Block, Concrete
-
Other Exterior Features
Balcony, Outdoor Kitchen
-
Parking
Garage Door Opener, Off Street, Attached
-
Patio and Porch Features
Covered, Deck, Front Porch, Patio, Rear Porch
-
Pool
Yes
-
Pool Features
Gunite, Heated, In Ground, Salt Water, Tile, Private
-
Waterfront YN
YES
-
View
Water
Area & Lot
-
Lot Features
Paved, Waterfront
-
Lot Size(acres)
0.47
-
Property Type
Residential
-
Property Sub Type
Single Family Residence
-
Architectural Style
Coastal
Price
-
Sales Price
$13,850,000
-
Tax Amount
50598.59
-
Sq. Footage
7, 034
-
Price/SqFt
$1,969
HOA
-
Association
NO
School District
-
Elementary School
Mildred Helms Elementary-PN
-
Middle School
Largo Middle-PN
-
High School
Largo High-PN
Property Features
-
Stories
3
-
Foundation Details
Block
-
Ownership
Fee Simple
-
Senior Community YN
NO
-
Sewer
Public Sewer
-
Tax Lot
24
-
Water Source
Public
Schedule a Showing
Showing scheduled successfully.
Mortgage calculator
Estimate your monthly mortgage payment, including the principal and interest, property taxes, and HOA. Adjust the values to generate a more accurate rate.
Your payment
Principal and Interest:
$
Property taxes:
$
HOA fees:
$
Total loan payment:
$
Total interest amount:
$
Location
County
Pinellas
Elementary School
Mildred Helms Elementary-PN
Middle School
Largo Middle-PN
High School
Largo High-PN
Listing Courtesy of Kevin Martin , CHARLES RUTENBERG REALTY INC
RealHub Information is provided exclusively for consumers' personal, non-commercial use, and it may not be used for any purpose other than to identify prospective properties consumers may be interested in purchasing. All information deemed reliable but not guaranteed and should be independently verified. All properties are subject to prior sale, change or withdrawal. RealHub website owner shall not be responsible for any typographical errors, misinformation, misprints and shall be held totally harmless.

FOUNDER
DanielleUrtnowski
Call Danielle today to schedule a private showing.

* Listings on this website come from the FMLS IDX Compilation and may be held by brokerage firms other than the owner of this website. The listing brokerage is identified in any listing details. Information is deemed reliable but is not guaranteed. If you believe any FMLS listing contains material that infringes your copyrighted work please click here to review our DMCA policy and learn how to submit a takedown request.© 2024 FMLS.
