Property
Beds
3
Full Baths
2
1/2 Baths
None
Year Built
2004
Sq.Footage
1,800
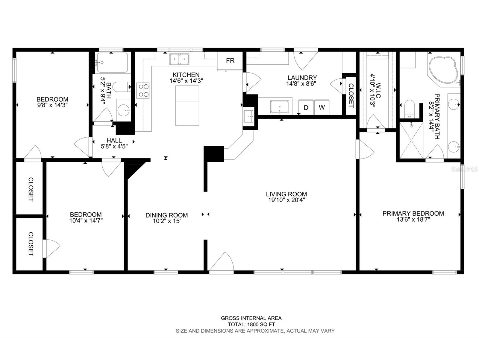
Spacious 3 Bedroom Home with Double Lot & RV Slip in Palm Manor 55+ Community. Welcome to Palm Manor, a vibrant 55+ community where comfort meets convenience. This 2004 Palm Harbor manufactured home offers 1,793 sq. ft. of living space with 3 bedrooms, 2 baths, and sits on a rare .34-acre double lot. The adjoining lot (65’x90’) comes with its own water and sewer hook-ups, providing endless possibilities. One of the standout features is the massive covered RV slip, measuring 66' long x 20' wide x 17' high and equipped with 50/30 amp power, water, and sewer hook-ups—perfect for full-time RV living or accommodating guests. Just behind the RV pad, you’ll also find a 20’x15’ storage shed, offering plenty of space for tools, hobbies, or additional storage. At the front of the home, a large screened-in porch creates the ideal spot to relax, enjoy morning coffee, or unwind with friends while taking in the Florida lifestyle. Inside, the home is pet- and smoke-free, clean, and move-in ready. The spacious living and dining rooms feature new laminate flooring, while the large kitchen includes an island, wet bar, and stainless steel KitchenAid appliances. The primary suite is a true retreat with a huge walk-in closet and a luxurious en suite bath, complete with double vanities, a makeup station, soaking tub, and walk-in shower. On the opposite side of the home, two additional bedrooms each have walk-in closets for privacy and convenience. Additional highlights include: Large laundry room with high-efficiency front-load washer & dryer, utility sink, and extra storage, new roof, newer HVAC, water heater, irrigation system, comfort-height toilets, attic fan, and whole-house gutters. Mature banana trees adding tropical charm. Community amenities include bingo, potlucks, and entertainment, plus a heated pool, bocce ball, pickleball, shuffleboard, golf driving net, and cozy firepits. With a community well and septic, you’ll also enjoy no water bill. Perfectly located between Dade City and Zephyrhills, this home offers space, comfort, and a lifestyle you’ll love. Don’t miss out—schedule your showing today!
Features & Amenities
Interior
-
Other Interior Features
Open Floorplan, Walk-In Closet(s), Wet Bar
-
Total Bedrooms
3
-
Bathrooms
2
-
Cooling YN
YES
-
Cooling
Central Air, Attic Fan
-
Fireplace YN
NO
-
Heating YN
YES
-
Heating
Central
-
Pet friendly
Yes
Exterior
-
Garage
No
-
Construction Materials
Vinyl Siding, Frame
-
Other Exterior Features
Awning(s), Lighting, Rain Gutters, Storage
-
Pool
No
-
Waterfront YN
NO
Area & Lot
-
Lot Size(acres)
0.34
-
Property Type
Residential
-
Property Sub Type
Manufactured Home
Price
-
Sales Price
$335,000
-
Tax Amount
1838.9
-
Sq. Footage
1, 800
-
Price/SqFt
$186
HOA
-
Association
YES
-
Association Fee
$245
-
Association Fee Frequency
Monthly
-
Association Fee Includes
N/A
School District
-
Elementary School
N/A
-
Middle School
N/A
-
High School
N/A
Property Features
-
Stories
1
-
Association Amenities
Pool
-
Foundation Details
Slab
-
Ownership
Fee Simple
-
Senior Community YN
YES
-
Sewer
Septic Tank
-
Tax Lot
160A
-
Water Source
Private, Well
Schedule a Showing
Showing scheduled successfully.
Mortgage calculator
Estimate your monthly mortgage payment, including the principal and interest, property taxes, and HOA. Adjust the values to generate a more accurate rate.
Your payment
Principal and Interest:
$
Property taxes:
$
HOA fees:
$
Total loan payment:
$
Total interest amount:
$
Location
County
Pasco
Elementary School
Middle School
High School
Listing Courtesy of Kevin Krueger , KELLER WILLIAMS TAMPA PROP.
RealHub Information is provided exclusively for consumers' personal, non-commercial use, and it may not be used for any purpose other than to identify prospective properties consumers may be interested in purchasing. All information deemed reliable but not guaranteed and should be independently verified. All properties are subject to prior sale, change or withdrawal. RealHub website owner shall not be responsible for any typographical errors, misinformation, misprints and shall be held totally harmless.

FOUNDER
DanielleUrtnowski
Call Danielle today to schedule a private showing.

* Listings on this website come from the FMLS IDX Compilation and may be held by brokerage firms other than the owner of this website. The listing brokerage is identified in any listing details. Information is deemed reliable but is not guaranteed. If you believe any FMLS listing contains material that infringes your copyrighted work please click here to review our DMCA policy and learn how to submit a takedown request.© 2024 FMLS.
