Property
Beds
4
Full Baths
3
1/2 Baths
1
Year Built
2023
Sq.Footage
3,418
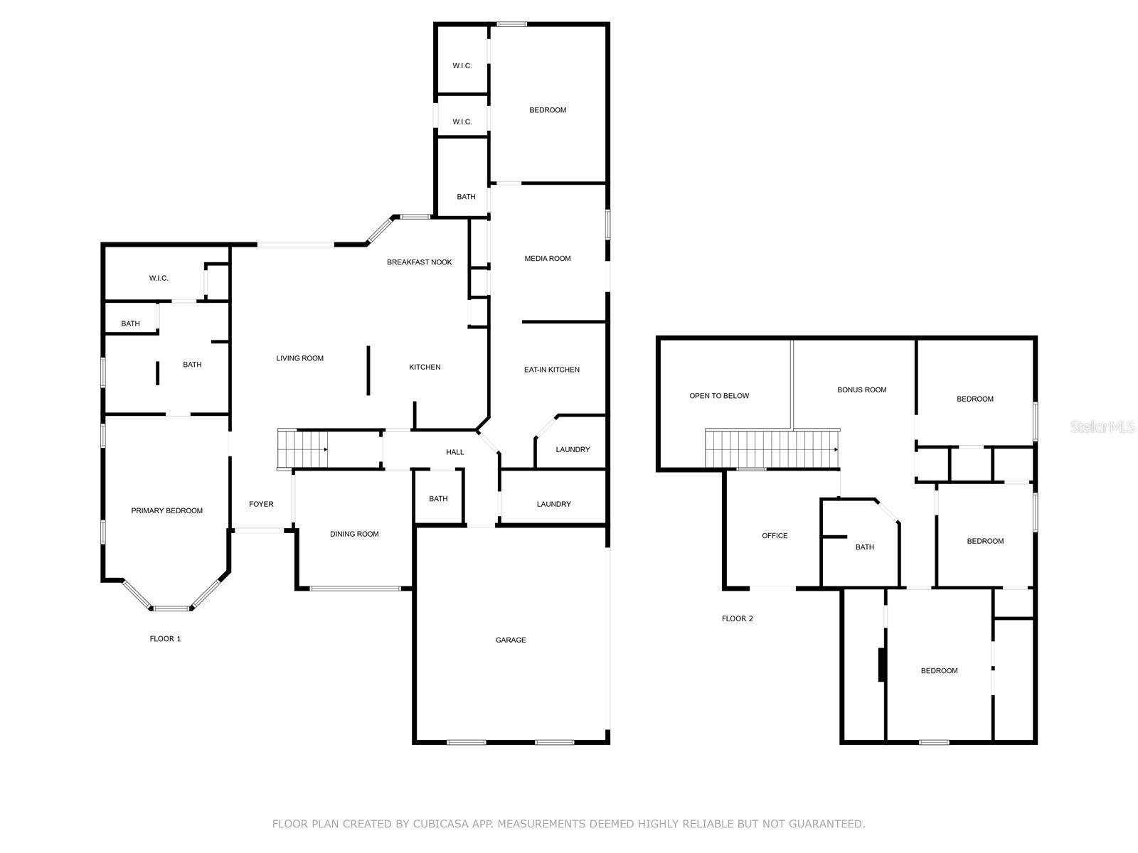
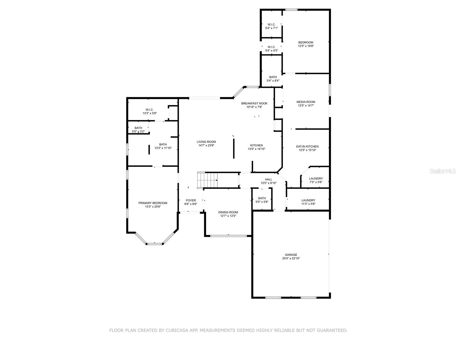
Nestled between Tampa and Orlando, this stunning contemporary home offers the perfect blend of sophistication, comfort, and entertainment. Situated on over an acre of beautifully manicured grounds, this property is more than just a house—it’s a private retreat designed for living, entertaining, and creating unforgettable memories. From the moment you arrive, you’ll be welcomed by a paved circular driveway, meticulously landscaped gardens, and a grand water fountain that sets the tone for the elegance inside. Vaulted ceilings and abundant natural light create an open, airy ambiance, while crown molding throughout adds a refined touch of craftsmanship. A stunning staircase with tempered glass makes a bold architectural statement. The home has an owners retreat and a spa like bathroom on the first floor. Upstairs you will find three additional spacious bedrooms, a full bathroom, and a bonus room providing ample space for family and guests. The second floor also has an office which includes a private balcony that overlooks the lush garden and fountain, making it an inspiring space for work or relaxation. Designed for entertainment and leisure, the backyard offers endless possibilities with an expansive paved patio for gatherings, a private soccer field, and a beach volleyball court. You’ll also find a separate fire pit patio for those cozy evenings under the stars. This property isn’t just a place to live—it’s a lifestyle investment. With its modern design, functional layout, and resort-style amenities, it’s ideal for families, professionals, and anyone who loves to entertain. https://tampa-home-photos.aryeo.com/videos/019919ef-1a64-7375-b9c6-8cb74f279f8f?v=383
Features & Amenities
Interior
-
Other Interior Features
Cathedral Ceiling(s), Crown Molding, Eat-in Kitchen, High Ceilings, Stone Counters, Tray Ceiling(s), Vaulted Ceiling(s), Walk-In Closet(s)
-
Total Bedrooms
4
-
Bathrooms
3
-
1/2 Bathrooms
1
-
Cooling YN
YES
-
Cooling
Central Air
-
Fireplace YN
NO
-
Heating YN
YES
-
Heating
Electric
-
Pet friendly
N/A
Exterior
-
Garage
Yes
-
Garage spaces
2
-
Construction Materials
Block, Brick, Stucco
-
Other Exterior Features
Balcony, Other
-
Parking
Circular Driveway, Covered, Driveway, Garage Door Opener, Oversized, Attached
-
Patio and Porch Features
Patio
-
Pool
No
-
Waterfront YN
NO
Area & Lot
-
Lot Size(acres)
1.1
-
Property Type
Residential
-
Property Sub Type
Single Family Residence
-
Architectural Style
Contemporary
Price
-
Sales Price
$1,390,000
-
Tax Amount
10279.0
-
Sq. Footage
3, 418
-
Price/SqFt
$406
HOA
-
Association
NO
School District
-
Elementary School
R. Clem Churchwell Elem
-
Middle School
Lake Gibson Middle/Junio
-
High School
Lake Gibson High
Property Features
-
Foundation Details
Slab
-
Ownership
Fee Simple
-
Senior Community YN
NO
-
Sewer
Septic Tank
-
Water Source
Public
Schedule a Showing
Showing scheduled successfully.
Mortgage calculator
Estimate your monthly mortgage payment, including the principal and interest, property taxes, and HOA. Adjust the values to generate a more accurate rate.
Your payment
Principal and Interest:
$
Property taxes:
$
HOA fees:
$
Total loan payment:
$
Total interest amount:
$
Location
County
Polk
Elementary School
R. Clem Churchwell Elem
Middle School
Lake Gibson Middle/Junio
High School
Lake Gibson High
Listing Courtesy of Jorge Ortiz , CHARLES RUTENBERG REALTY INC
RealHub Information is provided exclusively for consumers' personal, non-commercial use, and it may not be used for any purpose other than to identify prospective properties consumers may be interested in purchasing. All information deemed reliable but not guaranteed and should be independently verified. All properties are subject to prior sale, change or withdrawal. RealHub website owner shall not be responsible for any typographical errors, misinformation, misprints and shall be held totally harmless.

FOUNDER
DanielleUrtnowski
Call Danielle today to schedule a private showing.

* Listings on this website come from the FMLS IDX Compilation and may be held by brokerage firms other than the owner of this website. The listing brokerage is identified in any listing details. Information is deemed reliable but is not guaranteed. If you believe any FMLS listing contains material that infringes your copyrighted work please click here to review our DMCA policy and learn how to submit a takedown request.© 2024 FMLS.
