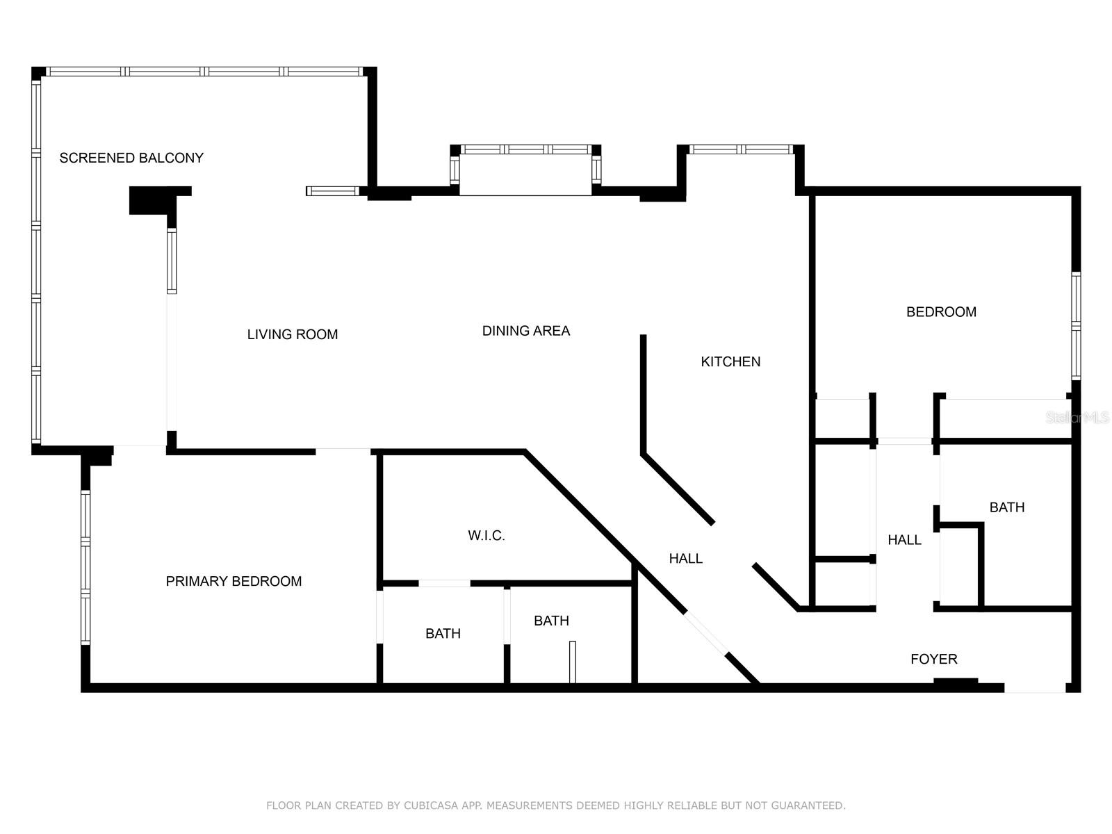
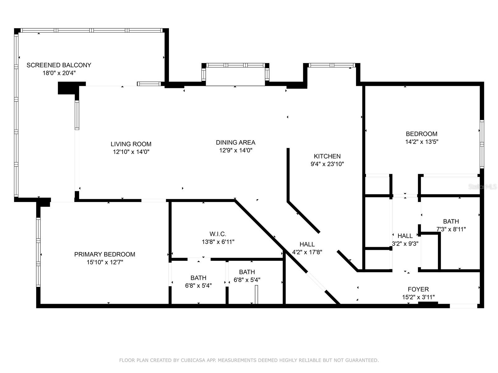
Property
Beds
2
Full Baths
2
1/2 Baths
None
Year Built
1985
Sq.Footage
1,445
This stunning corner-unit penthouse epitomizes the ultimate Florida lifestyle. Perched on the top floor, it boasts unrivaled panoramic views of the Gulf of Mexico and the Intracoastal Waterway. Inside, the residence exudes sophistication with premium finishes, including Cambria blue quartz countertops, Italian porcelain flooring, and top-tier appliances. The open, light-filled floor plan creates a spacious and inviting atmosphere, perfect for modern living. Both bedrooms have extra storage cabinets, the 2nd bedroom has a beautiful built in Murphy bed and built in desk. A standout feature is the expansive wraparound balcony, ideal for basking in the sun, hosting gatherings, or savoring the breathtaking Gulf views with a book in hand. Nestled within a private 56-acre waterfront community, residents enjoy exclusive amenities, including two pools, two clubhouses, a 45-slip private marina, walking trails, an exercise room, hot tubs, saunas, and 11 top-rated Har-Tru clay tennis courts with a pro shop, on-site tennis pro, and massage therapist. Pickleball enthusiasts will love the vibrant scene, and nature lovers will appreciate the protected bird sanctuary. Located just steps from the sugar-soft sands of Indian Rocks Beach, with its vibrant restaurants and nightlife, this penthouse offers both luxury and convenience. The unit features countless designer upgrades, new impact windows and doors, a secured lobby, under-building parking, and a storage room. Seize your chance to live in paradise at Shipwatch
Features & Amenities
Interior
-
Other Interior Features
Elevator, Built-in Features, High Ceilings
-
Total Bedrooms
2
-
Bathrooms
2
-
Cooling YN
YES
-
Cooling
Central Air, Attic Fan
-
Fireplace YN
NO
-
Heating YN
YES
-
Heating
Central
-
Pet friendly
N/A
Exterior
-
Garage
No
-
Construction Materials
Block
-
Other Exterior Features
Balcony, Storage, Tennis Court(s)
-
Parking
Guest
-
Pool
No
-
Waterfront YN
NO
-
View
Pool, Water
Area & Lot
-
Lot Features
Landscaped, Near Golf Course, Paved, Private
-
Property Type
Residential
-
Property Sub Type
Condominium
Price
-
Sales Price
$650,000
-
Tax Amount
8380.77
-
Sq. Footage
1, 445
-
Price/SqFt
$449
HOA
-
Association
NO
School District
-
Elementary School
Oakhurst Elementary-PN
-
Middle School
Seminole Middle-PN
-
High School
Seminole High-PN
Property Features
-
Stories
1
-
Foundation Details
Block
-
Ownership
Condominium
-
Senior Community YN
NO
-
Sewer
Public Sewer
-
Tax Lot
00
-
Water Source
Public
Schedule a Showing
Showing scheduled successfully.
Mortgage calculator
Estimate your monthly mortgage payment, including the principal and interest, property taxes, and HOA. Adjust the values to generate a more accurate rate.
Your payment
Principal and Interest:
$
Property taxes:
$
HOA fees:
$
Total loan payment:
$
Total interest amount:
$
Location
County
Pinellas
Elementary School
Oakhurst Elementary-PN
Middle School
Seminole Middle-PN
High School
Seminole High-PN
Listing Courtesy of Karen King , KELLER WILLIAMS REALTY- PALM H
RealHub Information is provided exclusively for consumers' personal, non-commercial use, and it may not be used for any purpose other than to identify prospective properties consumers may be interested in purchasing. All information deemed reliable but not guaranteed and should be independently verified. All properties are subject to prior sale, change or withdrawal. RealHub website owner shall not be responsible for any typographical errors, misinformation, misprints and shall be held totally harmless.

FOUNDER
DanielleUrtnowski
Call Danielle today to schedule a private showing.

* Listings on this website come from the FMLS IDX Compilation and may be held by brokerage firms other than the owner of this website. The listing brokerage is identified in any listing details. Information is deemed reliable but is not guaranteed. If you believe any FMLS listing contains material that infringes your copyrighted work please click here to review our DMCA policy and learn how to submit a takedown request.© 2024 FMLS.
