Property
Beds
5
Full Baths
5
1/2 Baths
1
Year Built
2026
Sq.Footage
4,321
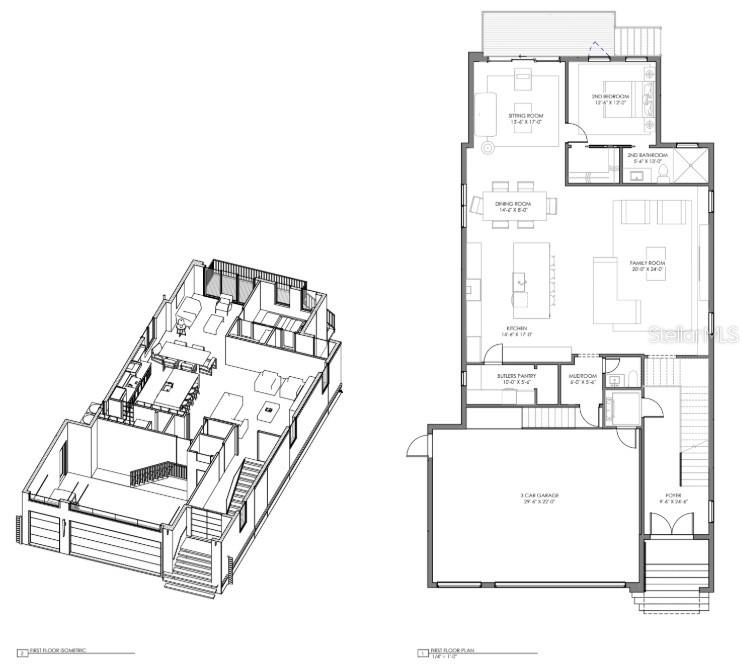
Pre-Construction. To be built. Don't miss out on this incredible opportunity to build your Davis Island dream home. This beautiful home to be built by Tampa Bay Builds offers everything you need for a life of luxury on the highly sought-after Davis Island. The home boasts 4,321 square feet of living space, an elevator, and an outdoor deck off the 1st floor sitting room. The first floor has a wonderful open floorplan, with a kitchen, dining room and great room that are perfect for entertaining. Just off the dining room is an additional lounge area with the aforementioned sitting room. Also on the first floor is an en-suite bedroom, perfect for a guest room with the sitting room feeling like their own private living room. Just off the kitchen is a mudroom and a massive butler's pantry. The second floor has the master bedroom and three additional en-suite bedrooms, as well as a lounge area and the laundry room. The master bedroom is accompanied by a large entryway and walk-in "his" closet as well as a massive walk-in "her" closet. The master bath is equipped with a walk-in shower and luxurious tub. In totality it truly is an oasis of a master bedroom/bathroom combination. Please note that renderings are for illustration purposes. Call today and ask about this amazing opportunity!
Features & Amenities
Interior
-
Other Interior Features
Elevator
-
Total Bedrooms
5
-
Bathrooms
5
-
1/2 Bathrooms
1
-
Cooling YN
YES
-
Cooling
Central Air
-
Fireplace YN
NO
-
Heating YN
YES
-
Heating
Central
-
Pet friendly
N/A
Exterior
-
Garage
Yes
-
Garage spaces
3
-
Construction Materials
Block
-
Parking
Attached
-
Pool
No
-
Waterfront YN
NO
Area & Lot
-
Lot Size(acres)
0.16
-
Property Type
Residential
-
Property Sub Type
Single Family Residence
Price
-
Sales Price
$3,500,000
-
Tax Amount
13186.06
-
Sq. Footage
4, 321
-
Price/SqFt
$809
HOA
-
Association
NO
School District
-
Elementary School
Gorrie-HB
-
Middle School
Wilson-HB
-
High School
Plant-HB
Property Features
-
Stories
2
-
Foundation Details
Slab
-
Ownership
Fee Simple
-
Senior Community YN
NO
-
Sewer
Public Sewer
-
Tax Lot
6
-
Water Source
None
Schedule a Showing
Showing scheduled successfully.
Mortgage calculator
Estimate your monthly mortgage payment, including the principal and interest, property taxes, and HOA. Adjust the values to generate a more accurate rate.
Your payment
Principal and Interest:
$
Property taxes:
$
HOA fees:
$
Total loan payment:
$
Total interest amount:
$
Location
County
Hillsborough
Elementary School
Gorrie-HB
Middle School
Wilson-HB
High School
Plant-HB
Listing Courtesy of Charles Cleveland , PINEYWOODS REALTY LLC
RealHub Information is provided exclusively for consumers' personal, non-commercial use, and it may not be used for any purpose other than to identify prospective properties consumers may be interested in purchasing. All information deemed reliable but not guaranteed and should be independently verified. All properties are subject to prior sale, change or withdrawal. RealHub website owner shall not be responsible for any typographical errors, misinformation, misprints and shall be held totally harmless.

FOUNDER
DanielleUrtnowski
Call Danielle today to schedule a private showing.

* Listings on this website come from the FMLS IDX Compilation and may be held by brokerage firms other than the owner of this website. The listing brokerage is identified in any listing details. Information is deemed reliable but is not guaranteed. If you believe any FMLS listing contains material that infringes your copyrighted work please click here to review our DMCA policy and learn how to submit a takedown request.© 2024 FMLS.
