Property
Beds
4
Full Baths
3
1/2 Baths
1
Year Built
2022
Sq.Footage
2,964
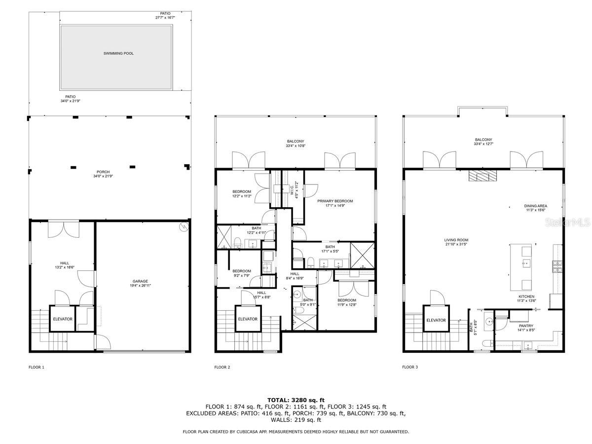
Welcome Home! WHY WAIT Years To Design, Permit, and Build When You Can Step Right Into Water View Perfection? 1002 Pass A Grille Way sits in the most coveted stretch of St Pete Beach: Pass-A-Grille. Dreamers wish upon the stars for this home’s location. A community where neighbors still gather on 8th Ave, stroll to curated shops, and share cocktails at local favorites just blocks away.(Be sure to check out the virtual tour video of the property) This 2022 raised beauty has it all—4 bedrooms, 3.5 baths, an elevator, and nearly 3,000 sq. ft. of living space (over 5,000 including patios). Toes in the sand, a dip in the Gulf—your day has begun! In less than five minutes you’re back at your private outdoor shower, rinsing off, and heading upstairs to the 3rd floor where the magic happens. This is the heart of the home and the lifestyle that you’ve been craving! The wide-open living space leads to French doors showcasing a front row view of daily waterfront theater: dolphins at play, sailboats drifting by, rainbows arching across the bay, and sunsets that glow long after the last sip of your cocktail. Your 'bay' view surpasses just an intracoastal look, this expansive view of the Pass-A-Grille Channel is at the mouth of the Boca Ciega Bay connecting it to the Gulf of Mexico. Anchored by a custom marble gas fireplace, the great room spills into a chef’s kitchen that absolutely steals the spotlight—hello French La Cornue gas range, custom cabinetry, sleek granite island, and a show-stopping Portuguese tile backsplash. Through an arched entry, the “secret second kitchen” (yes, oversized pantry but so much more) gives you a second fridge, second dishwasher, another sink, granite counters, and gadget-ready shelving. Dinner parties, cookie marathons, cocktail prep—this space makes you look like a hosting pro. Downstairs, the primary suite is a retreat you’ll never want to leave - French doors open to a private balcony overlooking the pool, custom closets, ensuite bathroom with dual vanities, and oversized shower (big enough for you, your chaise lounge and your daydreams). This floor also offers three additional bedrooms each with their own personality, custom finishes, and storage galore. Two additional bathrooms are on this floor (one of them ensuite), and a conveniently located laundry room to keep life effortless. Stairs or elevator down to the garden level, step outside, and the vacation vibe is real! A sparkling pool with a sun shelf, new pool equipment and lush landscaping on irrigation—all wrapped in fresh vinyl fencing— it’s your own tropical hideaway. The details that make it worry-free? A two-car hurricane rated garage door, hurricane-impact windows and doors, modern day building materials, specific designer tile and lighting, a whole-house water filtration system, and a Generac gas generator that keeps the party (and the AC) going even if the power does not. This home is more than move-in ready— it’s an invitation to step into the waterfront lifestyle right now. Bring the champagne. You Are Home...
Features & Amenities
Interior
-
Other Interior Features
Elevator, Built-in Features, Eat-in Kitchen, Open Floorplan, Stone Counters, Walk-In Closet(s)
-
Total Bedrooms
4
-
Bathrooms
3
-
1/2 Bathrooms
1
-
Cooling YN
YES
-
Cooling
Central Air, Ductless, Zoned, Attic Fan
-
Fireplace YN
YES
-
Heating YN
YES
-
Heating
Central, Natural Gas, Zoned
-
Pet friendly
Yes
Exterior
-
Garage
Yes
-
Garage spaces
2
-
Construction Materials
HardiPlank Type
-
Other Exterior Features
Balcony, Lighting, Outdoor Shower, Rain Gutters
-
Parking
Alley Access, Covered, Driveway, Garage Door Opener, Garage Faces Rear, Off Street, On Street, Basement, Attached
-
Patio and Porch Features
Covered, Deck, Front Porch, Patio, Porch
-
Pool
Yes
-
Pool Features
Gunite, In Ground, Pool Sweep, Salt Water, Private
-
Waterfront YN
YES
-
View
Water, Pool
Area & Lot
-
Lot Features
Landscaped, Paved, Waterfront
-
Lot Size(acres)
0.1
-
Property Type
Residential
-
Property Sub Type
Single Family Residence
-
Architectural Style
Elevated
Price
-
Sales Price
$3,950,000
-
Tax Amount
28014.44
-
Sq. Footage
2, 964
-
Price/SqFt
$1,332
HOA
-
Association
NO
School District
-
Elementary School
Azalea Elementary-PN
-
Middle School
Bay Point Middle-PN
-
High School
Boca Ciega High-PN
Property Features
-
Stories
3
-
Foundation Details
Pillar/Post/Pier
-
Ownership
Fee Simple
-
Senior Community YN
NO
-
Sewer
Public Sewer
-
Tax Lot
4
-
Water Source
Public
Schedule a Showing
Showing scheduled successfully.
Mortgage calculator
Estimate your monthly mortgage payment, including the principal and interest, property taxes, and HOA. Adjust the values to generate a more accurate rate.
Your payment
Principal and Interest:
$
Property taxes:
$
HOA fees:
$
Total loan payment:
$
Total interest amount:
$
Location
County
Pinellas
Elementary School
Azalea Elementary-PN
Middle School
Bay Point Middle-PN
High School
Boca Ciega High-PN
Listing Courtesy of Debra Saltzberg , COMPASS FLORIDA LLC
RealHub Information is provided exclusively for consumers' personal, non-commercial use, and it may not be used for any purpose other than to identify prospective properties consumers may be interested in purchasing. All information deemed reliable but not guaranteed and should be independently verified. All properties are subject to prior sale, change or withdrawal. RealHub website owner shall not be responsible for any typographical errors, misinformation, misprints and shall be held totally harmless.

FOUNDER
DanielleUrtnowski
Call Danielle today to schedule a private showing.

* Listings on this website come from the FMLS IDX Compilation and may be held by brokerage firms other than the owner of this website. The listing brokerage is identified in any listing details. Information is deemed reliable but is not guaranteed. If you believe any FMLS listing contains material that infringes your copyrighted work please click here to review our DMCA policy and learn how to submit a takedown request.© 2024 FMLS.
