Property
Beds
3
Full Baths
3
1/2 Baths
None
Year Built
1983
Sq.Footage
2,320
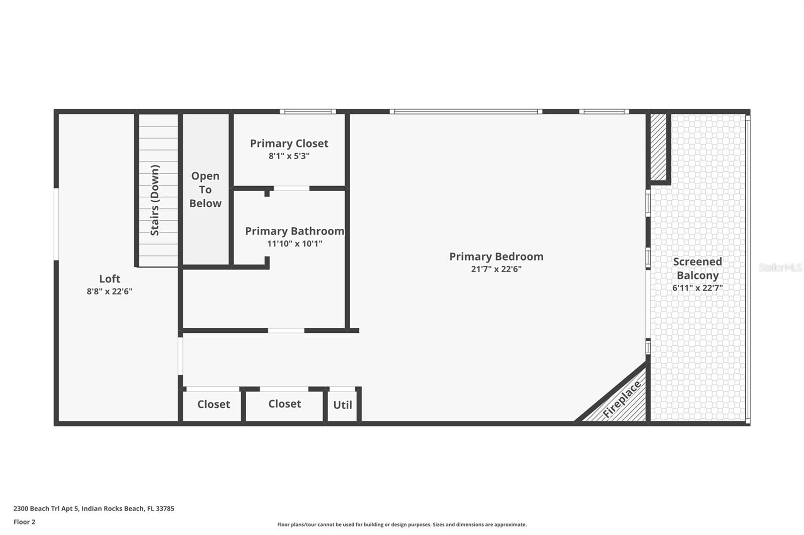
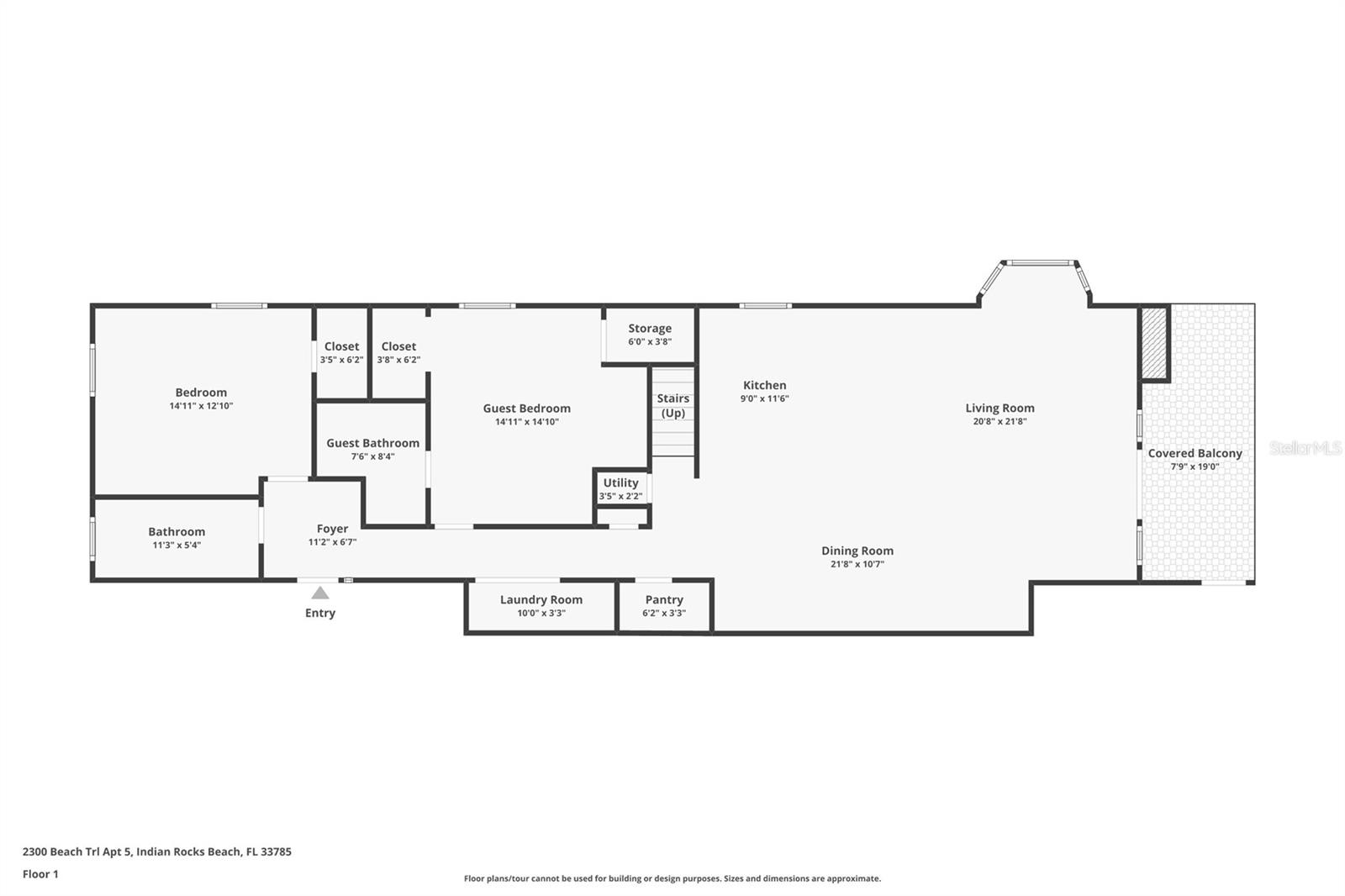
.. Updated Direct Gulf-front two-story Penthouse Condominium with Private 27' x 21' Roof Top/ Patio/ Sundeck with Gulf Views.. Private boutique six-unit complex. One-of-a-kind beautifully updated three-bedroom/ three-bath two-story penthouse condominium with 2,320 square feet of pure joy. Owners have updated with great care making every room its own sanctuary. Kitchen, floors, baths all updated and ready for immediate occupancy. One of only a few IRB – Gulf-front condominiums with a private rooftop patio. First floor enjoys a direct gulf-front great room with over 600 square feet with kitchen - Dining area and Living room all fronted by a 19 X 7.5 Gulf-Front Balcony. Both floors are complete with side Bay Windows adding additional long-range water views. First floor of penthouse also has two spacious guest bedrooms - one is En-suite with updated bath, spa tub and another next to hallway with updated Full Bath. Brazilian-engineered hardwood floors flow through the whole household beautifully complementing this beach home. The owner's primary suite takes up 75% of the second floor with a 25-by-21-foot bedroom fronted by a gulf-front 21-by-7-foot balcony plus bay windows with sweeping long-range water views. Updated 10 X 11.10 Main Bath with walk-in shower with built-in bench plus 9-foot vanity with dual Decolav Seagrass Glass Vessel Basins – one walk-in closet and three smaller 5' X 28" closets in main hallway. The entry loft stairs to access the top floor open to a finished 22.6 X 8.8 Parlor Room with seating and a 5' X 3' Wet Bar with sink, Wine Refrigerator and overhead Cabinets where you access owner's suite on one side and your Private Rooftop Patio/ Sundeck with wonderful street and water views on the other side. Just a unique sunning and entertaining area you rarely find along our waterfront. Welcome to Indian Rocks Beach. A small close-knit waterfront community with plenty of restaurants, cafes and nightlife all within a short distance. Pets OK. Two-week minimum rental makes this an ideal full-time residence or part-time beach getaway for the family with good beach rental income potential. Immediate showings available. Enjoy the tour - floorplans and photos. No water intrusion ever in entire complex".. Immediate Showings Available.
Features & Amenities
Interior
-
Other Interior Features
Elevator, Built-in Features, Eat-in Kitchen, Open Floorplan, Wet Bar
-
Total Bedrooms
3
-
Bathrooms
3
-
Cooling YN
YES
-
Cooling
Central Air
-
Fireplace YN
YES
-
Heating YN
YES
-
Heating
Central, Electric
-
Pet friendly
Breed Restrictions, Number Limit
Exterior
-
Garage
No
-
Construction Materials
Block, Stucco
-
Other Exterior Features
Balcony
-
Parking
Assigned, Guest
-
Patio and Porch Features
Deck, Other
-
Pool
No
-
Waterfront YN
YES
-
View
Water
Area & Lot
-
Lot Features
Waterfront
-
Lot Size(acres)
0.23
-
Property Type
Residential
-
Property Sub Type
Condominium
Price
-
Sales Price
$1,699,900
-
Tax Amount
17901.17
-
Sq. Footage
2, 320
-
Price/SqFt
$732
HOA
-
Association
NO
School District
-
Elementary School
N/A
-
Middle School
N/A
-
High School
N/A
Property Features
-
Stories
4
-
Association Amenities
Elevator(s)
-
Foundation Details
Slab
-
Ownership
Condominium
-
Senior Community YN
NO
-
Sewer
Public Sewer
-
Tax Lot
0050
-
Water Source
Public
Schedule a Showing
Showing scheduled successfully.
Mortgage calculator
Estimate your monthly mortgage payment, including the principal and interest, property taxes, and HOA. Adjust the values to generate a more accurate rate.
Your payment
Principal and Interest:
$
Property taxes:
$
HOA fees:
$
Total loan payment:
$
Total interest amount:
$
Location
County
Pinellas
Elementary School
Middle School
High School
Listing Courtesy of Roger Hogan , PREMIER SOTHEBY'S INTL REALTY
RealHub Information is provided exclusively for consumers' personal, non-commercial use, and it may not be used for any purpose other than to identify prospective properties consumers may be interested in purchasing. All information deemed reliable but not guaranteed and should be independently verified. All properties are subject to prior sale, change or withdrawal. RealHub website owner shall not be responsible for any typographical errors, misinformation, misprints and shall be held totally harmless.

FOUNDER
DanielleUrtnowski
Call Danielle today to schedule a private showing.

* Listings on this website come from the FMLS IDX Compilation and may be held by brokerage firms other than the owner of this website. The listing brokerage is identified in any listing details. Information is deemed reliable but is not guaranteed. If you believe any FMLS listing contains material that infringes your copyrighted work please click here to review our DMCA policy and learn how to submit a takedown request.© 2024 FMLS.
