Property
Beds
4
Full Baths
None
1/2 Baths
None
Year Built
1947
Sq.Footage
3,055
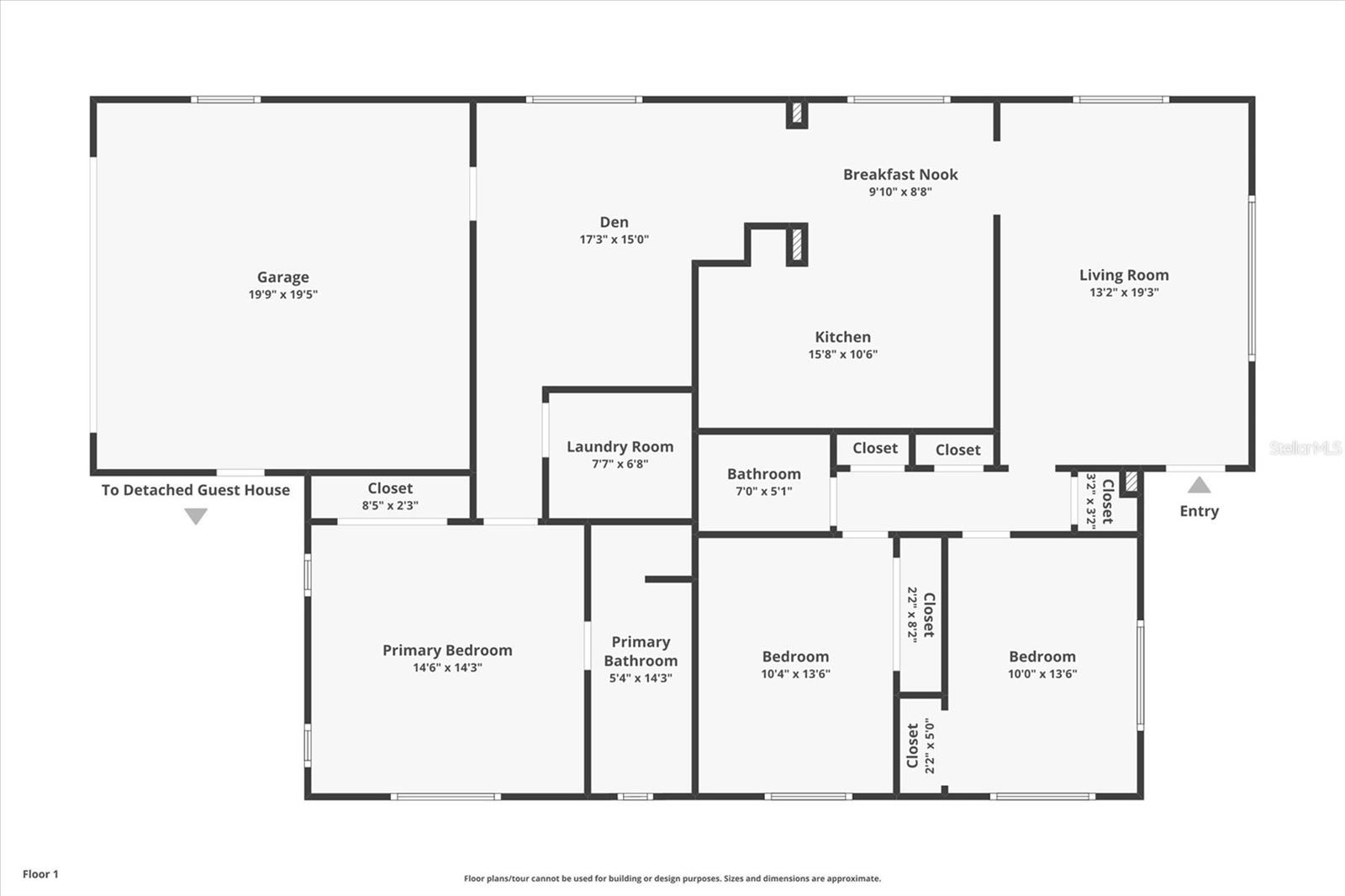
Back on the market due to no fault of the property - buyer got cold feet! Multi-Family, Multi-Generational Income Property | Double Lot | Prime St. Pete Location Rare opportunity to own a versatile multi-family property on a double lot, just minutes from Downtown St. Petersburg and the Gulf beaches. Perfect for multi-generational living, rental income, or house hacking! Main Home (Lot 1): 3 Bedrooms / 2 Bathrooms all updated Oversized 1-car garage with ac (window ac) Nicely updated kitchen with stainless steel appliance's - Island Stays Family room with permitted addition (2017) Newer roof, water heater and A/C Spacious layout ideal for owner-occupancy or long-term rental Second Structure (Lot 2): 1 Bedroom / 1 Bathroom upstairs unit – ADA compliant with chair lift - Separate outdoor stairs for private entrance Flex space/workshop on the first floor –A/C 2017, Brand new roof (2025) original hard wood floors in apartment. fully A/C’d and ready to convert into a separate rental, studio, or office Great potential for rental, guest suite, or home business Or possibly convert this to a 3 bedroom 2 bath as well Additional Features: RV hookup for added flexibility or guest accommodations or Parking your RV keeping it clean and healthy year around Mature landscaping offers privacy and curb appeal Plenty of parking and outdoor space Multi-family use with income potential from multiple units Separate meters for each structure The possibilities are endless with this property, schedule your appointment today and let your imagination run wild!
Features & Amenities
Interior
-
Other Interior Features
Stone Counters
-
Total Bedrooms
4
-
Bathrooms
N/A
-
Cooling YN
YES
-
Cooling
Central Air
-
Fireplace YN
NO
-
Heating YN
YES
-
Heating
Central, Electric
-
Pet friendly
Cats OK, Dogs OK, Yes
Exterior
-
Garage
Yes
-
Garage spaces
1
-
Construction Materials
Block, Stucco
-
Parking
Attached
-
Pool
No
-
Waterfront YN
NO
Area & Lot
-
Lot Size(acres)
0.28
-
Property Type
Residential Income
-
Property Sub Type
Duplex
Price
-
Sales Price
$789,000
-
Tax Amount
1500.65
-
Sq. Footage
3, 055
-
Price/SqFt
$258
HOA
-
Association
NO
School District
-
Elementary School
N/A
-
Middle School
N/A
-
High School
N/A
Property Features
-
Accessibility Features
Accessible Entrance, Accessible Approach with Ramp, Accessible Bedroom, Accessible Closets, Accessible Common Area, Accessible Doors, Accessible Full Bath, Accessible Hallway(s), Accessible Kitchen, Accessible Central Living Area, Stair Lift
-
Foundation Details
Slab
-
Ownership
Fee Simple
-
Senior Community YN
NO
-
Sewer
Public Sewer
-
Tax Lot
8
-
Water Source
Public
Schedule a Showing
Showing scheduled successfully.
Mortgage calculator
Estimate your monthly mortgage payment, including the principal and interest, property taxes, and HOA. Adjust the values to generate a more accurate rate.
Your payment
Principal and Interest:
$
Property taxes:
$
HOA fees:
$
Total loan payment:
$
Total interest amount:
$
Location
County
Pinellas
Elementary School
Middle School
High School
Listing Courtesy of Tracy Crowell , COLDWELL BANKER REALTY
RealHub Information is provided exclusively for consumers' personal, non-commercial use, and it may not be used for any purpose other than to identify prospective properties consumers may be interested in purchasing. All information deemed reliable but not guaranteed and should be independently verified. All properties are subject to prior sale, change or withdrawal. RealHub website owner shall not be responsible for any typographical errors, misinformation, misprints and shall be held totally harmless.

FOUNDER
DanielleUrtnowski
Call Danielle today to schedule a private showing.

* Listings on this website come from the FMLS IDX Compilation and may be held by brokerage firms other than the owner of this website. The listing brokerage is identified in any listing details. Information is deemed reliable but is not guaranteed. If you believe any FMLS listing contains material that infringes your copyrighted work please click here to review our DMCA policy and learn how to submit a takedown request.© 2024 FMLS.
