Property
Beds
3
Full Baths
3
1/2 Baths
None
Year Built
1993
Sq.Footage
2,435
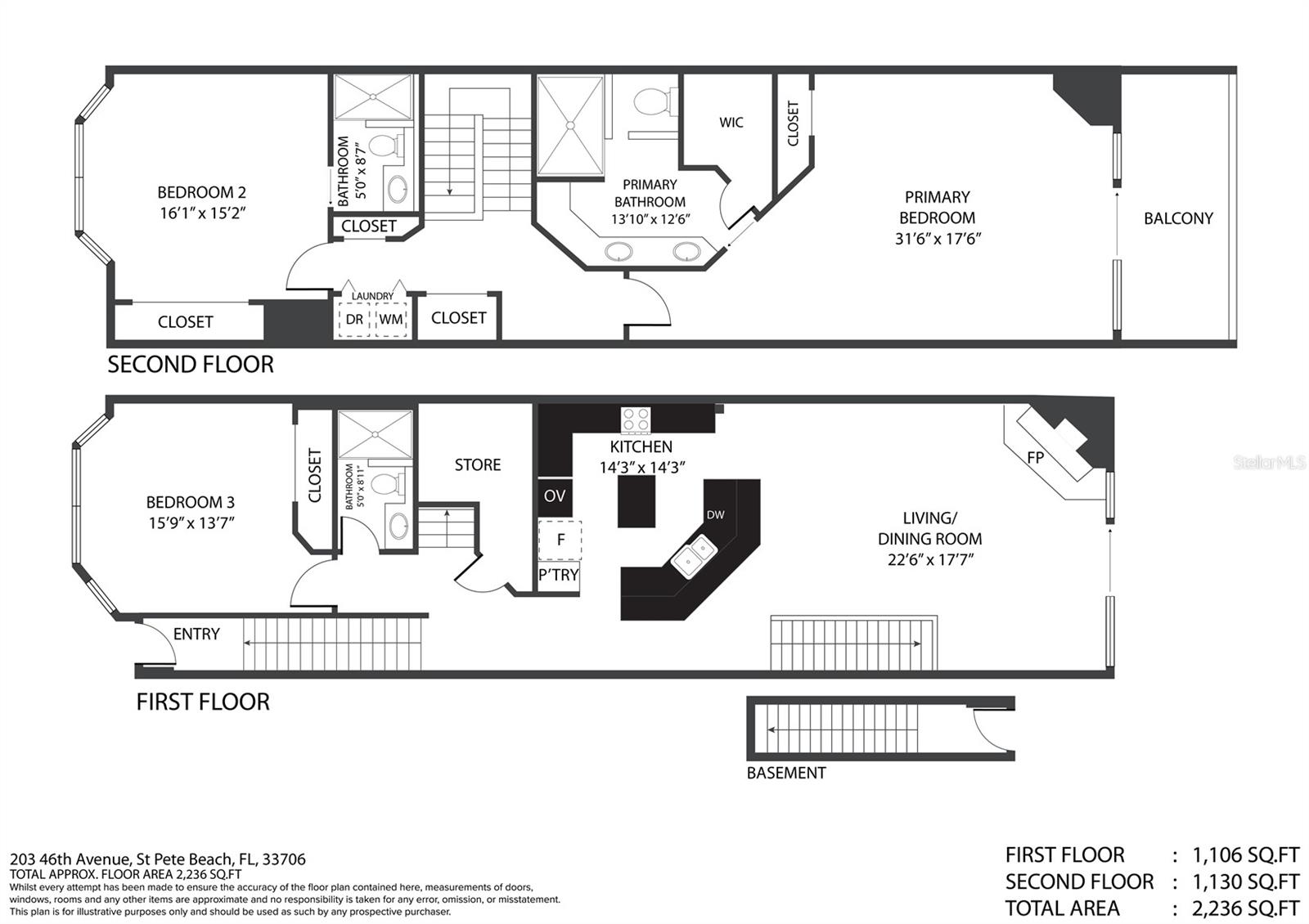
Tucked into the sought-after Dolphin Cove neighborhood just a block from St. Pete Beach, this spacious 3BR/3BA townhouse offers over 2,400 sqft of thoughtfully updated living space. With only 7 units in this complex, low association fees, and quiet neighborhood, this home is truly a dream! Recent improvements include a new roof (2025), new Boesch dishwasher (2025), fresh carpet in all bedrooms and stairs (2024 and 2025), new electrical junction box, up to code doors on first level, a new garage door (2024), and new Hardy board siding in the garage and first level storage. Also featuring a first floor water protected garage and storage -hardy board and tile walls and floor. The exterior has been upgraded with a brand-new deck (2025) leads to the pool area—complete with a doggy door for four-legged companions. Inside, enjoy a bright open layout with coffered ceilings, a fireplace, and a chef’s kitchen. A bonus room opens to a private patio surrounded by tropical landscaping. Upstairs, the primary suite features a private balcony, beautiful water views, and a custom walk-in closet. Additional features include impact resistant doors and windows. Located near World Famous Don Cesar, Starbucks, restaurants, Publix, Walgreens, and the beach. Come experience the charm, comfort, and character of this beachside retreat—you may not want to leave!
Features & Amenities
Interior
-
Other Interior Features
Crown Molding, Open Floorplan, Stone Counters, Tray Ceiling(s), Vaulted Ceiling(s)
-
Total Bedrooms
3
-
Bathrooms
3
-
Cooling YN
YES
-
Cooling
Central Air
-
Fireplace YN
YES
-
Heating YN
YES
-
Heating
Central, Electric
-
Pet friendly
Yes
Exterior
-
Garage
Yes
-
Garage spaces
1
-
Construction Materials
Other
-
Other Exterior Features
Balcony, Lighting
-
Parking
Garage Door Opener, Basement, Attached
-
Patio and Porch Features
Covered, Enclosed, Porch, Rear Porch, Screened
-
Pool
Yes
-
Pool Features
Gunite, In Ground
-
Waterfront YN
NO
-
View
Water, Trees/Woods
Area & Lot
-
Lot Size(acres)
0.03
-
Property Type
Residential
-
Property Sub Type
Townhouse
Price
-
Sales Price
$885,000
-
Tax Amount
8880.0
-
Sq. Footage
2, 435
-
Price/SqFt
$363
HOA
-
Association
YES
-
Association Fee
$600
-
Association Fee Frequency
Quarterly
-
Association Fee Includes
N/A
School District
-
Elementary School
Azalea Elementary-PN
-
Middle School
Bay Point Middle-PN
-
High School
Boca Ciega High-PN
Property Features
-
Stories
3
-
Association Amenities
Pool
-
Foundation Details
Slab
-
Ownership
Fee Simple
-
Senior Community YN
NO
-
Sewer
Public Sewer
-
Tax Lot
2
-
Water Source
Public
Schedule a Showing
Showing scheduled successfully.
Mortgage calculator
Estimate your monthly mortgage payment, including the principal and interest, property taxes, and HOA. Adjust the values to generate a more accurate rate.
Your payment
Principal and Interest:
$
Property taxes:
$
HOA fees:
$
Total loan payment:
$
Total interest amount:
$
Location
County
Pinellas
Elementary School
Azalea Elementary-PN
Middle School
Bay Point Middle-PN
High School
Boca Ciega High-PN
Listing Courtesy of Susanne Jones , REDFIN CORPORATION
RealHub Information is provided exclusively for consumers' personal, non-commercial use, and it may not be used for any purpose other than to identify prospective properties consumers may be interested in purchasing. All information deemed reliable but not guaranteed and should be independently verified. All properties are subject to prior sale, change or withdrawal. RealHub website owner shall not be responsible for any typographical errors, misinformation, misprints and shall be held totally harmless.

FOUNDER
DanielleUrtnowski
Call Danielle today to schedule a private showing.

* Listings on this website come from the FMLS IDX Compilation and may be held by brokerage firms other than the owner of this website. The listing brokerage is identified in any listing details. Information is deemed reliable but is not guaranteed. If you believe any FMLS listing contains material that infringes your copyrighted work please click here to review our DMCA policy and learn how to submit a takedown request.© 2024 FMLS.
