Property
Beds
5
Full Baths
3
1/2 Baths
1
Year Built
1954
Sq.Footage
3,282
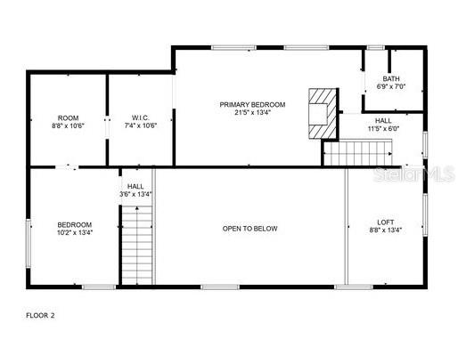
Wow!!! Bring the Friends, Bring the Family—This Belle Vista Beauty Has Room for Everyone, including the fur babies! Welcome to this spacious and fabulously updated 5-bedroom, 3.5 bath pool home, perfectly situated in the highly desirable Belle Vista Community. With 3,282 square feet of living space (3,814 sq ft under roof), this home is designed for comfort, entertaining, and making unforgettable memories. Offering Primary Suites on both the first and second floors, plus three additional bedrooms and a dedicated home office, the layout is ideal for multi-generational living or hosting guests with ease. The open floor plan flows effortlessly for both everyday living and large gatherings, making it an entertainer’s dream. The fabulous kitchen, Spa inspired bathrooms, tropical Landscaping, resort style pool, covered outdoor patio space, pool bath and outdoor shower are just some of the features you will fall in love with! Live everyday where people come to on vacation, this home is just a short walk to the white sandy beaches, shopping, casual and fine dining...but also provides all the serenity of getting away from it all! If you decide it’s time to venture off the island, you’re just 15 minutes from vibrant Downtown St. Petersburg with the world renowned museums and trendy restaurants. Only 35 minutes to Tampa International Airport makes business or casual travel a breeze.
Features & Amenities
Interior
-
Other Interior Features
Dry Bar, Open Floorplan, Vaulted Ceiling(s), Walk-In Closet(s)
-
Total Bedrooms
5
-
Bathrooms
3
-
1/2 Bathrooms
1
-
Cooling YN
YES
-
Cooling
N/A
-
Fireplace YN
YES
-
Heating YN
YES
-
Heating
Central
-
Pet friendly
N/A
Exterior
-
Garage
No
-
Construction Materials
Block, Stucco
-
Other Exterior Features
Lighting, Outdoor Shower, Rain Gutters, Storage
-
Patio and Porch Features
Covered, Front Porch, Patio, Rear Porch
-
Pool
Yes
-
Pool Features
In Ground, Private
-
Waterfront YN
NO
Area & Lot
-
Lot Size(acres)
0.17
-
Property Type
Residential
-
Property Sub Type
Single Family Residence
-
Architectural Style
Coastal
Price
-
Sales Price
$1,199,000
-
Tax Amount
5164.41
-
Sq. Footage
3, 282
-
Price/SqFt
$365
HOA
-
Association
NO
School District
-
Elementary School
N/A
-
Middle School
N/A
-
High School
N/A
Property Features
-
Stories
2
-
Foundation Details
Slab
-
Ownership
Fee Simple
-
Senior Community YN
NO
-
Sewer
Public Sewer
Schedule a Showing
Showing scheduled successfully.
Mortgage calculator
Estimate your monthly mortgage payment, including the principal and interest, property taxes, and HOA. Adjust the values to generate a more accurate rate.
Your payment
Principal and Interest:
$
Property taxes:
$
HOA fees:
$
Total loan payment:
$
Total interest amount:
$
Location
County
Pinellas
Elementary School
Middle School
High School
Listing Courtesy of Melinda Pletcher , SMITH & ASSOCIATES REAL ESTATE
RealHub Information is provided exclusively for consumers' personal, non-commercial use, and it may not be used for any purpose other than to identify prospective properties consumers may be interested in purchasing. All information deemed reliable but not guaranteed and should be independently verified. All properties are subject to prior sale, change or withdrawal. RealHub website owner shall not be responsible for any typographical errors, misinformation, misprints and shall be held totally harmless.

FOUNDER
DanielleUrtnowski
Call Danielle today to schedule a private showing.

* Listings on this website come from the FMLS IDX Compilation and may be held by brokerage firms other than the owner of this website. The listing brokerage is identified in any listing details. Information is deemed reliable but is not guaranteed. If you believe any FMLS listing contains material that infringes your copyrighted work please click here to review our DMCA policy and learn how to submit a takedown request.© 2024 FMLS.
