Contemporary
131 FOREST HILLS DRIVE
REDINGTON SHORES , FL 33708
MLS#: TB8399767
$2,499,000

Property
Beds
4
Full Baths
3
1/2 Baths
1
Year Built
2025
Sq.Footage
3,533
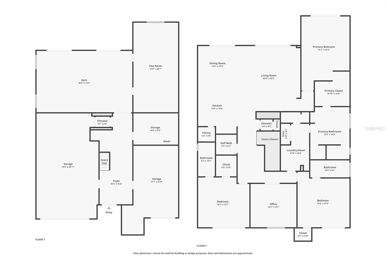
This exquisite custom-built, new construction coastal contemporary home features 4 bedrooms, 3.5 baths, and is situated in the prestigious and guard-gated Redington Shores Yacht and Tennis Club. This newly constructed, open-concept layout with 12 ft ceilings boasts an abundance of natural light and luxurious finishes throughout. You will find hurricane impact-rated windows and doors and a commercial style dual sided elevator which provides convenient access from the garage and foyer to the main living area. The expansive kitchen flows perfectly to the great room and is wonderful for entertaining, featuring high-end appliances, an oversized island, Italian cabinetry, quartz counters and a spacious dining area. The primary bedroom is well-appointed with a rich walk-in closet, a grand shower, floating cabinetry, and a soaking tub. There are 2 generous sized guest bedrooms with walk-in closets, and en suites. The home also includes a fourth bedroom currently being used as an office and laundry room with ample storage. The first floor offers an abundance of bonus space. Please call for a copy of the floor plan and to discuss the endless design possibilities. You will enjoy indoor/outdoor living on the spacious balcony or terrace, which overlooks the heated or cooled saltwater pool and spa, perfect for year-round enjoyment. The home is located in a resort-style community just steps away from the Beach and offers a range of amenities that set it apart from other communities in the area. These include 24-hour security, tennis and pickleball courts, a clubhouse with a fitness center, a community spa, a pool, and a kayak/paddleboard launch, as well as a fishing dock. The location of this home offers easy walking or golf cart access to the beach, many restaurants, bars, shops and the Redington Village. Nearby is Tampa International Airport, Downtown St. Petersburg, pro sports stadiums, entertainment, museums and all of the BEST that Tampa Bay has to offer! Deeded docks with lifts are able to be purchased by residents when available.
Features & Amenities
Interior
-
Other Interior Features
Elevator, High Ceilings, Open Floorplan, Walk-In Closet(s)
-
Total Bedrooms
4
-
Bathrooms
3
-
1/2 Bathrooms
1
-
Cooling YN
YES
-
Cooling
N/A
-
Fireplace YN
NO
-
Heating YN
YES
-
Heating
Central
-
Pet friendly
Yes
Exterior
-
Garage
Yes
-
Garage spaces
3
-
Construction Materials
Block
-
Other Exterior Features
Balcony, Lighting
-
Parking
Electric Vehicle Charging Station(s), Attached
-
Patio and Porch Features
Covered, Patio, Rear Porch
-
Pool
Yes
-
Pool Features
Heated, In Ground, Salt Water, Private
-
Waterfront YN
NO
-
View
Water
Area & Lot
-
Lot Size(acres)
0.17
-
Property Type
Residential
-
Property Sub Type
Single Family Residence
-
Architectural Style
Contemporary
Price
-
Sales Price
$2,499,000
-
Tax Amount
5975.73
-
Sq. Footage
3, 533
-
Price/SqFt
$707
HOA
-
Association
YES
-
Association Fee
$285
-
Association Fee Frequency
Monthly
-
Association Fee Includes
N/A
School District
-
Elementary School
Bauder Elementary-PN
-
Middle School
Seminole Middle-PN
-
High School
Seminole High-PN
Property Features
-
Stories
2
-
Association Amenities
Clubhouse, Fitness Center, Gated, Pool, Security, Spa/Hot Tub, Tennis Court(s)
-
Foundation Details
Slab
-
Ownership
Fee Simple
-
Senior Community YN
NO
-
Sewer
Public Sewer
Schedule a Showing
Showing scheduled successfully.
Mortgage calculator
Estimate your monthly mortgage payment, including the principal and interest, property taxes, and HOA. Adjust the values to generate a more accurate rate.
Your payment
Principal and Interest:
$
Property taxes:
$
HOA fees:
$
Total loan payment:
$
Total interest amount:
$
Location
County
Pinellas
Elementary School
Bauder Elementary-PN
Middle School
Seminole Middle-PN
High School
Seminole High-PN
Listing Courtesy of Melissa Stiles , SMITH & ASSOCIATES REAL ESTATE
RealHub Information is provided exclusively for consumers' personal, non-commercial use, and it may not be used for any purpose other than to identify prospective properties consumers may be interested in purchasing. All information deemed reliable but not guaranteed and should be independently verified. All properties are subject to prior sale, change or withdrawal. RealHub website owner shall not be responsible for any typographical errors, misinformation, misprints and shall be held totally harmless.

FOUNDER
DanielleUrtnowski
Call Danielle today to schedule a private showing.

* Listings on this website come from the FMLS IDX Compilation and may be held by brokerage firms other than the owner of this website. The listing brokerage is identified in any listing details. Information is deemed reliable but is not guaranteed. If you believe any FMLS listing contains material that infringes your copyrighted work please click here to review our DMCA policy and learn how to submit a takedown request.© 2024 FMLS.
