Property
Beds
4
Full Baths
2
1/2 Baths
None
Year Built
2003
Sq.Footage
1,471
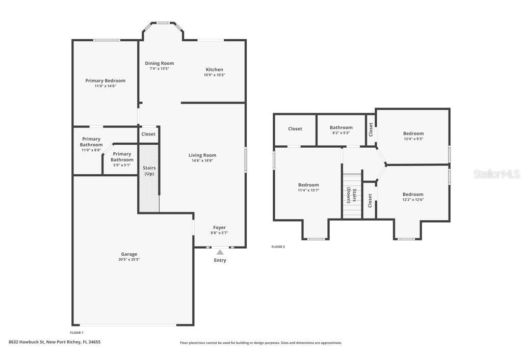
PRICE IMPROVEMENT! VERY MOTIVATED SELLERS!! Welcome home to 8632 Hawbuck Street, located in the Thousand Oaks community of Trinity, Florida. This home boasts 4 bedrooms and 2 full bathrooms, perfectly blending style, comfort, and convenience. Walk up the nicely landscaped front entrance and into the main level living space, with a large family room for entertainment and relaxation, perfect for making family memories. The space flows seamlessly into a dining room and spacious kitchen with newer stainless-steel appliances and ample counter space and storage. Step outside through the sliding glass doors to your private backyard oasis with a patio and completely fenced-in yard backing up to a wooded conservation. The primary suite is also situated on the first floor with a spacious bedroom with tray ceiling and full bathroom with walk-in closet. Three additional bedrooms and a full bathroom await your family and guests on the second floor. The attached 2-car garage features a laundry area and additional storage. Newer roof (2018) and A/C replaced in 2023. This property is situated in a low-traffic neighborhood, yet in a prime location close to newer top-rated schools, new restaurants and shopping, medical facilities, local parks and playgrounds, an amazing YMCA facility with water park, and with easy access to SR54, US19, and the Veterans Expressway. This home is a rare find at a great price. Schedule your private showing today, Sellers are entertaining all offers!
Features & Amenities
Interior
-
Other Interior Features
Eat-in Kitchen
-
Total Bedrooms
4
-
Bathrooms
2
-
Cooling YN
YES
-
Cooling
Central Air
-
Fireplace YN
NO
-
Heating YN
YES
-
Heating
Central
-
Pet friendly
Yes
Exterior
-
Garage
Yes
-
Garage spaces
2
-
Construction Materials
Block, Stucco
-
Other Exterior Features
Rain Gutters
-
Parking
Garage Door Opener, Attached
-
Pool
No
-
Waterfront YN
NO
-
View
Trees/Woods
Area & Lot
-
Lot Features
Paved
-
Lot Size(acres)
0.1
-
Property Type
Residential
-
Property Sub Type
Single Family Residence
Price
-
Sales Price
$359,000
-
Tax Amount
2543.0
-
Sq. Footage
1, 471
-
Price/SqFt
$244
HOA
-
Association
YES
-
Association Fee
$150
-
Association Fee Frequency
Semi-Annually
-
Association Fee Includes
N/A
School District
-
Elementary School
Trinity Elementary-PO
-
Middle School
Seven Springs Middle-PO
-
High School
J.W. Mitchell High-PO
Property Features
-
Association Amenities
Park, Playground
-
Foundation Details
Slab
-
Ownership
Fee Simple
-
Senior Community YN
NO
-
Sewer
Public Sewer
-
Tax Lot
61
-
Water Source
Public
Schedule a Showing
Showing scheduled successfully.
Mortgage calculator
Estimate your monthly mortgage payment, including the principal and interest, property taxes, and HOA. Adjust the values to generate a more accurate rate.
Your payment
Principal and Interest:
$
Property taxes:
$
HOA fees:
$
Total loan payment:
$
Total interest amount:
$
Location
County
Pasco
Elementary School
Trinity Elementary-PO
Middle School
Seven Springs Middle-PO
High School
J.W. Mitchell High-PO
Listing Courtesy of Brian Kanicki , 54 REALTY LLC
RealHub Information is provided exclusively for consumers' personal, non-commercial use, and it may not be used for any purpose other than to identify prospective properties consumers may be interested in purchasing. All information deemed reliable but not guaranteed and should be independently verified. All properties are subject to prior sale, change or withdrawal. RealHub website owner shall not be responsible for any typographical errors, misinformation, misprints and shall be held totally harmless.

FOUNDER
DanielleUrtnowski
Call Danielle today to schedule a private showing.

* Listings on this website come from the FMLS IDX Compilation and may be held by brokerage firms other than the owner of this website. The listing brokerage is identified in any listing details. Information is deemed reliable but is not guaranteed. If you believe any FMLS listing contains material that infringes your copyrighted work please click here to review our DMCA policy and learn how to submit a takedown request.© 2024 FMLS.
