Property
Beds
4
Full Baths
3
1/2 Baths
None
Year Built
2000
Sq.Footage
2,786
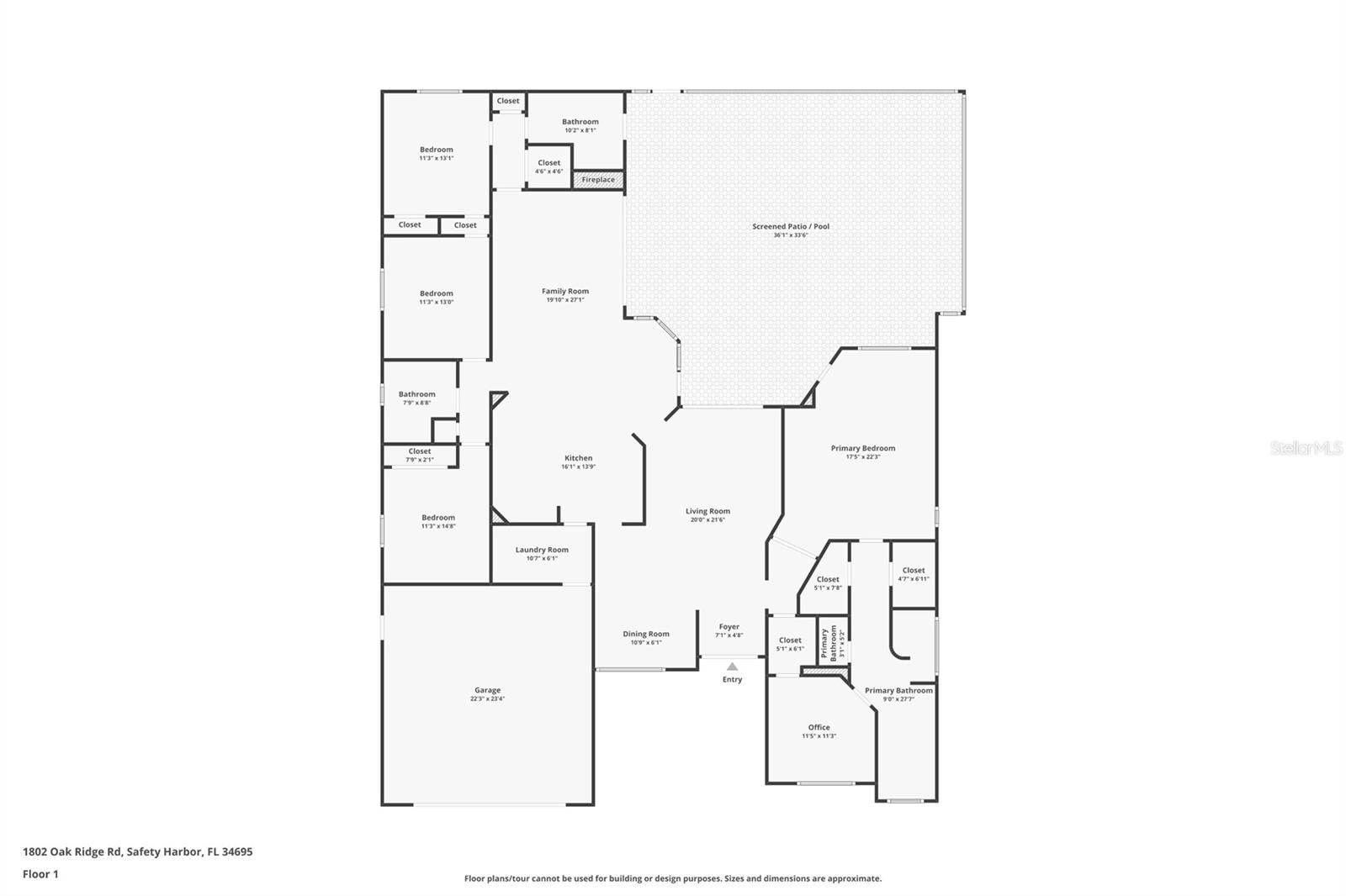
Stunning Pool Home Near Historic Downtown Safety Harbor! Welcome to Old Harbor Place — a peaceful retreat just a short walk from the charm and culture of Historic Downtown Safety Harbor. This beautifully designed 4-bedroom, 3-bath home features a desirable three-way split-plan, 10-foot volume ceilings and an abundance of natural light, creating a bright and open living space perfect for both relaxing and entertaining. A wall of glass sliders provides breathtaking views of the swimming pool and tranquil pond, seamlessly blending indoor and outdoor living. Open concept living and dining offer hours of fun with the billiards table and equipment that conveys, if the buyer chooses. The chef’s kitchen is enhanced with custom granite countertops, abundant pantry and cabinet space, stainless steel appliances including double ovens with convection and a new French Door refrigerator. In true heart of the home fashion, seating at the breakfast bar, breakfast nook and family room are conducive for entertaining. A wood burning fireplace and full views of the pool and pond make this family room a favorite gathering space. A private third wing is comprised of the bright, updated pool bathroom, a bedroom and extra storage closet, making it a great option for multigenerational living and guests. The king-sized primary suite offers access to the lanai and pool along with gorgeous views of the pond, a dedicated Amana® A/C unit, tray ceilings, an elegant en-suite bathroom with serene garden spa tub, double sinks, make-up vanity, separate water closet, spa-like walk-in shower and two walk-in closets — plus a dedicated office. Convenient indoor laundry room boasts plentiful storage adjacent to the oversized garage. Efficiency and comfort abound, thanks to upgrades including Icynene® spray foam attic insulation and 2024 natural gas tankless hot water heater. Have peace of mind with hurricane shutters and integrated outlet for the generator! Although it is waterfront, this home is FEMA LOMA certified, removing the structure from the flood zone; almost 24 feet above flood zone. Conveniently located, just minutes from world-class beaches, shopping, Tampa International Airport, Clearwater/St. Pete Airport and downtown Tampa and St. Petersburg. Quickly access Downtown Safety Harbor by using the community rear exit to Main Street, great for a stroll or bike ride to enjoy all that Safety Harbor has to offer! Room sizes are approximate. Don't wait on this one!
Features & Amenities
Interior
-
Other Interior Features
Built-in Features, Crown Molding, Eat-in Kitchen, High Ceilings, Open Floorplan, Stone Counters, Walk-In Closet(s)
-
Total Bedrooms
4
-
Bathrooms
3
-
Cooling YN
YES
-
Cooling
Central Air, Ductless
-
Fireplace YN
YES
-
Heating YN
YES
-
Heating
Central, Electric
-
Pet friendly
Yes
Exterior
-
Garage
Yes
-
Garage spaces
2
-
Construction Materials
Block, Concrete, Stucco
-
Other Exterior Features
Lighting, Rain Gutters
-
Parking
Driveway, Garage Door Opener, Oversized, Attached
-
Patio and Porch Features
Covered, Screened
-
Pool
Yes
-
Pool Features
Gunite, In Ground, Screen Enclosure, Private
-
Waterfront YN
YES
-
View
Pond, Water, Trees/Woods
Area & Lot
-
Lot Features
Corner Lot, Paved, Waterfront
-
Lot Size(acres)
0.23
-
Property Type
Residential
-
Property Sub Type
Single Family Residence
-
Architectural Style
Mediterranean
Price
-
Sales Price
$949,900
-
Tax Amount
4543.34
-
Sq. Footage
2, 786
-
Price/SqFt
$340
HOA
-
Association
YES
-
Association Fee
$677
-
Association Fee Frequency
Annually
-
Association Fee Includes
N/A
School District
-
Elementary School
Safety Harbor Elementary-PN
-
Middle School
Safety Harbor Middle-PN
-
High School
Countryside High-PN
Property Features
-
Stories
1
-
Foundation Details
Slab
-
Ownership
Fee Simple
-
Senior Community YN
NO
-
Sewer
Public Sewer
-
Tax Lot
21
-
Water Source
Public
Schedule a Showing
Showing scheduled successfully.
Mortgage calculator
Estimate your monthly mortgage payment, including the principal and interest, property taxes, and HOA. Adjust the values to generate a more accurate rate.
Your payment
Principal and Interest:
$
Property taxes:
$
HOA fees:
$
Total loan payment:
$
Total interest amount:
$
Location
County
Pinellas
Elementary School
Safety Harbor Elementary-PN
Middle School
Safety Harbor Middle-PN
High School
Countryside High-PN
Listing Courtesy of Rachel Friesema , BHHS FLORIDA PROPERTIES GROUP
RealHub Information is provided exclusively for consumers' personal, non-commercial use, and it may not be used for any purpose other than to identify prospective properties consumers may be interested in purchasing. All information deemed reliable but not guaranteed and should be independently verified. All properties are subject to prior sale, change or withdrawal. RealHub website owner shall not be responsible for any typographical errors, misinformation, misprints and shall be held totally harmless.

FOUNDER
DanielleUrtnowski
Call Danielle today to schedule a private showing.

* Listings on this website come from the FMLS IDX Compilation and may be held by brokerage firms other than the owner of this website. The listing brokerage is identified in any listing details. Information is deemed reliable but is not guaranteed. If you believe any FMLS listing contains material that infringes your copyrighted work please click here to review our DMCA policy and learn how to submit a takedown request.© 2024 FMLS.
