Property
Beds
None
Full Baths
None
1/2 Baths
None
Year Built
1970
Sq.Footage
5,113
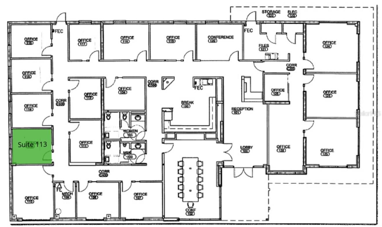
One gorgeous executive suite available in the heart of South Tampa. This building had a top to bottom renovation and many high-end finishes and upgrades. Each office is soundproofed for privacy and is available furnished. All utilities, data, and janitorial are included and many additional services are available such as reception and inbound call service and call forwarding. As you enter the building, your clients will be greeted by the receptionist in the spacious lobby which sits adjacent to the main conference room. The building is nicely appointed with tasteful artwork and floor to ceiling glass in the lobby. The main conference room and a secondary conference room to the rear are also available for smaller groups or meetings requiring more discretion. Both are available for reservation with the receptionist and have ample seating and video conferencing. A large common break room is also available to all tenants. This building is perfect for attorneys, financial advisors, and many other professional service users and offers the class and prestige one would expect from one of South Tampa's flagship buildings. Suite 113 - 10 x 12 - 177 SF - Exterior window office on the west side of the building. Measures 10 x 12. Balance of square footage is comprised of common areas; conference room, hallways, restrooms, kitchen and reception. Includes desk, Herman Miller desk chair, credenza, and two leather guest chairs. Initial estimated monthly rent: $1,500/month (includes Full Service rate) plus applicable tax - 12 month lease available Located in the heart of South Tampa / Hyde Park area at the corner of Armenia and Swann Avenue.
Features & Amenities
Interior
-
Total Bedrooms
N/A
-
Bathrooms
N/A
-
Pet friendly
N/A
Exterior
-
Garage
No
-
Construction Materials
Block
-
Pool
No
-
Waterfront YN
NO
Area & Lot
-
Lot Size(acres)
0.38
-
Property Type
Commercial Lease
-
Property Sub Type
Office
Price
-
Sales Price
$18,000
-
Tax Amount
32076.91
-
Sq. Footage
5, 113
-
Price/SqFt
$3
HOA
-
Association
No
School District
-
Elementary School
N/A
-
Middle School
N/A
-
High School
N/A
Property Features
-
Stories
1
-
Foundation Details
Slab
Schedule a Showing
Showing scheduled successfully.
Mortgage calculator
Estimate your monthly mortgage payment, including the principal and interest, property taxes, and HOA. Adjust the values to generate a more accurate rate.
Your payment
Principal and Interest:
$
Property taxes:
$
HOA fees:
$
Total loan payment:
$
Total interest amount:
$
Location
County
Hillsborough
Elementary School
Middle School
High School
Listing Courtesy of Michael Braccia, PA , BAY STREET COMMERCIAL LLC
RealHub Information is provided exclusively for consumers' personal, non-commercial use, and it may not be used for any purpose other than to identify prospective properties consumers may be interested in purchasing. All information deemed reliable but not guaranteed and should be independently verified. All properties are subject to prior sale, change or withdrawal. RealHub website owner shall not be responsible for any typographical errors, misinformation, misprints and shall be held totally harmless.

FOUNDER
DanielleUrtnowski
Call Danielle today to schedule a private showing.

* Listings on this website come from the FMLS IDX Compilation and may be held by brokerage firms other than the owner of this website. The listing brokerage is identified in any listing details. Information is deemed reliable but is not guaranteed. If you believe any FMLS listing contains material that infringes your copyrighted work please click here to review our DMCA policy and learn how to submit a takedown request.© 2024 FMLS.

Related Properties
