Property
Beds
2
Full Baths
1
1/2 Baths
1
Year Built
1973
Sq.Footage
1,040
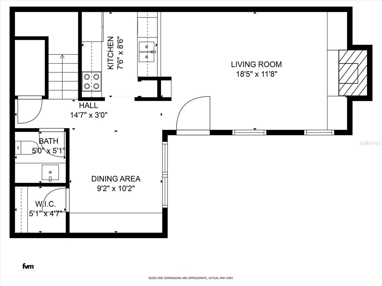
Looking for a GREAT INVESTMENT PROPERTY, SECOND HOME OR A MORE PERMANENT PLACE to hang your flip flops and live your best beach life? Look no further than 343 REX PL #G in Madeira Beach Yacht Club (MBYCC)…a perfect retreat from the hustle and bustle of everyday life for you and your guests. Up one flight of stairs, you will be welcomed to a HIGH AND DRY, MOVE-IN READY 2 STORY TOWNHOUSE STYLE unit with kitchen, living room, additional dining area and half bath on the first floor, and 2 bedrooms, full bath and laundry on the upper level. The unit is being OFFERED TURNKEY allowing you to move in, or rent out right away. 7 DAY RENTALS ARE ALLOWED giving you flexible occupancy options while maximizing additional income should you desire. MBYCC is a GATED COMMUNITY WITH RESORT STYLE AMENITIES that include waterfront walking paths and amazing intracoastal views (yes you will see dolphins), 2 heated swimming pools (one just steps from the condo door), hot tub, clubhouse, fitness rooms, fishing piers and more! And it doesn’t stop there…walk, ride or roll just a COUPLE OF BLOCKS TO THE BEACH where you and your guests can enjoy miles of sandy shores and breathtaking sunsets, every…single…night! ROC Park (across the street) offers waterfront activities, splash pad, playground, dog park, fishing pier, tennis, basketball, baseball and more! Local boutiques, coffee shops, bars, restaurants, library, post office, grocery and pharmacy stores are all within a short distance and world famous John’s Pass is a couple of miles away. PRO-ACTIVE BOARD with FULL-TIME ASSOCIATION MANAGEMENT ON-SITE. COMMUNITY MILESTONE INSPECTION PASSED and SIRS RESERVE STUDY COMPLETED. Full set of condo docs available upon request. Be sure to VIEW THE 3D TOUR link for an immediate walk through experience. Then schedule your in person visit and DON’T FORGET TO BRING YOUR FLIP FLOPS!
Features & Amenities
Interior
-
Other Interior Features
High Ceilings, Vaulted Ceiling(s), Walk-In Closet(s)
-
Total Bedrooms
2
-
Bathrooms
1
-
1/2 Bathrooms
1
-
Cooling YN
YES
-
Cooling
Central Air
-
Fireplace YN
YES
-
Heating YN
YES
-
Heating
Central
-
Pet friendly
Yes
Exterior
-
Garage
No
-
Construction Materials
Block, Stucco, Frame
-
Other Exterior Features
Rain Gutters
-
Parking
Guest, Off Street, Open
-
Patio and Porch Features
Front Porch
-
Pool
Yes
-
Pool Features
Heated, In Ground
-
Waterfront YN
NO
Area & Lot
-
Property Type
Residential
-
Property Sub Type
Condominium
Price
-
Sales Price
$365,000
-
Tax Amount
5777.78
-
Sq. Footage
1, 040
-
Price/SqFt
$350
HOA
-
Association
YES
-
Association Fee
$1,070
-
Association Fee Frequency
Monthly
-
Association Fee Includes
N/A
School District
-
Elementary School
Orange Grove Elementary-PN
-
Middle School
Seminole Middle-PN
-
High School
Seminole High-PN
Property Features
-
Stories
3
-
Foundation Details
Slab
-
Ownership
Condominium
-
Senior Community YN
NO
-
Sewer
Public Sewer
-
Tax Lot
0
-
Water Source
Public
Schedule a Showing
Showing scheduled successfully.
Mortgage calculator
Estimate your monthly mortgage payment, including the principal and interest, property taxes, and HOA. Adjust the values to generate a more accurate rate.
Your payment
Principal and Interest:
$
Property taxes:
$
HOA fees:
$
Total loan payment:
$
Total interest amount:
$
Location
County
Pinellas
Elementary School
Orange Grove Elementary-PN
Middle School
Seminole Middle-PN
High School
Seminole High-PN
Listing Courtesy of Heloise Povey , COASTAL PROPERTIES GROUP INTERNATIONAL
RealHub Information is provided exclusively for consumers' personal, non-commercial use, and it may not be used for any purpose other than to identify prospective properties consumers may be interested in purchasing. All information deemed reliable but not guaranteed and should be independently verified. All properties are subject to prior sale, change or withdrawal. RealHub website owner shall not be responsible for any typographical errors, misinformation, misprints and shall be held totally harmless.

FOUNDER
DanielleUrtnowski
Call Danielle today to schedule a private showing.

* Listings on this website come from the FMLS IDX Compilation and may be held by brokerage firms other than the owner of this website. The listing brokerage is identified in any listing details. Information is deemed reliable but is not guaranteed. If you believe any FMLS listing contains material that infringes your copyrighted work please click here to review our DMCA policy and learn how to submit a takedown request.© 2024 FMLS.
