Property
Beds
1
Full Baths
1
1/2 Baths
None
Year Built
1972
Sq.Footage
492
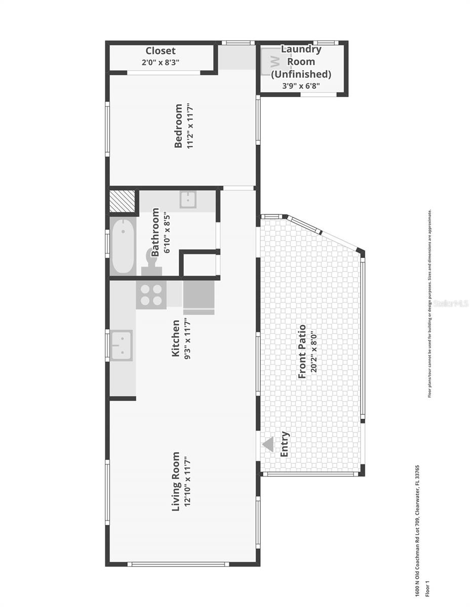
Beautiful 1-Bed 1-Bath Mobile Home - only $190 HOA in Clearwater Non flood zone! sought after location in Clearwater and among lowest maintenance fee in Pinellas County Florida, this corner unit offers a contemporary and bright open floor plan that will please the eye and inspire the heart. The Home is being thoroughly updated and tastefully upgraded from the inside out. Features a totally resealed metal roof, newer plumbing lines and faucets, new wall panels and framing, 4 new vinyl windows, newer wood laminate and luxury vinyl flooring, re-built wood kitchen and bathroom cabinets, fresh paint inside and outside and the list goes on!. The kitchen and living area are joined together by the custom made dining table, includes a home office corner desk which smoothly blends as entertainment center. The kitchen has plenty of cabinets, among them two high and deep closets for pantry and home tools such as vacuum and step latter, double stainless steel sink and window facing the back of the unit brightens up the kitchen from morning to dusk. The tastefully color coordinated spacious bathroom includes huge linen closet, ample vanity with drawers and a medicine cabinet. The Bedroom includes spacious double door closet with built in shelving for shoes and bedroom storage, a built in drawer dresser and movable drawer dresser, decorative set of night lamps and a ceiling fan. The home comes with all furniture and window dressings (except portable fire place). Storage/laundry room comes with large commercial type washer machine with hot/cold hook ups and built in storage shelves. $190 maintenance fee includes grounds maintenance, sewer, trash, water, recreational facilities, clubhouse and community laundry room. Alcove is partially surrounded by Coachman Ridge Park, which includes walking trails, creeks, nature preserve areas and more. Located right behind is also The Long Center facility that offers Olympic sized swimming pool, gymnasium, soccer fields, biking and running trails, etc, they offer great discounts to seniors. 15 minutes drive to Clearwater Beach and shorter walking and driving distances to Countryside Mall, Shopping Plazas, Hospitals, Restaurants and Entertainment Venues all around. Alcove is resident owned community, land occupying the home equates to one share which comes included in the price (NOT LOT RENT). This is a 55+ community, no pets, and no leasing allowed. Note: MINIMUM CREDIT SCORE FOR BUYERS IS 725.
Features & Amenities
Interior
-
Other Interior Features
Eat-in Kitchen
-
Total Bedrooms
1
-
Bathrooms
1
-
Cooling YN
YES
-
Cooling
Central Air
-
Fireplace YN
NO
-
Heating YN
YES
-
Heating
Central
-
Pet friendly
No
Exterior
-
Garage
No
-
Construction Materials
Metal Siding
-
Other Exterior Features
Lighting, Other
-
Patio and Porch Features
Covered, Enclosed, Front Porch
-
Pool
No
-
Waterfront YN
NO
Area & Lot
-
Lot Size(acres)
0.1
-
Property Type
Residential
-
Property Sub Type
Mobile Home
-
Architectural Style
Florida
Price
-
Sales Price
$69,800
-
Tax Amount
75.0
-
Sq. Footage
492
-
Price/SqFt
$141
HOA
-
Association
YES
-
Association Fee
$190
-
Association Fee Frequency
Monthly
-
Association Fee Includes
N/A
School District
-
Elementary School
N/A
-
Middle School
N/A
-
High School
N/A
Property Features
-
Association Amenities
Clubhouse
-
Ownership
Co-op
-
Senior Community YN
YES
-
Sewer
Public Sewer
-
Tax Lot
709
-
Water Source
Public
Schedule a Showing
Showing scheduled successfully.
Mortgage calculator
Estimate your monthly mortgage payment, including the principal and interest, property taxes, and HOA. Adjust the values to generate a more accurate rate.
Your payment
Principal and Interest:
$
Property taxes:
$
HOA fees:
$
Total loan payment:
$
Total interest amount:
$
Location
County
Pinellas
Elementary School
Middle School
High School
Listing Courtesy of Kathy Ruff , HOME SWEET HOME REAL ESTATE
RealHub Information is provided exclusively for consumers' personal, non-commercial use, and it may not be used for any purpose other than to identify prospective properties consumers may be interested in purchasing. All information deemed reliable but not guaranteed and should be independently verified. All properties are subject to prior sale, change or withdrawal. RealHub website owner shall not be responsible for any typographical errors, misinformation, misprints and shall be held totally harmless.

FOUNDER
DanielleUrtnowski
Call Danielle today to schedule a private showing.

* Listings on this website come from the FMLS IDX Compilation and may be held by brokerage firms other than the owner of this website. The listing brokerage is identified in any listing details. Information is deemed reliable but is not guaranteed. If you believe any FMLS listing contains material that infringes your copyrighted work please click here to review our DMCA policy and learn how to submit a takedown request.© 2024 FMLS.
