Property
Beds
2
Full Baths
2
1/2 Baths
None
Year Built
1986
Sq.Footage
1,170
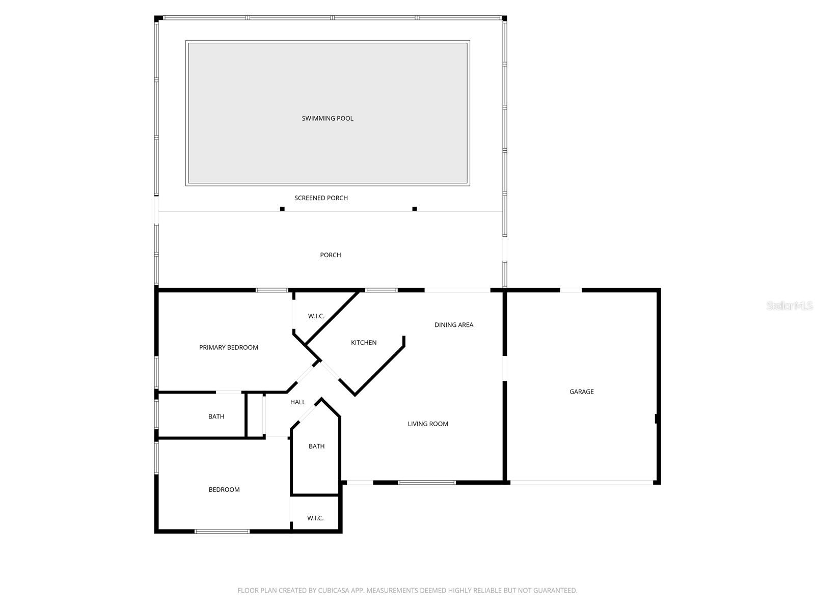
Sparkling Pool Home with Modern Upgrades! Step into comfort and style with this beautifully maintained 2-bedroom, 2-bath pool home featuring a spacious 2-car garage and an inviting open floor plan with cathedral ceilings. The heart of the home flows seamlessly from the living area to the dining space, where sliding doors open to reveal a relaxing pool view. Entertain in style on the extra-large screened lanai, perfect for weekend gatherings or peaceful evenings by the water. The kitchen is designed for both function and flair with stainless steel appliances, granite countertops, and plenty of storage. Thoughtful updates throughout the home ensure peace of mind, including a new roof in 2017, an A/C system installed in 2020, a water heater in 2021, and energy-efficient windows, sliding door, and front door replaced in 2022. The pool filter is also brand new, adding to the ease of ownership. Whether you’re lounging by the pool, hosting friends, or simply enjoying the laid-back Florida lifestyle, this home delivers it all. Move-in ready and thoughtfully updated, it’s the perfect blend of comfort, efficiency, and relaxation. Schedule your private showing today and make this poolside retreat yours!
Features & Amenities
Interior
-
Other Interior Features
Walk-In Closet(s)
-
Total Bedrooms
2
-
Bathrooms
2
-
Cooling YN
YES
-
Cooling
Central Air
-
Fireplace YN
NO
-
Heating YN
YES
-
Heating
Electric
-
Pet friendly
N/A
Exterior
-
Garage
Yes
-
Garage spaces
2
-
Construction Materials
Block, Stucco
-
Parking
Attached
-
Patio and Porch Features
Front Porch, Patio, Rear Porch, Screened
-
Pool
Yes
-
Pool Features
In Ground, Screen Enclosure, Private
-
Waterfront YN
NO
Area & Lot
-
Lot Size(acres)
0.2
-
Property Type
Residential
-
Property Sub Type
Single Family Residence
Price
-
Sales Price
$325,000
-
Tax Amount
3368.85
-
Sq. Footage
1, 170
-
Price/SqFt
$277
HOA
-
Association
NO
School District
-
Elementary School
Explorer K-8
-
Middle School
Fox Chapel Middle School
-
High School
Frank W Springstead
Property Features
-
Foundation Details
Slab
-
Ownership
Fee Simple
-
Senior Community YN
NO
-
Sewer
Septic Tank
-
Tax Lot
16
-
Water Source
Public
Schedule a Showing
Showing scheduled successfully.
Mortgage calculator
Estimate your monthly mortgage payment, including the principal and interest, property taxes, and HOA. Adjust the values to generate a more accurate rate.
Your payment
Principal and Interest:
$
Property taxes:
$
HOA fees:
$
Total loan payment:
$
Total interest amount:
$
Location
County
Hernando
Elementary School
Explorer K-8
Middle School
Fox Chapel Middle School
High School
Frank W Springstead
Listing Courtesy of Jackie Millan , KELLER WILLIAMS ADVANTAGE III
RealHub Information is provided exclusively for consumers' personal, non-commercial use, and it may not be used for any purpose other than to identify prospective properties consumers may be interested in purchasing. All information deemed reliable but not guaranteed and should be independently verified. All properties are subject to prior sale, change or withdrawal. RealHub website owner shall not be responsible for any typographical errors, misinformation, misprints and shall be held totally harmless.

FOUNDER
DanielleUrtnowski
Call Danielle today to schedule a private showing.

* Listings on this website come from the FMLS IDX Compilation and may be held by brokerage firms other than the owner of this website. The listing brokerage is identified in any listing details. Information is deemed reliable but is not guaranteed. If you believe any FMLS listing contains material that infringes your copyrighted work please click here to review our DMCA policy and learn how to submit a takedown request.© 2024 FMLS.
