Property
Beds
None
Full Baths
None
1/2 Baths
None
Year Built
None
Lot size
26.97 acres
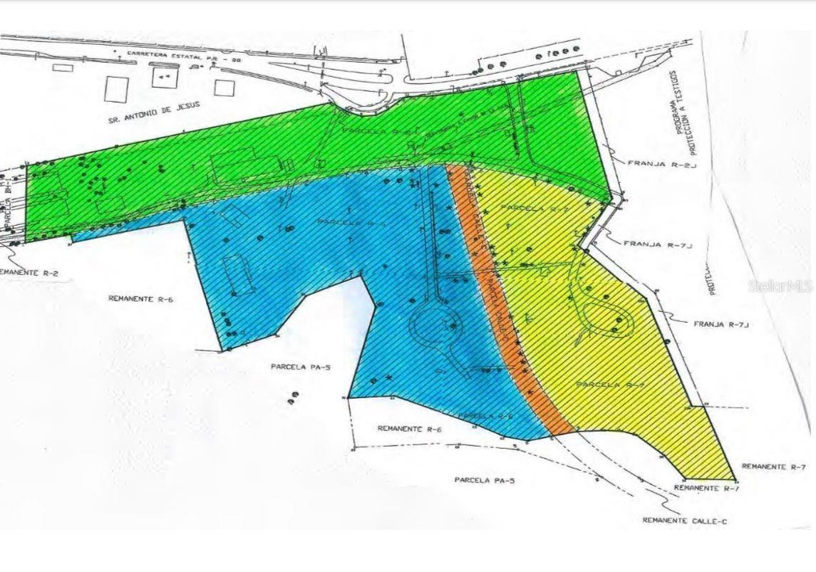
This exceptional industrial lot is located in Bayamón’s prime industrial district, strategically positioned near major ports and key distributors including Goya and Puma Energy, among others. With Heavy Industrial (I-P) zoning and a total registered area of 114,223.77 square meters (28.19 acres) across four segregated parcels, the site provides extraordinary flexibility for large-scale development. Its strategic location, connectivity, and ample space make it ideal for distribution centers, logistics hubs, manufacturing facilities, or industrial warehouses seeking proximity to San Juan’s metropolitan market. Highlights: • Prime Bayamón industrial location near major distributors and infrastructure • Heavy Industrial (I-P) zoning • Total area: 114,223.77 m² (28.19 acres) • Subdivided into 4 registered parcels • Ideal for logistics, warehousing, or manufacturing projects • $148.83 a square meter
Features & Amenities
Interior
-
Total Bedrooms
N/A
-
Bathrooms
N/A
-
Pet friendly
N/A
Exterior
-
Garage
No
-
Pool
No
-
Waterfront YN
NO
Area & Lot
-
Lot Size(acres)
26.97
-
Property Type
Land
Price
-
Sales Price
$17,000,000
-
Sq. Footage
N/A
-
Price/SqFt
N/A
HOA
-
Association
No
School District
-
Elementary School
N/A
-
Middle School
N/A
-
High School
N/A
Property Features
-
Ownership
Other
-
Sewer
Public Sewer
-
Water Source
None
Schedule a Showing
Showing scheduled successfully.
Mortgage calculator
Estimate your monthly mortgage payment, including the principal and interest, property taxes, and HOA. Adjust the values to generate a more accurate rate.
Your payment
Principal and Interest:
$
Property taxes:
$
HOA fees:
$
Total loan payment:
$
Total interest amount:
$
Location
County
Bayamón
Elementary School
Middle School
High School
Listing Courtesy of Meilyn Guzman Ensenat , MEILYN GUZMAN ENSENAT
RealHub Information is provided exclusively for consumers' personal, non-commercial use, and it may not be used for any purpose other than to identify prospective properties consumers may be interested in purchasing. All information deemed reliable but not guaranteed and should be independently verified. All properties are subject to prior sale, change or withdrawal. RealHub website owner shall not be responsible for any typographical errors, misinformation, misprints and shall be held totally harmless.

FOUNDER
DanielleUrtnowski
Call Danielle today to schedule a private showing.

* Listings on this website come from the FMLS IDX Compilation and may be held by brokerage firms other than the owner of this website. The listing brokerage is identified in any listing details. Information is deemed reliable but is not guaranteed. If you believe any FMLS listing contains material that infringes your copyrighted work please click here to review our DMCA policy and learn how to submit a takedown request.© 2024 FMLS.
