Property
Beds
23
Full Baths
12
1/2 Baths
2
Year Built
1890
Sq.Footage
11,950
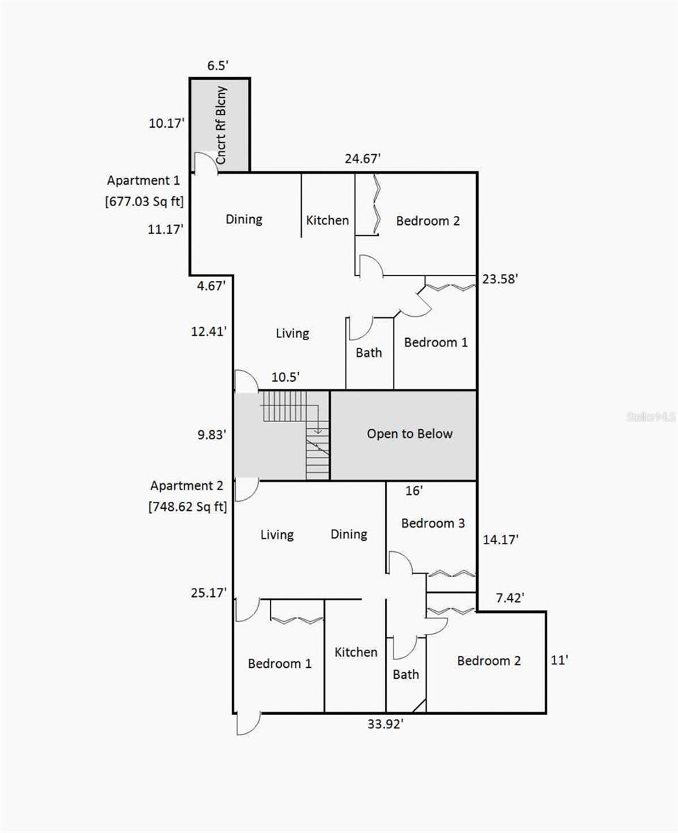
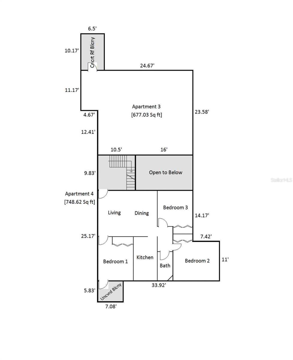
Located along the most storied and dynamic street in Old San Juan, 103 Calle del Cristo is a rare full-building offering in one of the city's most desirable and historically rich areas. Just steps from El Convento Hotel, the Governor’s Mansion, the San Juan Cathedral, acclaimed restaurants, and the vibrant Parque de las Palomas, this property combines scale, location, and potential in a way few others can. Set on a 450 square meter lot, the building encompasses approximately 11,950 square feet of total construction, thoughtfully divided between 8,366 square feet of residential living area and 3,584 square feet of commercial space. The commercial component consists of two ground-level units: Commercial Unit 1: ±1,094 square feet Commercial Unit 2: ±1,491 square feet The residential portion includes 10 apartments configured as follows: 4 apartments with 3 bedrooms and 2 bathrooms 5 apartments with 2 bedrooms and 1 bathroom 1 apartment with 1 bedroom and 1 bathroom The building retains classic Old San Juan architectural elements—arched doorways, wrought iron balconies, and open-air patios—with several units enjoying rooftop or terrace access. While select areas invite enhancement, the property provides a solid architectural foundation and a rare opportunity to reimagine the space with modern vision. Old San Juan is a UNESCO World Heritage Site and one of the oldest settlements in the Americas, celebrated for its colorful colonial architecture, cobblestone streets, and vibrant cultural life. The neighborhood is both a major tourist destination and a growing hub for boutique development. Located just 15 minutes from the Luis Muñoz Marín International Airport and about 10 minutes from Condado and the Convention District, this address offers unmatched accessibility for visitors, residents, or hospitality operations. Whether envisioned as a boutique hospitality concept, a multi-unit residential development, or a mixed-use commercial project, 103 Calle del Cristo offers the flexibility, presence, and location to support a wide range of creative possibilities. This is a singular investment opportunity to shape the next chapter of a landmark address in the cultural heart of Old San Juan.
Features & Amenities
Interior
-
Other Interior Features
High Ceilings
-
Total Bedrooms
23
-
Bathrooms
12
-
1/2 Bathrooms
2
-
Cooling YN
YES
-
Cooling
N/A
-
Fireplace YN
NO
-
Heating YN
NO
-
Heating
None
-
Pet friendly
N/A
Exterior
-
Garage
No
-
Construction Materials
Brick, Concrete
-
Other Exterior Features
Balcony, Courtyard
-
Pool
No
-
Waterfront YN
NO
Area & Lot
-
Lot Size(acres)
0.1
-
Property Type
Residential
-
Property Sub Type
Condominium
Price
-
Sales Price
$3,995,000
-
Sq. Footage
11, 950
-
Price/SqFt
$334
HOA
-
Association
NO
School District
-
Elementary School
N/A
-
Middle School
N/A
-
High School
N/A
Property Features
-
Stories
5
-
Foundation Details
Slab
-
Ownership
Fee Simple
-
Sewer
Private Sewer
Schedule a Showing
Showing scheduled successfully.
Mortgage calculator
Estimate your monthly mortgage payment, including the principal and interest, property taxes, and HOA. Adjust the values to generate a more accurate rate.
Your payment
Principal and Interest:
$
Property taxes:
$
HOA fees:
$
Total loan payment:
$
Total interest amount:
$
Location
County
San Juan
Elementary School
Middle School
High School
Listing Courtesy of Maria Del Valle , CORCORAN PUERTO RICO
RealHub Information is provided exclusively for consumers' personal, non-commercial use, and it may not be used for any purpose other than to identify prospective properties consumers may be interested in purchasing. All information deemed reliable but not guaranteed and should be independently verified. All properties are subject to prior sale, change or withdrawal. RealHub website owner shall not be responsible for any typographical errors, misinformation, misprints and shall be held totally harmless.

FOUNDER
DanielleUrtnowski
Call Danielle today to schedule a private showing.

* Listings on this website come from the FMLS IDX Compilation and may be held by brokerage firms other than the owner of this website. The listing brokerage is identified in any listing details. Information is deemed reliable but is not guaranteed. If you believe any FMLS listing contains material that infringes your copyrighted work please click here to review our DMCA policy and learn how to submit a takedown request.© 2024 FMLS.
