Features & Amenities

Interior

  • Other Interior Features

    Built-in Features, Crown Molding, Eat-in Kitchen, High Ceilings, Open Floorplan, Other

  • Total Bedrooms

    3

  • Bathrooms

    3

  • Cooling YN

    YES

  • Cooling

    Central Air

  • Fireplace YN

    NO

  • Heating YN

    YES

  • Heating

    Active Solar, Electric, Solar

  • Pet friendly

    N/A

Exterior

  • Garage

    Yes

  • Garage spaces

    2

  • Construction Materials

    Block, Stucco

  • Other Exterior Features

    Lighting, Other, Private Entrance, Private Yard, RV Hookup, Storage

  • Parking

    Attached

  • Pool

    Yes

  • Pool Features

    Heated, In Ground, Other, Private

  • Waterfront YN

    NO

Area & Lot

  • Lot Size(acres)

    5.06

  • Property Type

    Residential

  • Property Sub Type

    Single Family Residence

Price

  • Sales Price

    $1,599,000

  • Tax Amount

    9133.87

  • Sq. Footage

    2, 488

  • Price/SqFt

    $642

HOA

  • Association

    No

School District

  • Elementary School

    Ward-Highlands Elem. School

  • Middle School

    Howard Middle School

  • High School

    Vanguard High School

Property Features

  • Stories

    1

  • Foundation Details

    Slab

  • Ownership

    Fee Simple

  • Senior Community YN

    NO

  • Sewer

    Septic Tank

  • Tax Lot

    0

  • Water Source

    Private, Well

Schedule a Showing

Showing scheduled successfully.

<
>
IN PERSON
VIA CHAT

What is 3 + 4 ?


Change time

Mortgage calculator

Estimate your monthly mortgage payment, including the principal and interest, property taxes, and HOA. Adjust the values to generate a more accurate rate.

Your payment

Principal and Interest:

$

Property taxes:

$

HOA fees:

$

Total loan payment:

$

Total interest amount:

$

Location

County

Marion

Elementary School

Ward-Highlands Elem. School

Middle School

Howard Middle School

High School

Vanguard High School

Listing Courtesy of Cameron Cowart , DALTON WADE INC

RealHub Information is provided exclusively for consumers' personal, non-commercial use, and it may not be used for any purpose other than to identify prospective properties consumers may be interested in purchasing. All information deemed reliable but not guaranteed and should be independently verified. All properties are subject to prior sale, change or withdrawal. RealHub website owner shall not be responsible for any typographical errors, misinformation, misprints and shall be held totally harmless.

Agent DanielleUrtnowski

FOUNDER

DanielleUrtnowski

Call Danielle today to schedule a private showing.


* Listings on this website come from the FMLS IDX Compilation and may be held by brokerage firms other than the owner of this website. The listing brokerage is identified in any listing details. Information is deemed reliable but is not guaranteed. If you believe any FMLS listing contains material that infringes your copyrighted work please click here to review our DMCA policy and learn how to submit a takedown request.© 2024 FMLS.
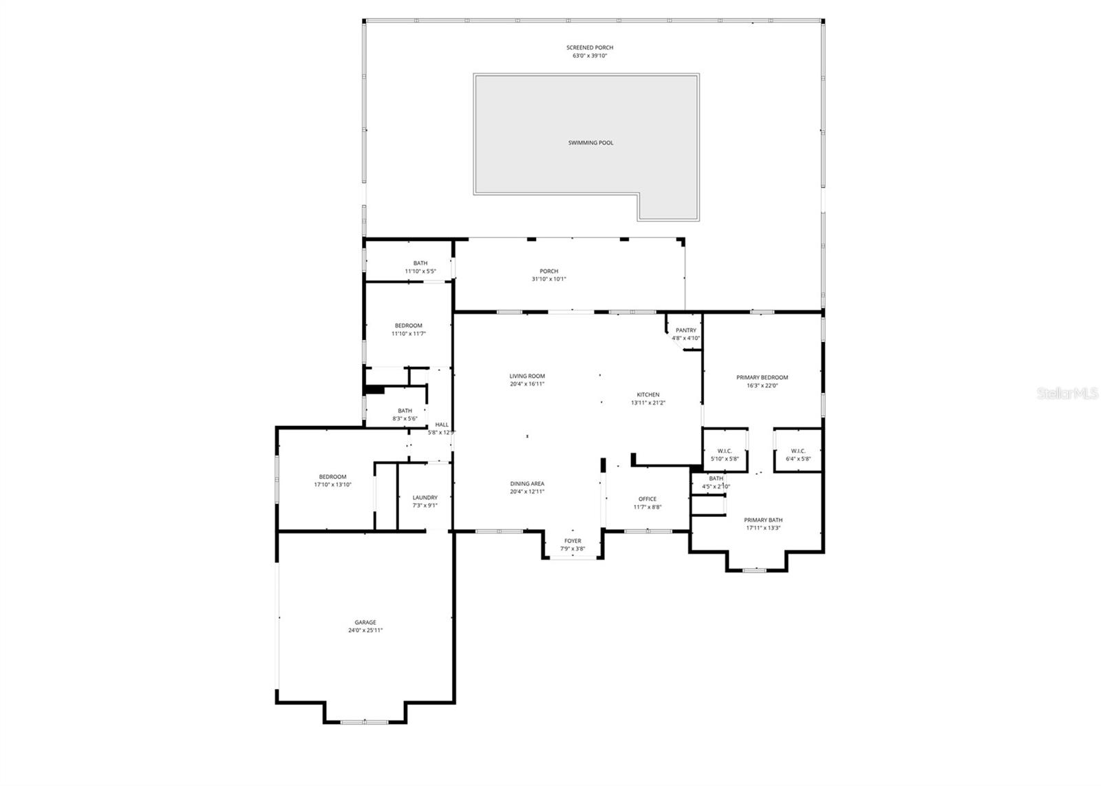
Experience refined country living at its finest in this beautifully maintained 2,400+ sq ft custom estate, perfectly positioned on 5+ pristine, fully fenced acres with an impressive automatic gated entry. From the moment you arrive, the property radiates privacy, sophistication, and pride of ownership. Inside, the home welcomes you with an open-concept design, soaring 10-ft crown-molded ceilings, and an abundance of natural light that fills the spacious living areas. The bright, airy layout is ideal for both relaxed everyday living and effortless entertaining. At the heart of the home, the chef’s kitchen shines with marble countertops, a generous sit-in island with built-in storage, double wall ovens, and premium finishes, all enhanced by built-in surround sound that carries through the main living spaces. The primary suite is a luxurious escape featuring dual walk-in closets, a 6-ft soaking tub, a beautifully tiled walk-in shower, and a dual-sink vanity designed for comfort and style. The finished garage stands out with custom cabinetry, shelving, and tiled flooring—offering exceptional storage, organization, and workspace for hobbies, vehicles, or equipment. Step outside to a true resort-style oasis. The 16x32 heated in-ground pool, spa-inspired hot tub, and expansive patio invite year-round relaxation and outdoor living. Whether you’re enjoying quiet mornings by the water or hosting weekend gatherings, this space elevates everyday life. Energy-efficient upgrades—including solar panels and a tankless water heater—provide modern convenience and long-term savings. The open acreage offers endless possibilities: bring your horses, create recreational spaces, or plan future expansions tailored to your lifestyle. All of this is ideally located just 15 minutes from downtown Ocala and under 30 minutes from the World Equestrian Center—close enough for convenience, yet far enough to enjoy the tranquility of private estate living. Seller is offering the option to purchase fully furnished, making this a rare turnkey property that effortlessly combines luxury, comfort, and unmatched privacy. Properties like this simply don’t come along often. Schedule your tour TODAY!

4420 NE 7TH AVENUE

Message successfully sent.

What would you like to know?

What is 3 + 4 ?

Related Properties

New on site 3 days ago
Welcome to Hilltop Estate  where you can live the Premiere Equestrian Lifestyle complete with 10.23 incredible acres located in the equine community of Pinnacle Park featuring a stunning 8160 Sq. Ft. home with 6 bedrooms and 4 1/2 baths and a large spacious 4 car garage!  The home and grounds have been meticulously maintained offering privacy and serenity just minutes from HITS and WEC!   There are so many custom features in this home including soaring 12 foot ceilings,  stunning wood beams, crown molding, granite, 5,000 sq. ft. of imported tiles, 3-5 ton AC units and all wrapped in hardboard siding. Elegantly updated a grand foyer leads to the open floor plan featuring a spacious Livingroom w/ gas fireplace and plenty of natural lighting, gourmet kitchen, stainless steel appliance and large pantry make it perfect for entertaining or daily use, private office with bay window allows you to enjoy the view, master bedroom and spacious sitting area with your own private wet bar!  Updated Ensuite bath for a real spa retreat at the end of a day.  Enjoy your screed solar heated pool and spa along with a rock waterfall feature.  New roof, water heater landscape lighting, whole house surge protection and a whole house generator,  security system, and Star Link Wi-Fi!  Designed for the modern family combining luxury living with functional design.  This farm has beautiful rolling hills, wood fencing,  and 5 paddocks with access to the riding trails throughout the community.  If you are seeking a slice of Ocala paradise this one checks all the boxes.  Contact us for a showing today!
#OM713776

OCALA

12770 N US HIGHWAY 27

6 Beds

4 Baths

12,578 Sq.Ft.

$1,850,000

MLS#: OM713776

New on site 3 days ago
Discover the ideal equestrian property just 5 minutes to HITS and 15 Minutes to WEC.  The 15-acre farm is fully fenced and cross-fenced with attractive board fencing, offering excellent function and layout for horses and livestock.  Gorgeous live oaks provide shade and beauty throughout the property, including a tree-lined driveway with a gated entrance.
The land features 5 well-appointed pastures, each equipped with automatic waterers, plus established grass pastures. 
Equine facilities include:  Solid concrete barn with 4 stalls and room to expand.
                                     Shed-row barn with 2 stalls
                                     Multiple fenced areas for turnout and rotation
The 3 bedroom , 2 bath home offers comfortable living with wood floors, granite countertops and a large glassed-in Florida room overlooking the farm - perfect for enjoying peaceful views year-round.
This property combines a prime location with practical amenities for training, boarding, or private us.Ready for its next owner to enjoy and make their own.
#OM714140

OCALA

12260 NW 100TH STREET

3 Beds

2 Baths

2,137 Sq.Ft.

$1,299,000

MLS#: OM714140

Discover an exceptional opportunity with this 12.94-acre farm, ideally located less than 10 minutes from both the World Equestrian Center and HITS! Fully fenced and thoughtfully laid out for equestrian use, the property features seven paddocks and a round pen, along with a center-aisle 6-stall barn with space for an office, feed/tack room, and washracks with hot water. The main home features high ceilings, 3 bedrooms, 2 full bathrooms, tile and carpet flooring, a Florida room, and a two-car garage, providing a solid foundation to personalize and make your own. The property also includes two additional dwellings, presenting further possibilities and ready for updating. With its prime location, this farm is ready for you to transform it into your ideal property.
#OM713550

OCALA

4698 NW 110TH AVENUE

3 Beds

2 Baths

2,813 Sq.Ft.

$1,625,000

MLS#: OM713550

Ocala sportsman’s paradise, seven-plus acres, seven-bay garage and room to roam. Do you own your business? Need space for a home office, trophy room, game room or just room to breathe? Welcome to your ultimate Florida spread, a fully gated, nearly 7.5-acre estate in the heart of Ocala horse country, where luxury meets utility and every inch is built to impress. This is more than a home, it’s a lifestyle base camp. With over 4,000 square feet of upgraded living space, this three-bedroom, three-bath estate is packed with features that work as hard as you do. Whether you're running a business, collecting cars or just want a place to unwind, this property delivers. The workshop and garage setup you’ve been dreaming of includes seven-bay detached garage with a walk-in cooler, 1/2 bath and dedicated storage, ideal for tools, toys, boats or a serious home-based business. Massive detached workshop for projects, fabrication or gear storage. Two-car metal carport for overflow or guest parking. Electric run throughout the perimeter, ideal for holiday lighting, security or future expansion. Inside the home where comfort meets capability, including a chef’s kitchen with stainless appliances, center island, double sink, trash compactor and built-in desk. Stone wood-burning fireplace in the living room, with sliders to the Florida room. Primary suite with walk-in closet, private bonus room, and spa-style bath with dual vanities and glass-block walk-in shower. Fully furnished game room with pool table, bar stools and lounge seating, ready for poker night or game day. Dedicated office, two bonus rooms, and a Florida room for relaxing or entertaining. Upgrades that matter include new metal roof (2023), Anderson Windows (2019) for energy efficiency and sound control, new water tank (2025) and water heater (2023), four air-conditioning units for zoned comfort, water softener, new blinds and drapery included. The property is private, gated and gorgeous, with 7.34 acres of high-and-dry, usable land, fully fenced with a stunning electric gate at the entry. Gazebo and lanai for morning coffee or evening cocktails. Fenced dog run to keep your pets safe and happy. This is one of Ocala’s rarest finds, acreage, square footage and outbuildings that actually match the scale of the land. Whether you're a sportsman, entrepreneur or just want to live large with no compromises, this estate checks every box. Schedule your private showing today and see what it feels like to own a piece of Florida that works as hard as you do.
#OM713464

OCALA

255 SW 96TH LANE

3 Beds

3 Baths

4,200 Sq.Ft.

$1,350,000

MLS#: OM713464

Situated amongst large beautiful horse farms in Marion County’s vibrant Horse Country just 4 miles from the World Equestrian Center (WEC), this 12.71-acre farm is a real gem. Beyond a gated entry and down a paved driveway, the property offers a lovely center aisle barn, a total of 5 paddocks with board fencing and nice, flat areas. The 9-stall concrete block center-aisle barn includes wash stalls/grooming stalls, an equipment and work area, as well as a new tack room / riders lounge with a full bath and laundry area. Near the main home, a newly constructed 2-stall concrete block barn includes its own wash area and tack/feed room. A 30-amp RV hookup with septic connection adds further convenience for guests or seasonal rental income. Towards the back of the property is a thoughtfully updated 3-bedroom, 2-bath home built in 1985. Spanning just under 3,000 sqft, the home features a split-bedroom floor plan, tall ceilings, and engineered hardwood flooring and tile in the kitchen and baths. The spacious great room features a lovely brick accent wall with fireplace, large windows, cathedral ceilings, and an inviting formal dining area. Directly open to the great room, the kitchen is well equipped for those who enjoy cooking with stainless steel appliances, extensive cabinet storage, quartz countertops, and a large center island with breakfast bar. An additional breakfast nook with built-in shelving and window seat also provides stunning views of the surrounding farm and pool, perfect for a quiet morning coffee or less formal meals. Each bedroom is oversized and inviting, though the primary suite is the true stand-out with an extra large layout, walk-in closet, and private en-suite bathroom with an overflow tub and dual vanities. Additional features of note include a dedicated office for those who work from home and a spacious garage. At the back of the home is a large screen-enclosed pool deck with recently resurfaced in-ground pool and spa, a covered area for seating, and an adjacent open-air covered deck. An additional climate-controlled flex building with covered carport is also established on the property, ready to serve as a gym, workshop, studio, or office as desired. With its seamless blend of updated residential space and professional-grade equestrian infrastructure, combined with the abundant beautiful live oaks, this turnkey property offers a rare opportunity to train, ride, and live in comfort!
#OM711661

OCALA

11851 SW 38TH STREET

3 Beds

2 Baths

4,214 Sq.Ft.

$1,695,000

MLS#: OM711661

This beautiful 6+ acre farm is located just minutes to WEC, in the gated community of Saddelbrook Equestrian Park. The community provides the perfect place to live your equestrian dream including a beautiful bridle path around the community for endless riding opportunities. This
beautifully updated farm welcomes you with its grand gated entrance and circular driveway. The delightful home was just completely renovated and updated with all new finishes, large format tile throughout the home, new wall of cabinets in the kitchen, walk in pantry and a 14 foot island that can seat 8 with double sided cabinets for tons of storage. Quartz countertops in the kitchen, baths and laundry. New appliances with 48” built in refrigerator, beverage and wine cooler, and induction stove top. Master bath is a true spa experience with a 3 person sauna and large walk in shower with room for 2 shower heads and floor to ceiling shower glass walls. Master bedroom has 2 large walk in closets and all 4 bedroom closets have new built in shelving and storage. New washer and dryer in the laundry room with full built in utility cabinets. Plantation shutters and solid wood 3 panel doors throughout. You will fall in love with the light and bright, open floorplan. The home also has a separate office/den space and lovely screened patio overlooking the farm landscape. Your horses will also enjoy all of the comforts of the 7 stall center-aisle barn features auto water in each stall, fly spray system, tack and feed rooms, and also provides a covered area for equipment storage. The farm also features a second 2 stall barn complete with a nice tack room and oversized stalls. The acreage is fenced and currently has 4 large paddocks with plenty of room to add an arena if desired. Don’t miss this one of a kind property and experience the Florida horse lifestyle!
#OM713514

OCALA

6208 NW 12TH STREET

4 Beds

3 Baths

3,248 Sq.Ft.

$1,650,000

MLS#: OM713514

Not one but two houses in the peaceful, gated community of Summit II. This elegant estate overlooks just over 7 acres of Central Florida bliss! The home is an immediate eye-catcher with multiple entrances, mature landscaping, a circular driveway, an attached 3-car side entry garage, and a park-like setting. Fully customized, the main home offers a total of 3-bedrooms and 4-baths with nearly 6,000 sq.ft. of space. The interiors showcase abundant natural light, soaring cathedral ceilings, and stunning views of the outdoors throughout the home thanks to huge picture windows that allow the greenery outside of the home to become a feature inside. The formal living area is nicely open, with huge windows and french doors that open to the outdoors and a large brick-facade fireplace. Filled with decorative accents, the kitchen is well-appointed and includes a large breakfast bar, adjacent breakfast area with a view to the pool area, and additional pantry. There are many memorable features and spaces throughout including a large professional office, formal dining area, a rock-garden, a huge entertainment space with built-in wet bar and pool table, and built-in sound system. All bedrooms are well appointed, but the master suite is particularly notable with an extra-large layout, a floor-to-ceiling fireplace, private garden tub, huge walk-in closet, and private en-suite with dual sinks, ample counter space, built-in vanity, and walk-in shower. To the back of the home is a true Florida oasis that features a sparkling in-ground saltwater pool and spa, an expansive concrete pool deck, multiple brick patios with ample space for entertaining, and a large covered area with built-in grill. A full 2-bedroom, 2 and a 1/2-bath guest home with garage is also on property, complete with a full kitchen, large living area with fireplace, indoor laundry room, an additional room used as an office and a private 2-car garage. The second home has it’s own gated entrance and address. The entire property is fenced with board and no climb wire and overlooks a pond.
#OM713120

OCALA

5951 SW 21ST AVENUE ROAD

3 Beds

3 Baths

6,545 Sq.Ft.

$1,400,000

MLS#: OM713120

Nestled in the gated community of Polo Lane in Ocala, this remarkable 5+ acre estate offers a truly unique living experience. Upon entering, you cross a tranquil pond that sets the stage for the elegance that awaits. A striking brick fountain graces the front of the three-story home, while a porte-cochère at the rear provides access to an inviting in-ground pool framed by a beautiful brick patio. The covered back porch leads down to the pool area, perfect for outdoor entertaining, while the front balcony offers sweeping views of the pond and expansive property. Inside, soaring ceilings, crown molding, exposed wooden beams, and a brick fireplace create a warm yet grand atmosphere. The formal dining room features a wall of tall windows and French doors overlooking the backyard and pool. The home offers five en-suite bedrooms and six full bathrooms, with an additional flexible living area that can serve as a sixth bedroom, home office, or creative studio. The chef’s kitchen impresses with solid wood cabinetry, stone countertops, top-of-the-line appliances, and a wine fridge, while gorgeous wood and porcelain tile flooring flow seamlessly with carpet in select areas. Stunning wooden doors throughout enhance the home’s character, and the garage/workshop provides additional space for storage or projects. Combining elegance, functionality, and distinctive architectural charm, this estate is a rare gem offering the perfect blend of luxury and comfort.
#OM712860

OCALA

950 SW 43RD PLACE

5 Beds

6 Baths

9,978 Sq.Ft.

$1,595,000

MLS#: OM712860

Welcome to your private equestrian retreat, just 15 minutes from the World Equestrian Center, where you can enjoy easy access to world-class horse shows, shopping, and dining! This 15-acre property is fully fenced and includes five paddocks, an Olympic-sized riding ring with clay footing and a reliable drainage system. The center-aisle, 8-stall barn features a feed room, tack room, and wash racks, providing everything you need for convenient and well-equipped equestrian living. The 3-bedroom, 2-bathroom home offers a warm and inviting atmosphere with high ceilings, tile flooring, and carpeted bedrooms for added comfort. The open floor plan creates an easy flow throughout the living spaces, perfect for entertaining or relaxing after a day at the barn. Enjoy your mornings on the spacious, fully screened front porch, which includes an electric screen door at the end for convenient golf cart or Gator parking. From the living room, sliding glass doors open to a screened-in back patio overlooking a sparkling saltwater pool, offering a peaceful spot to unwind and take in the views. Additional outbuildings, each equipped with electric and water, provide endless opportunities for storage, workshops, or future expansion. Enjoy the best of country living and convenience, only minutes away from the World Equestrian Center.
#OM713059

OCALA

12932 SW 41ST PLACE

3 Beds

2 Baths

3,397 Sq.Ft.

$1,595,000

MLS#: OM713059

 - property

Send a message

Message successfully sent.

Your message

What is 3 + 4 ?

Reason for contacting?

Sign Out

Virtual Assistant

Would you like to take the next step with this property? We can help you schedule a showing or virtual tour, or send you more details.

Yes, I would like more information.

Thank You for Your Reply, One of Our Agents will contact you as soon as possible

No, maybe later.

Thank you, you can always contact me via email, phone number or through the contact form.

Realhub AI

Lucy - Your AI-Powered Realtor

Update Your Temporary Password

Personalize your search

Enter your email and we'll notify you immediately when new listings match what you're looking for.

or enter email address

Already have an account ? Login here

Continue your home search

Already have an account ? Login here