Property
Beds
3
Full Baths
2
1/2 Baths
1
Year Built
2025
Sq.Footage
1,464
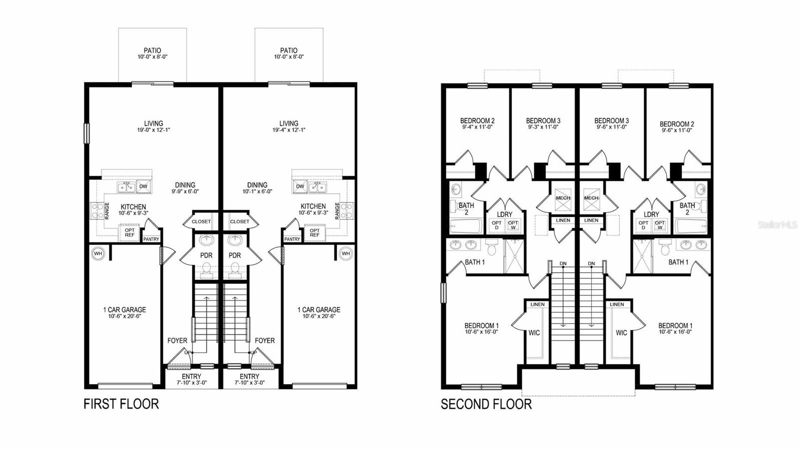
One or more photo(s) has been virtually staged. Under Construction. This two-story townhome has an open concept downstairs layout that includes a large open kitchen, a powder room, and spacious family room that overlooks a patio. The second floor includes a spacious Primary Suite with an ensuite bathroom, two additional bedrooms, a 2nd full bathroom, and a laundry area. This home comes with all appliances including a refrigerator, built-in dishwasher, electric range, microwave, washer, and dryer. Pictures, photographs, colors, features, and sizes are for illustration purposes only and will vary from the homes as built. Home and community information including pricing, included features, terms, availability and amenities are subject to change and prior sale at any time without notice or obligation. CRC057592.
Features & Amenities
Interior
-
Other Interior Features
Open Floorplan
-
Total Bedrooms
3
-
Bathrooms
2
-
1/2 Bathrooms
1
-
Cooling YN
YES
-
Cooling
Central Air
-
Fireplace YN
NO
-
Heating YN
YES
-
Heating
Electric, Heat Pump
-
Pet friendly
Yes
Exterior
-
Garage
Yes
-
Garage spaces
1
-
Construction Materials
Block
-
Parking
Attached
-
Pool
No
-
Waterfront YN
NO
Area & Lot
-
Lot Size(acres)
0.04
-
Property Type
Residential
-
Property Sub Type
Townhouse
Price
-
Sales Price
$227,990
-
Sq. Footage
1, 464
-
Price/SqFt
$155
HOA
-
Association
YES
-
Association Fee
$223
-
Association Fee Frequency
Monthly
-
Association Fee Includes
N/A
School District
-
Elementary School
Wildwood Elementary
-
Middle School
Wildwood Middle
-
High School
Wildwood High
Property Features
-
Foundation Details
Slab
-
Ownership
Fee Simple
-
Senior Community YN
NO
-
Sewer
Public Sewer
-
Tax Lot
155
-
Water Source
Public
Schedule a Showing
Showing scheduled successfully.
Mortgage calculator
Estimate your monthly mortgage payment, including the principal and interest, property taxes, and HOA. Adjust the values to generate a more accurate rate.
Your payment
Principal and Interest:
$
Property taxes:
$
HOA fees:
$
Total loan payment:
$
Total interest amount:
$
Location
County
Sumter
Elementary School
Wildwood Elementary
Middle School
Wildwood Middle
High School
Wildwood High
Listing Courtesy of Anne Peterson Eger , DR HORTON REALTY OF WEST CENTRAL FLORIDA
RealHub Information is provided exclusively for consumers' personal, non-commercial use, and it may not be used for any purpose other than to identify prospective properties consumers may be interested in purchasing. All information deemed reliable but not guaranteed and should be independently verified. All properties are subject to prior sale, change or withdrawal. RealHub website owner shall not be responsible for any typographical errors, misinformation, misprints and shall be held totally harmless.

FOUNDER
DanielleUrtnowski
Call Danielle today to schedule a private showing.

* Listings on this website come from the FMLS IDX Compilation and may be held by brokerage firms other than the owner of this website. The listing brokerage is identified in any listing details. Information is deemed reliable but is not guaranteed. If you believe any FMLS listing contains material that infringes your copyrighted work please click here to review our DMCA policy and learn how to submit a takedown request.© 2024 FMLS.
