Property
Beds
3
Full Baths
3
1/2 Baths
1
Year Built
2017
Sq.Footage
2,699
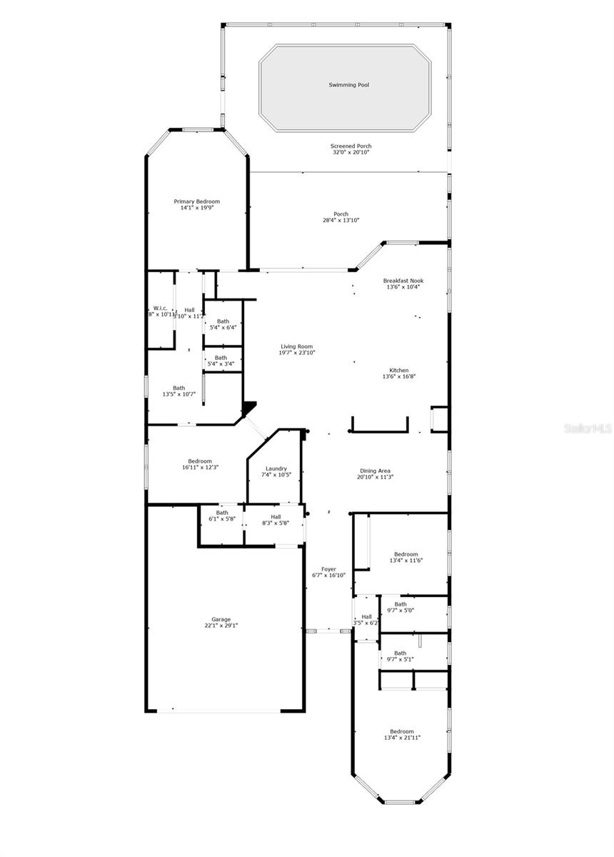
One or more photo(s) has been virtually staged. Sellers are motivated, bring your offers! This spacious, 3+ bedroom 3.5 bath home is located in the first-class resort community of Terra Vista. This amazing residence provides luxury living space surrounded by nearly endless opportunities for recreation and relaxation! Upon entering the house through the grand entryway, the high ceilings and open floor plan give a feeling of grandeur as you make your way back to the main living area. Combined with the kitchen, this space is ideal for entertaining your guests. The kitchen features stone countertops, double oven, induction cooktop, and a Culligan RO filter at the sink. A 3 part sliding door opens to the covered Lanai where you have an open view to lush greenlands. Smartly placed shrubbery enhances privacy while you enjoy your saltwater pool. The pool has had weekly professional service done every week since 2021. The new filter installed July 2024 will provide 5-7 years of operation. The master suite and bath has your walk-in closet, with double sinks and a walk-in shower with grab rails. The master bath also opens to the den/office: This space could easily be a bedroom if needed, and has its own half bath attached. The 2 other bedrooms have their own en-suite full baths. The large laundry room features cabinetry and a sink. House cleaning is made easy and convenient with a built in whole house vacuum system. The garage has epoxy floors and built in cabinetry for clean and tidy storage. Roof was professionally washed in June 2024. A sprinkler management system installed July 2024 ensures appropriate amounts of water are used, saving money and eliminating wasteful usage. Professional A/C service has been paid through 2025. Cement block construction, along with the concrete tile roof provides robust protection against wind damage. Citrus Hills has everything you expect from a premier resort community: 4 golf courses, 3 restaurants, with spa and fitness facilities that cater to every desire! Make sure you reserve time during your showing to tour the community. Citrus Hills is located in the north/central part of Citrus County, FL. Retail and grocery stores are nearby. It is 10 miles to the Gulf Coast at Crystal River, an hour and 15 minutes to Tampa Int'l Airport, and an hour and half to Disney World. Coastal flooding is no concern here: At 50' above sea level and 8 miles inland, Citrus Hills is not located in any mandatory evacuation zone. Treat yourself to a life of unmatched convenience and leisure: Don't wait on this opportunity to live your best Florida Life!
Features & Amenities
Interior
-
Other Interior Features
Crown Molding, Eat-in Kitchen, High Ceilings, Open Floorplan, Tray Ceiling(s), Walk-In Closet(s)
-
Total Bedrooms
3
-
Bathrooms
3
-
1/2 Bathrooms
1
-
Cooling YN
YES
-
Cooling
Central Air
-
Fireplace YN
NO
-
Heating YN
YES
-
Heating
Central, Electric
-
Pet friendly
Cats OK, Dogs OK, Yes
Exterior
-
Garage
Yes
-
Garage spaces
2
-
Construction Materials
Stucco
-
Other Exterior Features
Rain Gutters
-
Parking
Attached
-
Patio and Porch Features
Rear Porch, Screened
-
Pool
Yes
-
Pool Features
Gunite, In Ground, Salt Water, Screen Enclosure, Private
-
Waterfront YN
NO
-
View
Park/Greenbelt, Trees/Woods
Area & Lot
-
Lot Features
Landscaped, Level, Near Golf Course, Private
-
Lot Size(acres)
0.32
-
Property Type
Residential
-
Property Sub Type
Single Family Residence
Price
-
Sales Price
$760,000
-
Tax Amount
8002.33
-
Sq. Footage
2, 699
-
Price/SqFt
$281
HOA
-
Association
YES
-
Association Fee
$772
-
Association Fee Frequency
Quarterly
-
Association Fee Includes
N/A
School District
-
Elementary School
Forest Ridge Elementary School
-
Middle School
Lecanto Middle School
-
High School
Lecanto High School
Property Features
-
Accessibility Features
Accessible Entrance, Grip-Accessible Features
-
Association Amenities
Cable TV, Clubhouse, Fitness Center, Gated, Golf Course, Park, Playground, Pool, Racquetball, Recreation Facilities, Sauna, Security, Spa/Hot Tub, Tennis Court(s)
-
Foundation Details
Slab
-
Ownership
Fee Simple
-
Senior Community YN
NO
-
Sewer
Public Sewer
-
Tax Lot
51
-
Water Source
Public
Schedule a Showing
Showing scheduled successfully.
Mortgage calculator
Estimate your monthly mortgage payment, including the principal and interest, property taxes, and HOA. Adjust the values to generate a more accurate rate.
Your payment
Principal and Interest:
$
Property taxes:
$
HOA fees:
$
Total loan payment:
$
Total interest amount:
$
Location
County
Citrus
Elementary School
Forest Ridge Elementary School
Middle School
Lecanto Middle School
High School
Lecanto High School
Listing Courtesy of Thomas Pengelley , KELLER WILLIAMS CORNERSTONE RE
RealHub Information is provided exclusively for consumers' personal, non-commercial use, and it may not be used for any purpose other than to identify prospective properties consumers may be interested in purchasing. All information deemed reliable but not guaranteed and should be independently verified. All properties are subject to prior sale, change or withdrawal. RealHub website owner shall not be responsible for any typographical errors, misinformation, misprints and shall be held totally harmless.

FOUNDER
DanielleUrtnowski
Call Danielle today to schedule a private showing.

* Listings on this website come from the FMLS IDX Compilation and may be held by brokerage firms other than the owner of this website. The listing brokerage is identified in any listing details. Information is deemed reliable but is not guaranteed. If you believe any FMLS listing contains material that infringes your copyrighted work please click here to review our DMCA policy and learn how to submit a takedown request.© 2024 FMLS.
