Property
Beds
5
Full Baths
4
1/2 Baths
1
Year Built
2016
Sq.Footage
3,221
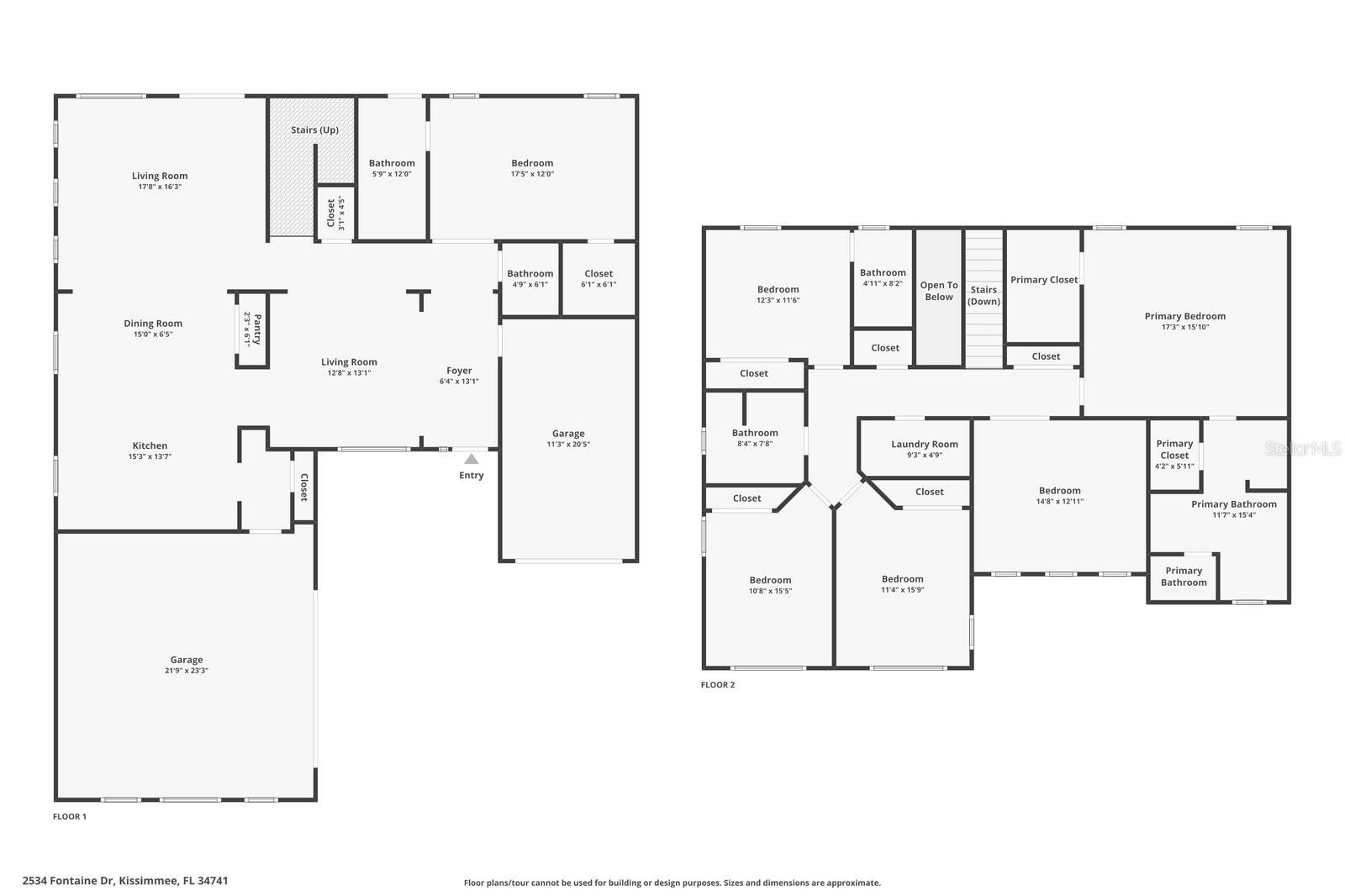
Welcome to this stunning 5-bedroom, 4.5-bath home with a versatile flex space located in the desirable gated community of Tapestry in Kissimmee. This beautifully maintained home features two master suites, one on the first floor and another on the second offering comfort and flexibility for multi-generational living or guest accommodations. The property includes a brand-new washer and dryer, a new stove, and hurricane shutters for added peace of mind. The spacious three-car garage provides ample storage and parking. Enjoy resort-style living with community amenities that include a saltwater pool, clubhouse, fitness center with yoga and spin studios, dog park, playgrounds, walking trails, and grilling pavilions. Conveniently located near The Loop, Old Town Kissimmee, Downtown Celebration, and major theme parks like Disney and Universal, you’ll also find plenty of shopping, dining, and entertainment options just minutes away. This home combines luxury, functionality, and location—schedule your private showing today before it’s gone!
Features & Amenities
Interior
-
Other Interior Features
Eat-in Kitchen, High Ceilings, Open Floorplan, Tray Ceiling(s), Walk-In Closet(s)
-
Total Bedrooms
5
-
Bathrooms
4
-
1/2 Bathrooms
1
-
Cooling YN
YES
-
Cooling
Central Air
-
Fireplace YN
NO
-
Heating YN
YES
-
Heating
Central
-
Pet friendly
Yes
Exterior
-
Garage
Yes
-
Garage spaces
3
-
Construction Materials
Block, Stucco, Frame
-
Parking
Driveway, Attached
-
Patio and Porch Features
Covered, Deck, Patio, Porch, Rear Porch
-
Pool
No
-
Waterfront YN
NO
Area & Lot
-
Lot Features
Near Public Transit, Private
-
Lot Size(acres)
0.16
-
Property Type
Residential
-
Property Sub Type
Single Family Residence
-
Architectural Style
Traditional
Price
-
Sales Price
$750,000
-
Tax Amount
1193.24
-
Sq. Footage
3, 221
-
Price/SqFt
$232
HOA
-
Association
YES
-
Association Fee
$246
-
Association Fee Frequency
Monthly
-
Association Fee Includes
N/A
School District
-
Elementary School
Floral Ridge Elementary
-
Middle School
Kissimmee Middle
-
High School
Osceola High School
Property Features
-
Association Amenities
Fitness Center, Gated, Park, Playground, Recreation Facilities
-
Foundation Details
Slab
-
Ownership
Fee Simple
-
Senior Community YN
NO
-
Sewer
Public Sewer
-
Tax Lot
151
-
Water Source
Public
Schedule a Showing
Showing scheduled successfully.
Mortgage calculator
Estimate your monthly mortgage payment, including the principal and interest, property taxes, and HOA. Adjust the values to generate a more accurate rate.
Your payment
Principal and Interest:
$
Property taxes:
$
HOA fees:
$
Total loan payment:
$
Total interest amount:
$
Location
County
Osceola
Elementary School
Floral Ridge Elementary
Middle School
Kissimmee Middle
High School
Osceola High School
Listing Courtesy of Jasmine Vazquez , LPT REALTY, LLC
RealHub Information is provided exclusively for consumers' personal, non-commercial use, and it may not be used for any purpose other than to identify prospective properties consumers may be interested in purchasing. All information deemed reliable but not guaranteed and should be independently verified. All properties are subject to prior sale, change or withdrawal. RealHub website owner shall not be responsible for any typographical errors, misinformation, misprints and shall be held totally harmless.

FOUNDER
DanielleUrtnowski
Call Danielle today to schedule a private showing.

* Listings on this website come from the FMLS IDX Compilation and may be held by brokerage firms other than the owner of this website. The listing brokerage is identified in any listing details. Information is deemed reliable but is not guaranteed. If you believe any FMLS listing contains material that infringes your copyrighted work please click here to review our DMCA policy and learn how to submit a takedown request.© 2024 FMLS.
