Property
Beds
7
Full Baths
5
1/2 Baths
None
Year Built
2016
Sq.Footage
5,131
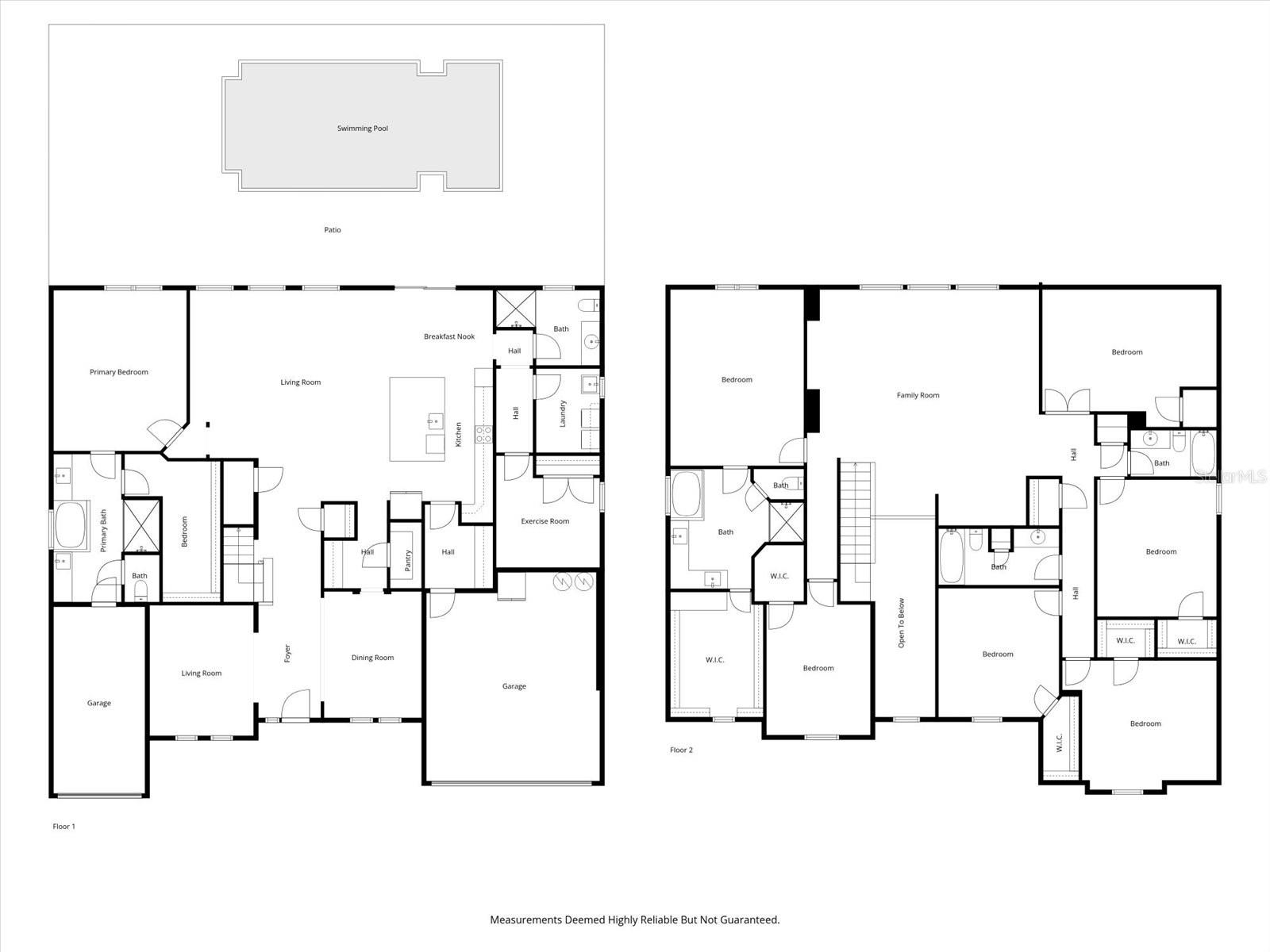
Welcome to 2357 Bellefield Cove, a true showcase of elegance and sophistication nestled in the heart of Oviedo, Florida. Built in 2016 by Meritage Homes, this Del Rio II Elevation D model spans over 5,131 square feet and offers 7 bedrooms plus a studio/entertainment room, 5 bathrooms, and a stunning custom saltwater pool added in 2022. Perfectly situated on a premium corner lot with peaceful conservation views along the front and side, this home combines modern design, superior craftsmanship, and luxurious comfort. The curb appeal immediately captivates — with a freshly repainted exterior (October 2025), stately stone accents, and professionally designed landscaping, this residence exudes timeless sophistication. Step inside through the grand double doors and you’re greeted by a two-story foyer that opens into formal living and dining rooms, both adorned with crown molding, elegant finishes, and an abundance of natural light. Every detail of this home was designed to impress and invite. At the heart of the home lies the gourmet kitchen, complete with a large center island, quartz countertops, stainless-steel appliances, a butler’s pantry with a spacious storage closet, and an adjoining café area overlooking the backyard. The kitchen flows seamlessly into the open-concept family room, creating the perfect space for entertaining, everyday living, or simply enjoying quality time with family. This home features two luxurious primary suites, offering exceptional flexibility for multi-generational living. The downstairs primary suite includes private access to its own one-car garage and a spa-style bath with dual vanities, a soaking tub, and a glass-enclosed shower. Upstairs, the second primary suite provides a private retreat with a generous walk-in closet and a luxurious bath featuring dual sinks, a soaking tub, and a frameless glass shower. The second level also offers five additional bedrooms, multiple full baths, a large game room, and a dedicated media room currently configured as an in-home studio—yet easily repurposed into a media room or home theater to suit your lifestyle. Every space is designed to offer flexibility, comfort, and purpose. Step outside to your custom-designed saltwater pool with Miami Blue quartz finish, the centerpiece of a spacious open-air lanai and patio area, ideal for outdoor entertaining or relaxing beneath the Florida sky. Surrounded by lush greenery and conservation views, this private oasis delivers the perfect blend of tranquility and luxury. Pride of ownership shines through with key updates and enhancements: both air-conditioning pumps were replaced in 2021, a new cooktop was installed in 2022, and both heat-pump evaporator coils were replaced in 2023. The home also comes with a transferable top-tier American Home Shield Home Warranty policy, providing additional peace of mind for its next owner. Combined with Meritage’s renowned energy-efficient construction and smart-home features, this home is the complete package — both beautiful and built to last. Ideally located within minutes of top-rated Seminole County schools, Oviedo on the Park, UCF, and major highways including 417 and 434, this home offers luxury living in one of Central Florida’s most sought-after communities. Elegant, expansive, and designed for those who appreciate both style and substance — 2357 Bellefield Cove is more than a home; it’s a lifestyle.
Features & Amenities
Interior
-
Other Interior Features
Crown Molding, Open Floorplan, Stone Counters, Vaulted Ceiling(s)
-
Total Bedrooms
7
-
Bathrooms
5
-
Cooling YN
YES
-
Cooling
Central Air
-
Fireplace YN
NO
-
Heating YN
YES
-
Heating
Central
-
Pet friendly
Yes
Exterior
-
Garage
Yes
-
Garage spaces
3
-
Construction Materials
Stucco
-
Other Exterior Features
Rain Gutters
-
Parking
Oversized, Attached
-
Patio and Porch Features
Patio
-
Pool
Yes
-
Pool Features
In Ground, Salt Water, Private
-
Waterfront YN
NO
-
View
Pool, Trees/Woods
Area & Lot
-
Lot Features
Corner Lot
-
Lot Size(acres)
0.24
-
Property Type
Residential
-
Property Sub Type
Single Family Residence
-
Architectural Style
Mid-Century Modern
Price
-
Sales Price
$1,200,000
-
Tax Amount
8111.0
-
Sq. Footage
5, 131
-
Price/SqFt
$233
HOA
-
Association
YES
-
Association Fee
$531
-
Association Fee Frequency
Quarterly
-
Association Fee Includes
N/A
School District
-
Elementary School
Carillon Elementary
-
Middle School
Chiles Middle
-
High School
Hagerty High
Property Features
-
Foundation Details
Slab
-
Ownership
Fee Simple
-
Senior Community YN
NO
-
Sewer
Public Sewer
-
Tax Lot
12
-
Water Source
Public
Schedule a Showing
Showing scheduled successfully.
Mortgage calculator
Estimate your monthly mortgage payment, including the principal and interest, property taxes, and HOA. Adjust the values to generate a more accurate rate.
Your payment
Principal and Interest:
$
Property taxes:
$
HOA fees:
$
Total loan payment:
$
Total interest amount:
$
Location
County
Seminole
Elementary School
Carillon Elementary
Middle School
Chiles Middle
High School
Hagerty High
Listing Courtesy of Eric Campbell , LPT REALTY, LLC
RealHub Information is provided exclusively for consumers' personal, non-commercial use, and it may not be used for any purpose other than to identify prospective properties consumers may be interested in purchasing. All information deemed reliable but not guaranteed and should be independently verified. All properties are subject to prior sale, change or withdrawal. RealHub website owner shall not be responsible for any typographical errors, misinformation, misprints and shall be held totally harmless.

FOUNDER
DanielleUrtnowski
Call Danielle today to schedule a private showing.

* Listings on this website come from the FMLS IDX Compilation and may be held by brokerage firms other than the owner of this website. The listing brokerage is identified in any listing details. Information is deemed reliable but is not guaranteed. If you believe any FMLS listing contains material that infringes your copyrighted work please click here to review our DMCA policy and learn how to submit a takedown request.© 2024 FMLS.
