Property
Beds
2
Full Baths
2
1/2 Baths
1
Year Built
1978
Sq.Footage
1,064
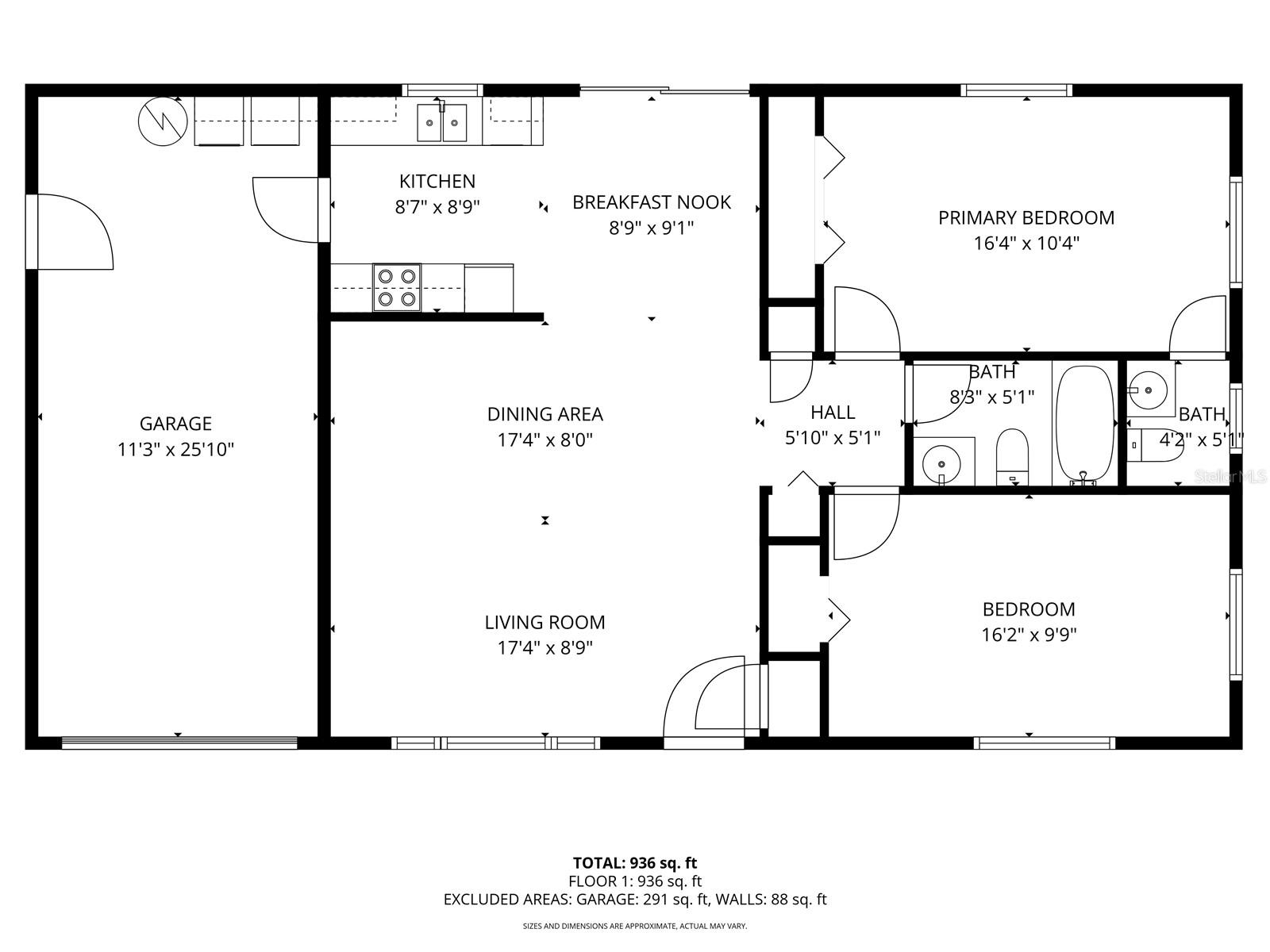
Welcome to 1106 Blueberry Drive, a charming home tucked away in the heart of Port Orange. This 2-bedroom, 1.5-bath concrete block residence with a 1-car garage offers comfort, convenience, and a great location, making it an excellent choice for first-time buyers, downsizers, or anyone seeking a low-maintenance Florida lifestyle. Step inside and you'll find a functional layout with a cozy living area, a bright kitchen, and plenty of natural light throughout. Both bedrooms are generously sized, with the full bath nearby for convenience, plus an additional half bath ensuite. The attached garage provides parking, storage, or hobby space. Outside, the property offers a manageable yard—ideal for those who want the enjoyment of outdoor living without the upkeep of a large lot. Located in a well-established neighborhood with underground electricity, this home is just minutes from shopping, dining, parks, and top-rated schools. You'll also love the quick drive to the beach.
Features & Amenities
Interior
-
Total Bedrooms
2
-
Bathrooms
2
-
1/2 Bathrooms
1
-
Cooling YN
YES
-
Cooling
Central Air
-
Fireplace YN
NO
-
Heating YN
YES
-
Heating
Central
-
Pet friendly
N/A
Exterior
-
Garage
Yes
-
Garage spaces
1
-
Construction Materials
Concrete
-
Parking
Attached
-
Pool
No
-
Waterfront YN
NO
Area & Lot
-
Lot Size(acres)
0.28
-
Property Type
Residential
-
Property Sub Type
Single Family Residence
Price
-
Sales Price
$268,000
-
Tax Amount
1789.0
-
Sq. Footage
1, 064
-
Price/SqFt
$251
HOA
-
Association
NO
School District
-
Elementary School
N/A
-
Middle School
N/A
-
High School
N/A
Property Features
-
Foundation Details
Slab
-
Ownership
Fee Simple
-
Senior Community YN
NO
-
Sewer
Public Sewer
-
Tax Lot
99
-
Water Source
Public
Schedule a Showing
Showing scheduled successfully.
Mortgage calculator
Estimate your monthly mortgage payment, including the principal and interest, property taxes, and HOA. Adjust the values to generate a more accurate rate.
Your payment
Principal and Interest:
$
Property taxes:
$
HOA fees:
$
Total loan payment:
$
Total interest amount:
$
Location
County
Volusia
Elementary School
Middle School
High School
Listing Courtesy of Michelle Cecchini , SHELL REALTY
RealHub Information is provided exclusively for consumers' personal, non-commercial use, and it may not be used for any purpose other than to identify prospective properties consumers may be interested in purchasing. All information deemed reliable but not guaranteed and should be independently verified. All properties are subject to prior sale, change or withdrawal. RealHub website owner shall not be responsible for any typographical errors, misinformation, misprints and shall be held totally harmless.

FOUNDER
DanielleUrtnowski
Call Danielle today to schedule a private showing.

* Listings on this website come from the FMLS IDX Compilation and may be held by brokerage firms other than the owner of this website. The listing brokerage is identified in any listing details. Information is deemed reliable but is not guaranteed. If you believe any FMLS listing contains material that infringes your copyrighted work please click here to review our DMCA policy and learn how to submit a takedown request.© 2024 FMLS.
