Property
Beds
3
Full Baths
2
1/2 Baths
None
Year Built
1958
Sq.Footage
1,361
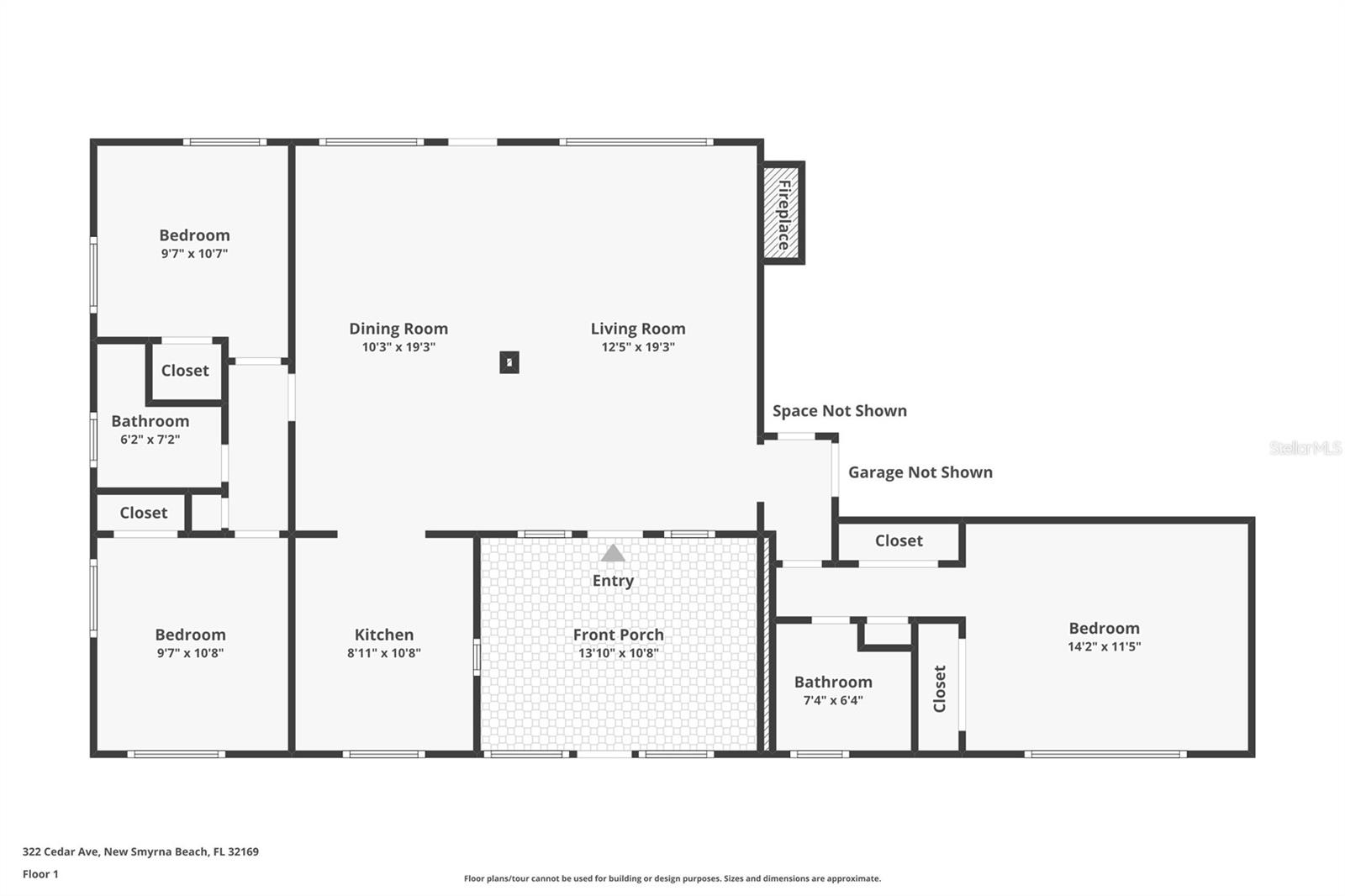
Beachside mid-century retreat with SALTWATER POOL just 3 short BLOCKS from FLAGLER Avenue! *** NO FLOODING - flood insurance is NOT required for this property! *** Step into timeless style and coastal comfort with this beautifully designed 3-bedroom, 2-bath MID-CENTURY inspired home, just steps from the sands of New Smyrna Beach. Situated on an oversized CORNER lot (.21 of an acre) with a FENCED backyard, this beachside retreat blends modern updates with classic charm, offering the perfect balance of relaxation and convenience. Inside, the open concept living space is filled with natural light, PLANTATION SHUTTERS, restored TERRAZZO floors, custom doors with glass knobs, a stunning accent wall in the dining area, and a wood burning fireplace with storage for the firewood. The primary suite is located on the opposite side of the home away from the spare bedrooms, and features two closets with sliding doors, a linen closet for added storage, and a vintage styled bath. The two additional bedrooms include spacious closets and multiple windows, drawing in the outdoors. The kitchen overlooks the front yard and patio, and is enhanced with QUARTZ counters, a refrigerator (2021), oven, cooktop, and BOSCH dishwasher (2021). Enjoy panoramic views of your private oasis from the main living area of the home. A sparkling saltwater HEATED POOL (added in 2023) with TRAVERTINE decking is surrounded by tropical landscape, outdoor lighting, and generous lounge areas—perfect for entertaining or soaking up the Florida sunshine. The area is also enhanced with top-of-the-line TRUE appliances, including an ice machine, kegerator, and mini-fridge. When you arrive home from the beach, enjoy showering off in your very own OUTDOOR SHOWER, then head to the pool for a dip! A screened-in front porch welcomes you as you enter the home, giving you endless opportunities to entertain on either side of the house. The oversized garage (~21 X 22 + storage closets) provides ample space for a vehicle, golf cart and beach gear, and includes storage closets, making everyday living easy and functional. The laundry room (~9 X 11) is adjacent to the garage and includes additional closet space. If you’re looking to EXPAND the living area, the garage would be the perfect place to renovate given the size of the yard and various places to park. UPDATES: backyard oasis with pool and True appliances (2023), AC (2020), small flat roof (2024), shingle roof (2017), electrical (2017), custom doors, irrigation, landscape lighting in the front and back yard, outdoor shower decking. Additional features: whole house HURRICANE SHUTTERS, concrete BLOCK home, brick accent wall. With its prime location, you’ll enjoy easy access to New Smyrna’s vibrant shopping, dining, and entertainment scene, all just minutes away (Flagler Avenue: ~ 3-minute walk * BEACH: ~ 8-minute walk * The Garlic/Norwoods: ~ 12-minute walk). Cruise on your GOLF CART or stroll the streets, NSB is the place to be! Nearby, you can enjoy climbing the Ponce Inlet Lighthouse, playing at the dog beach, strolling the non-driving section of the beach, or exploring the Canaveral National Seashore. Whether you’re seeking a full-time residence, vacation getaway, or investment property, this home offers the best of Florida living in a coveted beachside setting. Schedule a showing today and make this MID-CENTURY retreat your own!
Features & Amenities
Interior
-
Other Interior Features
Open Floorplan, Stone Counters
-
Total Bedrooms
3
-
Bathrooms
2
-
Cooling YN
YES
-
Cooling
Central Air
-
Fireplace YN
YES
-
Heating YN
YES
-
Heating
Central, Electric
-
Pet friendly
N/A
Exterior
-
Garage
Yes
-
Garage spaces
1
-
Construction Materials
Block
-
Other Exterior Features
Outdoor Shower, Rain Gutters
-
Parking
Attached
-
Patio and Porch Features
Covered, Enclosed, Front Porch, Screened
-
Pool
Yes
-
Pool Features
Heated, In Ground, Salt Water, Private
-
Waterfront YN
NO
Area & Lot
-
Lot Features
Corner Lot, Landscaped, Paved
-
Lot Size(acres)
0.21
-
Property Type
Residential
-
Property Sub Type
Single Family Residence
Price
-
Sales Price
$1,195,000
-
Tax Amount
10690.77
-
Sq. Footage
1, 361
-
Price/SqFt
$878
HOA
-
Association
NO
School District
-
Elementary School
N/A
-
Middle School
N/A
-
High School
N/A
Property Features
-
Stories
1
-
Foundation Details
Slab
-
Ownership
Fee Simple
-
Senior Community YN
NO
-
Sewer
Public Sewer
-
Tax Lot
24
-
Water Source
Public
Schedule a Showing
Showing scheduled successfully.
Mortgage calculator
Estimate your monthly mortgage payment, including the principal and interest, property taxes, and HOA. Adjust the values to generate a more accurate rate.
Your payment
Principal and Interest:
$
Property taxes:
$
HOA fees:
$
Total loan payment:
$
Total interest amount:
$
Location
County
Volusia
Elementary School
Middle School
High School
Listing Courtesy of Ashley Boyd , BHHS FLORIDA REALTY
RealHub Information is provided exclusively for consumers' personal, non-commercial use, and it may not be used for any purpose other than to identify prospective properties consumers may be interested in purchasing. All information deemed reliable but not guaranteed and should be independently verified. All properties are subject to prior sale, change or withdrawal. RealHub website owner shall not be responsible for any typographical errors, misinformation, misprints and shall be held totally harmless.

FOUNDER
DanielleUrtnowski
Call Danielle today to schedule a private showing.

* Listings on this website come from the FMLS IDX Compilation and may be held by brokerage firms other than the owner of this website. The listing brokerage is identified in any listing details. Information is deemed reliable but is not guaranteed. If you believe any FMLS listing contains material that infringes your copyrighted work please click here to review our DMCA policy and learn how to submit a takedown request.© 2024 FMLS.
