Property
Beds
3
Full Baths
2
1/2 Baths
None
Year Built
2004
Sq.Footage
2,648
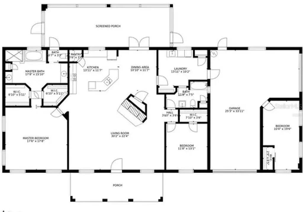
Love Country Living? Well, call to preview this fabulous 5+- acre mini-ranch fenced with a custom 3 bed 2 bath CBS home with over 2500 sq ft living area, split floor plan, great room with cathedral ceilings and fireplace, very nice kitchen with Corian counter and wood cabinets, spacious laundry room, 2 car garage with large office/studio and a large screened porch. Plus detached 2 car workshop, RV carport, and a couple of additional covered storage units. Bring your horse too! The property offers a small stall barn and tack room. All of this plus so much more. Conveniently located to Lake Wales shopping, area schools and recreation. Don't delay, call today for an appointment to see this property.
Features & Amenities
Interior
-
Other Interior Features
High Ceilings
-
Total Bedrooms
3
-
Bathrooms
2
-
Cooling YN
YES
-
Cooling
Central Air
-
Fireplace YN
YES
-
Heating YN
YES
-
Heating
Central, Electric
-
Pet friendly
Yes
Exterior
-
Garage
Yes
-
Garage spaces
4
-
Construction Materials
Block, Stucco
-
Other Exterior Features
Other, Storage
-
Parking
Covered, Driveway, Open, Other, Oversized, Parking Pad, RV Carport, RV Access/Parking, Attached
-
Patio and Porch Features
Covered, Front Porch, Porch, Rear Porch, Screened
-
Pool
No
-
Waterfront YN
NO
Area & Lot
-
Lot Size(acres)
4.78
-
Property Type
Residential
-
Property Sub Type
Single Family Residence
Price
-
Sales Price
$659,000
-
Tax Amount
5902.0
-
Sq. Footage
2, 648
-
Price/SqFt
$248
HOA
-
Association
NO
School District
-
Elementary School
N/A
-
Middle School
N/A
-
High School
N/A
Property Features
-
Foundation Details
Slab
-
Ownership
Fee Simple
-
Senior Community YN
NO
-
Sewer
Septic Tank
-
Tax Lot
14
-
Water Source
Private, Well
Schedule a Showing
Showing scheduled successfully.
Mortgage calculator
Estimate your monthly mortgage payment, including the principal and interest, property taxes, and HOA. Adjust the values to generate a more accurate rate.
Your payment
Principal and Interest:
$
Property taxes:
$
HOA fees:
$
Total loan payment:
$
Total interest amount:
$
Location
County
Polk
Elementary School
Middle School
High School
Listing Courtesy of Chevon Eaton , CHEVON EATON
RealHub Information is provided exclusively for consumers' personal, non-commercial use, and it may not be used for any purpose other than to identify prospective properties consumers may be interested in purchasing. All information deemed reliable but not guaranteed and should be independently verified. All properties are subject to prior sale, change or withdrawal. RealHub website owner shall not be responsible for any typographical errors, misinformation, misprints and shall be held totally harmless.

FOUNDER
DanielleUrtnowski
Call Danielle today to schedule a private showing.

* Listings on this website come from the FMLS IDX Compilation and may be held by brokerage firms other than the owner of this website. The listing brokerage is identified in any listing details. Information is deemed reliable but is not guaranteed. If you believe any FMLS listing contains material that infringes your copyrighted work please click here to review our DMCA policy and learn how to submit a takedown request.© 2024 FMLS.
