Property
Beds
4
Full Baths
2
1/2 Baths
1
Year Built
2025
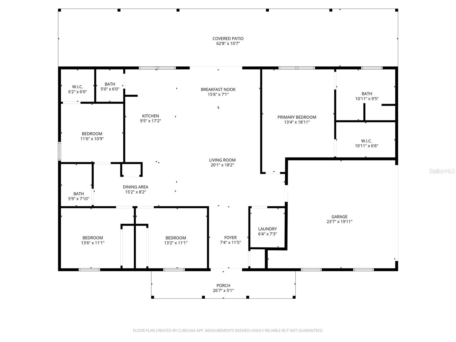
Sq.Footage
1,922
AMAZING FULLY FURNISHED FARM HOME OVER 1+ ACRES LOT NEXT TO A DRY POND, WITH 4 BEDROOMS, 2.5 BATHS, PAVERS FLOORING ON EXTERIOR OPEN CORRIDORS: FRONT & REAR. CEDAR WOOD COLUMNS, PATIO WITH COVERED GAZEBO AND FULLY EQUIPPED SUMMER-KITCHEN, PLUS A FIRE-PIT. LONG DRIVEWAY THAT MAY ASSIGN UP TO 9 SPACES. NEXT DOOR LOT IS A DRY POND WITH A GREAT VIEW AND OFFERS ADDITIONAL PRIVACY FOREVER. COMPLETE FURNISHED AIRBNB PACKAGE IS ALSO INCLUDED. SHOWINGS ARE BY APPOINTMENT ONLY, LISTING AGENT OR HIS DESIGNATED LOCAL NEARBY ASSISTANT WILL OPEN. CLOSING DATE SHALL START AFTER NEW YEAR'S HOLYDAYS, FROM JANUARY 15, 2026 AND ON.
Features & Amenities
Interior
-
Other Interior Features
Eat-in Kitchen, High Ceilings, Open Floorplan, Stone Counters, Walk-In Closet(s)
-
Total Bedrooms
4
-
Bathrooms
2
-
1/2 Bathrooms
1
-
Cooling YN
YES
-
Cooling
Central Air
-
Fireplace YN
NO
-
Heating YN
YES
-
Heating
Central, Electric, Heat Pump
-
Pet friendly
No
Exterior
-
Garage
Yes
-
Garage spaces
2
-
Construction Materials
Block
-
Other Exterior Features
Balcony, Outdoor Grill, Outdoor Kitchen
-
Parking
Driveway, Garage Door Opener, Garage Faces Side, Attached
-
Pool
No
-
Waterfront YN
NO
Area & Lot
-
Lot Size(acres)
1.16
-
Property Type
Residential
-
Property Sub Type
Single Family Residence
Price
-
Sales Price
$575,000
-
Tax Amount
465.0
-
Sq. Footage
1, 922
-
Price/SqFt
$299
HOA
-
Association
NO
School District
-
Elementary School
N/A
-
Middle School
N/A
-
High School
N/A
Property Features
-
Stories
1
-
Foundation Details
Slab
-
Ownership
Fee Simple
-
Senior Community YN
NO
-
Sewer
Septic Tank
-
Tax Lot
10
-
Water Source
Private, Well
Schedule a Showing
Showing scheduled successfully.
Mortgage calculator
Estimate your monthly mortgage payment, including the principal and interest, property taxes, and HOA. Adjust the values to generate a more accurate rate.
Your payment
Principal and Interest:
$
Property taxes:
$
HOA fees:
$
Total loan payment:
$
Total interest amount:
$
Location
County
Marion
Elementary School
Middle School
High School
Listing Courtesy of Ramon Rosquete , WINDERMERE REALTY GROUP
RealHub Information is provided exclusively for consumers' personal, non-commercial use, and it may not be used for any purpose other than to identify prospective properties consumers may be interested in purchasing. All information deemed reliable but not guaranteed and should be independently verified. All properties are subject to prior sale, change or withdrawal. RealHub website owner shall not be responsible for any typographical errors, misinformation, misprints and shall be held totally harmless.

FOUNDER
DanielleUrtnowski
Call Danielle today to schedule a private showing.

* Listings on this website come from the FMLS IDX Compilation and may be held by brokerage firms other than the owner of this website. The listing brokerage is identified in any listing details. Information is deemed reliable but is not guaranteed. If you believe any FMLS listing contains material that infringes your copyrighted work please click here to review our DMCA policy and learn how to submit a takedown request.© 2024 FMLS.
