Property
Beds
3
Full Baths
2
1/2 Baths
None
Year Built
1977
Sq.Footage
1,813
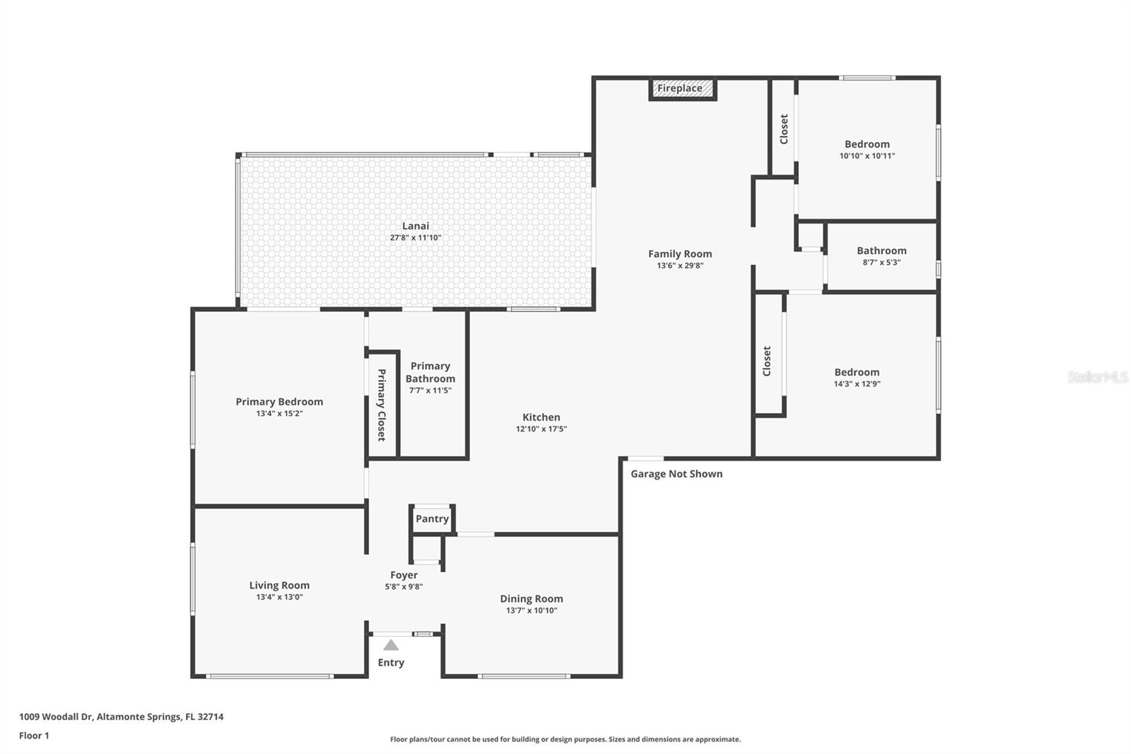
Welcome to 1009 Woodall Dr, Altamonte Springs, A Well-Maintained One-Owner Home! Located in the heart of Altamonte Springs and zoned for top-rated Seminole County schools, this beautifully cared-for home is ready for its next chapter! Major Update Just Completed: BRAND NEW ROOF Just installed August 2025! Step into a lushly landscaped oasis, with vibrant greenery and colorful blooms surrounding both the front and back yards. The pool is large and great for soaking up the Florida Sun! The fenced backyard provides plenty of space for pets, play, or gardening. Whether you're hosting a pool party or enjoying a quiet morning coffee, the oversized screened lanai is the perfect Florida retreat. Inside, the home offers a spacious and versatile layout: Formal dining room and a separate living room, ideal for entertaining or easily convertible into a home office. The open-concept kitchen overlooks the family room, creating a welcoming space for gatherings – truly the heart of the home! The family room features a cozy wood-burning fireplace and direct access to the large covered lanai. Enjoy a split-bedroom floor plan, offering privacy for family and guests. The primary suite is generously sized with its own private access to the lanai and pool area. Approx. 20 minutes to Downtown Orlando. Easy access to beaches and theme parks. Minutes to Costco, Altamonte Mall, and everyday conveniences. Enjoy nearby Cranes Roost Park, Wekiva Springs, and scenic nature trails. Don’t miss this opportunity to own a lovingly maintained home in a highly sought-after area. Schedule your private tour today and experience the best of Florida living!
Features & Amenities
Interior
-
Total Bedrooms
3
-
Bathrooms
2
-
Cooling YN
YES
-
Cooling
Central Air
-
Fireplace YN
YES
-
Heating YN
YES
-
Heating
Central, Electric
-
Pet friendly
Yes
Exterior
-
Garage
Yes
-
Garage spaces
2
-
Construction Materials
Block, Wood Siding
-
Other Exterior Features
Lighting, Rain Gutters
-
Parking
Garage Door Opener, Attached
-
Patio and Porch Features
Covered, Rear Porch, Screened
-
Pool
Yes
-
Pool Features
Gunite, Private
-
Waterfront YN
NO
Area & Lot
-
Lot Features
Level, Paved
-
Lot Size(acres)
0.27
-
Property Type
Residential
-
Property Sub Type
Single Family Residence
-
Architectural Style
Ranch
Price
-
Sales Price
$420,000
-
Tax Amount
1393.15
-
Sq. Footage
1, 813
-
Price/SqFt
$231
HOA
-
Association
NO
School District
-
Elementary School
Forest City Elementary
-
Middle School
Teague Middle
-
High School
Lake Brantley High
Property Features
-
Stories
1
-
Foundation Details
Slab
-
Ownership
Fee Simple
-
Senior Community YN
NO
-
Sewer
Public Sewer
-
Tax Lot
25
-
Water Source
Public
Schedule a Showing
Showing scheduled successfully.
Mortgage calculator
Estimate your monthly mortgage payment, including the principal and interest, property taxes, and HOA. Adjust the values to generate a more accurate rate.
Your payment
Principal and Interest:
$
Property taxes:
$
HOA fees:
$
Total loan payment:
$
Total interest amount:
$
Location
County
Seminole
Elementary School
Forest City Elementary
Middle School
Teague Middle
High School
Lake Brantley High
Listing Courtesy of Crystal Grohowski, LLC , CORCORAN PREMIER REALTY
RealHub Information is provided exclusively for consumers' personal, non-commercial use, and it may not be used for any purpose other than to identify prospective properties consumers may be interested in purchasing. All information deemed reliable but not guaranteed and should be independently verified. All properties are subject to prior sale, change or withdrawal. RealHub website owner shall not be responsible for any typographical errors, misinformation, misprints and shall be held totally harmless.

FOUNDER
DanielleUrtnowski
Call Danielle today to schedule a private showing.

* Listings on this website come from the FMLS IDX Compilation and may be held by brokerage firms other than the owner of this website. The listing brokerage is identified in any listing details. Information is deemed reliable but is not guaranteed. If you believe any FMLS listing contains material that infringes your copyrighted work please click here to review our DMCA policy and learn how to submit a takedown request.© 2024 FMLS.
