Property
Beds
4
Full Baths
3
1/2 Baths
1
Year Built
2026
Sq.Footage
3,501
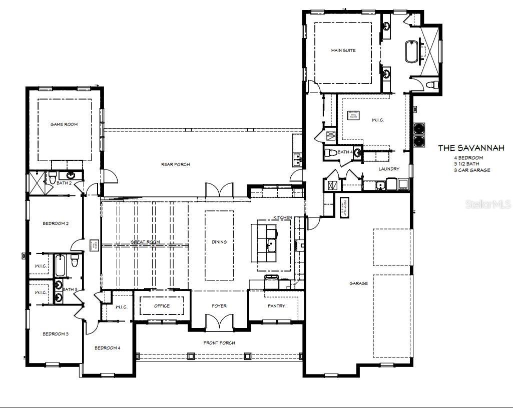
Pre-Construction. To be built. The talented team at Trilogy Homes brings craftsmanship and quality to this custom-built home. Nestled on 4.79 acres on Sugarloaf Mountain, this beautifully designed 5,251 total square foot and 3,501 square-foot living residence offers you the opportunity to select your finishes and truly make it your own. Featuring 4 bedrooms, 3.5 baths, private front and rear porches, a paver driveway leads to an oversized 3 car garage. This home combines elegance and functionality. Entering through the foyer, you'll find a gallery that opens to an incredible open-concept floor plan. The stunning volume ceilings, enhanced with wood-style beams, grace the great room. The kitchen boasts gorgeous quartz countertops, top-of-the-line appliances, a huge walk-in hidden pantry, and an oversized island, perfect for meal preparation and entertainment. The expansive master suite, with coffered ceilings, offers views of the property providing the ultimate in rest and relaxation. The master bathroom features a walk-through shower with multiple showerheads, a soaking tub, and his and her vanities. A walk-in closet has convenient access to the adjoining laundry room. For privacy, a French door opens directly to the lanai. Additional highlights include main-floor bedrooms with high ceilings and ample walk-in closet space, a private office, and a game room with views of the lanai. Call now to schedule an appointment and discover how you can customize this exquisite home to your liking. Minutes from the Minneola Turnpike exit and the new Hospital.
Features & Amenities
Interior
-
Other Interior Features
Coffered Ceiling(s)
-
Total Bedrooms
4
-
Bathrooms
3
-
1/2 Bathrooms
1
-
Cooling YN
YES
-
Cooling
Central Air
-
Fireplace YN
NO
-
Heating YN
YES
-
Heating
Electric
-
Pet friendly
N/A
Exterior
-
Garage
Yes
-
Garage spaces
3
-
Construction Materials
Block
-
Other Exterior Features
Other
-
Parking
Attached
-
Pool
No
-
Waterfront YN
NO
Area & Lot
-
Lot Features
Level, Private, Paved
-
Lot Size(acres)
4.79
-
Property Type
Residential
-
Property Sub Type
Single Family Residence
Price
-
Sales Price
$1,550,000
-
Tax Amount
543.33
-
Sq. Footage
3, 501
-
Price/SqFt
$442
HOA
-
Association
NO
School District
-
Elementary School
N/A
-
Middle School
N/A
-
High School
N/A
Property Features
-
Foundation Details
Slab
-
Ownership
Fee Simple
-
Senior Community YN
NO
-
Sewer
Septic Needed
-
Tax Lot
7
-
Water Source
Private, Well
Schedule a Showing
Showing scheduled successfully.
Mortgage calculator
Estimate your monthly mortgage payment, including the principal and interest, property taxes, and HOA. Adjust the values to generate a more accurate rate.
Your payment
Principal and Interest:
$
Property taxes:
$
HOA fees:
$
Total loan payment:
$
Total interest amount:
$
Location
County
Lake
Elementary School
Middle School
High School
Listing Courtesy of David Babinski , LA ROSA REALTY LLC
RealHub Information is provided exclusively for consumers' personal, non-commercial use, and it may not be used for any purpose other than to identify prospective properties consumers may be interested in purchasing. All information deemed reliable but not guaranteed and should be independently verified. All properties are subject to prior sale, change or withdrawal. RealHub website owner shall not be responsible for any typographical errors, misinformation, misprints and shall be held totally harmless.

FOUNDER
DanielleUrtnowski
Call Danielle today to schedule a private showing.

* Listings on this website come from the FMLS IDX Compilation and may be held by brokerage firms other than the owner of this website. The listing brokerage is identified in any listing details. Information is deemed reliable but is not guaranteed. If you believe any FMLS listing contains material that infringes your copyrighted work please click here to review our DMCA policy and learn how to submit a takedown request.© 2024 FMLS.
