Property
Beds
4
Full Baths
3
1/2 Baths
None
Year Built
2006
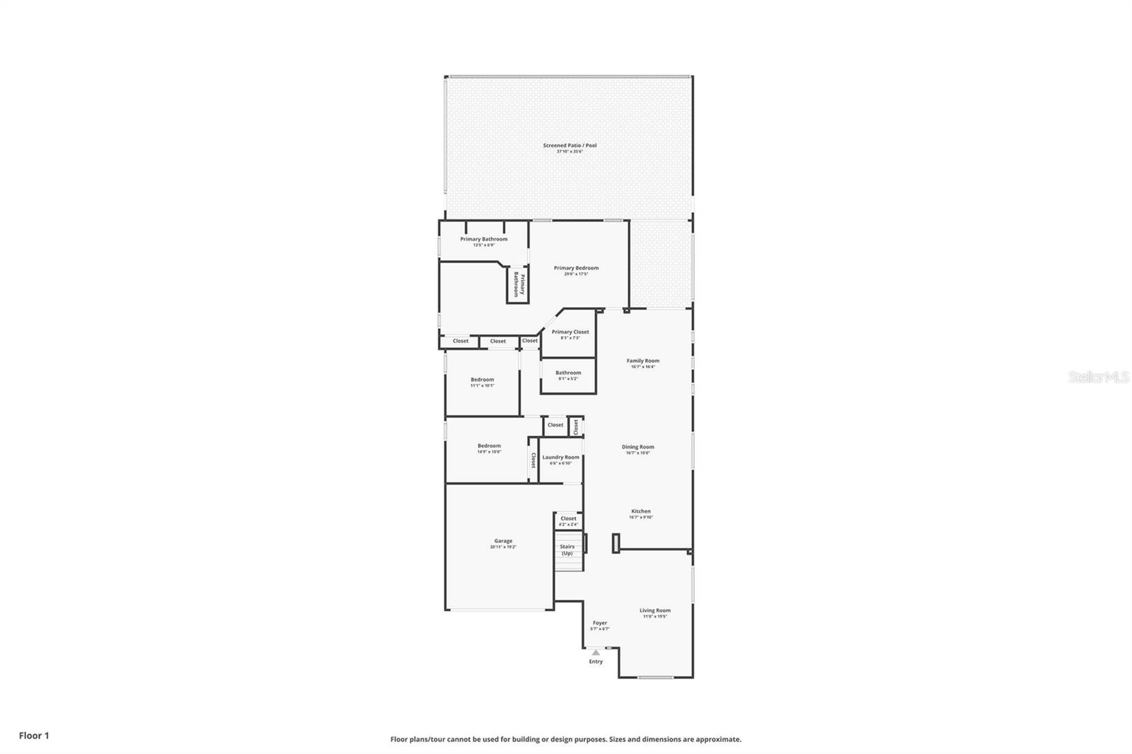
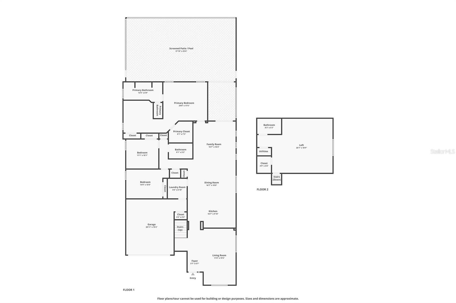
Sq.Footage
2,501
Welcome to 5624 Remsen Cay—a stunning 4-bedroom, 3-bathroom POOL home located in the highly sought-after Summerport community. Originally built as the model home, this property showcases all the prime features you’d expect. From the charming front porch, enjoy a peaceful view of the community pond. Step inside and you’re greeted by soaring ceilings and natural light flowing from the foyer all the way to the back of the home. New Pergo "Spill-proof" laminate floors throughout the living area oshow a seamless transition. At the heart of the house, the chef’s kitchen offers abundant cabinetry and GE stainless steel appliances (upgraded in 2020), while the spacious living room provides the perfect gathering space. The floor plan is thoughtfully designed with two guest bedrooms and a bathroom near the front of the home, and the primary suite tucked away at the rear. The primary retreat features dual closets, a soaking tub, and an attached flex space that can serve as an office, nursery, or dressing room. Upstairs, a large bonus space with its own bathroom makes an ideal guest suite, playroom, movie room, or private office. What truly sets this home apart in Summerport is its private pool—an amenity only select homes in the neighborhood enjoy. Fully screened with a spa and overlooking a serene conservation area, this rare outdoor oasis includes an extended porch plus a new pool pump , filter and gas heater. Even better, the roof was replaced in 2023 (with a 7 year workmanship warranty and lifetime manufacturer warranty), adding peace of mind for years to come. Beyond your doorstep, the Summerport community offers A+ rated schools, a community pool, five playgrounds, and a walkable lifestyle with parks, lakes, and shops nearby.
Features & Amenities
Interior
-
Other Interior Features
Eat-in Kitchen, High Ceilings
-
Total Bedrooms
4
-
Bathrooms
3
-
Cooling YN
YES
-
Cooling
Central Air
-
Fireplace YN
NO
-
Heating YN
YES
-
Heating
Central
-
Pet friendly
Cats OK, Dogs OK
Exterior
-
Garage
Yes
-
Garage spaces
2
-
Construction Materials
Stucco
-
Parking
Attached
-
Patio and Porch Features
Front Porch, Rear Porch
-
Pool
Yes
-
Pool Features
Private
-
Waterfront YN
NO
Area & Lot
-
Lot Size(acres)
0.16
-
Property Type
Residential
-
Property Sub Type
Single Family Residence
-
Architectural Style
Craftsman
Price
-
Sales Price
$627,500
-
Tax Amount
5718.69
-
Sq. Footage
2, 501
-
Price/SqFt
$250
HOA
-
Association
YES
-
Association Fee
$391
-
Association Fee Frequency
Quarterly
-
Association Fee Includes
N/A
School District
-
Elementary School
Keene Crossing Elementary
-
Middle School
Bridgewater Middle
-
High School
Windermere High School
Property Features
-
Stories
2
-
Foundation Details
Block
-
Ownership
Fee Simple
-
Senior Community YN
NO
-
Sewer
Public Sewer
-
Tax Lot
71
-
Water Source
None
Schedule a Showing
Showing scheduled successfully.
Mortgage calculator
Estimate your monthly mortgage payment, including the principal and interest, property taxes, and HOA. Adjust the values to generate a more accurate rate.
Your payment
Principal and Interest:
$
Property taxes:
$
HOA fees:
$
Total loan payment:
$
Total interest amount:
$
Location
County
Orange
Elementary School
Keene Crossing Elementary
Middle School
Bridgewater Middle
High School
Windermere High School
Listing Courtesy of Shelby Serrao , COMPASS FLORIDA LLC
RealHub Information is provided exclusively for consumers' personal, non-commercial use, and it may not be used for any purpose other than to identify prospective properties consumers may be interested in purchasing. All information deemed reliable but not guaranteed and should be independently verified. All properties are subject to prior sale, change or withdrawal. RealHub website owner shall not be responsible for any typographical errors, misinformation, misprints and shall be held totally harmless.

FOUNDER
DanielleUrtnowski
Call Danielle today to schedule a private showing.

* Listings on this website come from the FMLS IDX Compilation and may be held by brokerage firms other than the owner of this website. The listing brokerage is identified in any listing details. Information is deemed reliable but is not guaranteed. If you believe any FMLS listing contains material that infringes your copyrighted work please click here to review our DMCA policy and learn how to submit a takedown request.© 2024 FMLS.
