Property
Beds
5
Full Baths
4
1/2 Baths
None
Year Built
2018
Sq.Footage
3,294
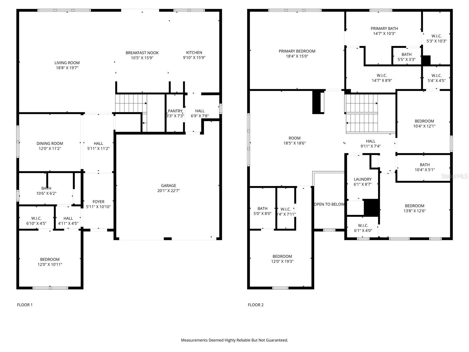
Welcome to a remarkable residence with a large back yard located in the highly sought community of Windermere Isle! This spacious home and location, ideal for families seeking comfort and convenience, features five generously sized bedrooms and 4 well-appointed bathrooms and a loft providing ample space for family and guests. One of the bedrooms and full baths is on the first floor for convenience and privacy for guests. An oversized owners’ suite is spacious and private. The thoughtfully designed floor plan ensures a seamless flow between living areas, enhancing both privacy and connectivity. With a freshly painted exterior, the home's interior is in like-new condition, showcasing meticulous maintenance and attention to detail. A separate dining room with a coffered ceiling adds to the elegance - perfect for entertaining or a flex room/office. One of the standout features of this residence is its serene setting, overlooking a tranquil pond. This peaceful backdrop offers a sense of retreat and relaxation, allowing residents to enjoy Florida's natural beauty from the comfort of their own home. The extended lanai and large back yard are perfect for active play, entertaining or simply unwinding after a long day. The open floor plan with gourmet kitchen, breakfast nook and family room opening to the lanai and makes this a perfect space for elegance in true Florida style! Windermere Isle boasts a neighborhood pool with cabana, playground, and walking paths. Living is easy with the HOA providing lawn maintenance, internet and cable! Located minutes from the Disney attractions, this property offers the unique advantage of being near one of Florida's most sought-after destinations. Whether for work, personal enjoyment or hosting out-of-town guests, the convenience of nearby entertainment and leisure activities is unparalleled. Close to superb public and private schools, SR 429 and the restaurants and shopping in Horizon West this is just the perfect place to call home! You will appreciate the balance of a quiet neighborhood setting with the vibrancy of nearby urban amenities. This home is a rare find in today's market, combining a desirable location, ample living space, and a picturesque setting. Don't miss the opportunity to make this exceptional property your new home. Call me today to schedule a private before it’s gone!
Features & Amenities
Interior
-
Other Interior Features
Coffered Ceiling(s), Crown Molding, High Ceilings, Open Floorplan, Walk-In Closet(s)
-
Total Bedrooms
5
-
Bathrooms
4
-
Cooling YN
YES
-
Cooling
Central Air
-
Fireplace YN
NO
-
Heating YN
YES
-
Heating
Central, Electric
-
Pet friendly
Yes
Exterior
-
Garage
Yes
-
Garage spaces
2
-
Construction Materials
Block
-
Other Exterior Features
Rain Gutters
-
Parking
Attached
-
Patio and Porch Features
Covered, Enclosed, Rear Porch, Screened
-
Pool
No
-
Waterfront YN
NO
-
View
Pond, Water
Area & Lot
-
Lot Size(acres)
0.16
-
Property Type
Residential
-
Property Sub Type
Single Family Residence
Price
-
Sales Price
$850,000
-
Tax Amount
6438.0
-
Sq. Footage
3, 294
-
Price/SqFt
$258
HOA
-
Association
YES
-
Association Fee
$803
-
Association Fee Frequency
Quarterly
-
Association Fee Includes
N/A
School District
-
Elementary School
Castleview Elementary
-
Middle School
Horizon West Middle School
-
High School
Horizon High School
Property Features
-
Association Amenities
Playground, Pool, Trail(s)
-
Foundation Details
Slab
-
Ownership
Fee Simple
-
Senior Community YN
NO
-
Sewer
Public Sewer
-
Tax Lot
880
-
Water Source
Public
Schedule a Showing
Showing scheduled successfully.
Mortgage calculator
Estimate your monthly mortgage payment, including the principal and interest, property taxes, and HOA. Adjust the values to generate a more accurate rate.
Your payment
Principal and Interest:
$
Property taxes:
$
HOA fees:
$
Total loan payment:
$
Total interest amount:
$
Location
County
Orange
Elementary School
Castleview Elementary
Middle School
Horizon West Middle School
High School
Horizon High School
Listing Courtesy of Laurel Kellett , CORCORAN PREMIER REALTY
RealHub Information is provided exclusively for consumers' personal, non-commercial use, and it may not be used for any purpose other than to identify prospective properties consumers may be interested in purchasing. All information deemed reliable but not guaranteed and should be independently verified. All properties are subject to prior sale, change or withdrawal. RealHub website owner shall not be responsible for any typographical errors, misinformation, misprints and shall be held totally harmless.

FOUNDER
DanielleUrtnowski
Call Danielle today to schedule a private showing.

* Listings on this website come from the FMLS IDX Compilation and may be held by brokerage firms other than the owner of this website. The listing brokerage is identified in any listing details. Information is deemed reliable but is not guaranteed. If you believe any FMLS listing contains material that infringes your copyrighted work please click here to review our DMCA policy and learn how to submit a takedown request.© 2024 FMLS.
