Property
Beds
4
Full Baths
3
1/2 Baths
None
Year Built
1995
Sq.Footage
2,861
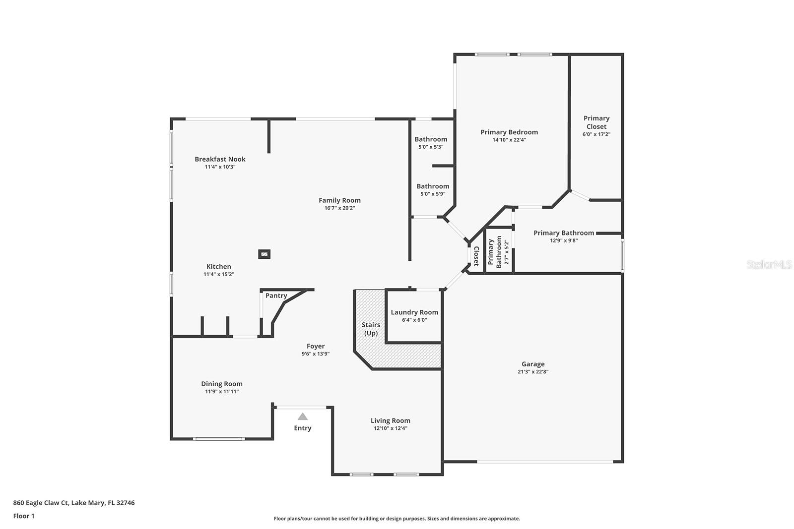
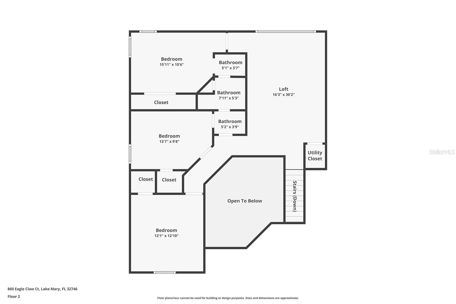
One or more photo(s) has been virtually staged. Located in the renowned Timacuan Golf Community in the heart of Lake Mary. Recently updated with a NEW ROOF, NEW Carrier High Efficiency AC, and NEW carpet! From the moment you enter through the double doors and into the grand 2-story foyer, you'll be impressed by the spacious, light-filled layout, REAL WOOD FLOORING, and CROWN MOLDING throughout every room. The formal living and dining room provide an elegant space for entertaining. The Living Room is also perfect as an office. **Stylish tile floors lead you to the expansive family room and open-concept GOURMET KITCHEN, which overlooks the sparkling SALTWATER POOL with a Newer variable speed pump and a covered lanai. NO REAR NEIGHBORS create a private oasis.** The kitchen features granite countertops, a center cook island with a downdraft fan, a snack bar, breakfast nook, BUILT IN OVENS, and newer appliances—including a NEW cooktop, NEW dishwasher, and Newer refrigerator (2 yrs).**The luxurious primary suite is located on the first floor with views of the the pool and backyard. The Master boasts NEW CARPET, volume ceilings, an expansive walk-in closet, soaking tub, dual vanities, and a separate shower. Next to the Master is the full-size pool bath with an updated vanity top and a tiled shower for added convenience.**Upstairs, you’ll find three generously sized bedrooms, each with crown molding, LARGE CLOSETS, and plenty of natural light. A LARGE LOFT provides flexible living space, while the thoughtfully designed Jack and Jill bathroom includes two separate sink areas and a shared shower separated by 2 doors for added privacy.**Additional highlights include DOUBLE PANE WINDOWS, NEWER SLIDING DOORS in the family room & kitchen, wooden blinds, ceiling fans in nearly every room, crown molding throughout, and lush landscaping with an irrigation system.**This immaculate home offers comfort, functionality, and style—all in a prime location and with a NEW ROOF for peace of mind. Don’t miss your opportunity to own this exceptional property in one of Lake Mary’s premier golf course communities! ** Check out the Virtual Tour Link for a 3D walking tour!
Features & Amenities
Interior
-
Other Interior Features
Crown Molding, Eat-in Kitchen, Stone Counters, Walk-In Closet(s)
-
Total Bedrooms
4
-
Bathrooms
3
-
Cooling YN
YES
-
Cooling
Central Air, Zoned
-
Fireplace YN
NO
-
Heating YN
YES
-
Heating
Central, Heat Pump, Zoned
-
Pet friendly
Number Limit, Yes
Exterior
-
Garage
Yes
-
Garage spaces
2
-
Construction Materials
Block, Stucco, Frame
-
Other Exterior Features
Rain Gutters
-
Parking
Attached
-
Patio and Porch Features
Covered, Enclosed, Patio, Porch, Screened
-
Pool
Yes
-
Pool Features
Gunite, In Ground, Salt Water, Screen Enclosure, Private
-
Waterfront YN
NO
-
View
Trees/Woods
Area & Lot
-
Lot Features
Near Golf Course
-
Lot Size(acres)
0.26
-
Property Type
Residential
-
Property Sub Type
Single Family Residence
-
Architectural Style
Traditional
Price
-
Sales Price
$690,000
-
Tax Amount
5391.0
-
Sq. Footage
2, 861
-
Price/SqFt
$241
HOA
-
Association
YES
-
Association Fee
$312
-
Association Fee Frequency
Quarterly
-
Association Fee Includes
N/A
School District
-
Elementary School
N/A
-
Middle School
N/A
-
High School
N/A
Property Features
-
Foundation Details
Slab
-
Ownership
Fee Simple
-
Senior Community YN
NO
-
Sewer
Public Sewer
-
Tax Lot
15
-
Water Source
Public
Schedule a Showing
Showing scheduled successfully.
Mortgage calculator
Estimate your monthly mortgage payment, including the principal and interest, property taxes, and HOA. Adjust the values to generate a more accurate rate.
Your payment
Principal and Interest:
$
Property taxes:
$
HOA fees:
$
Total loan payment:
$
Total interest amount:
$
Location
County
Seminole
Elementary School
Middle School
High School
Listing Courtesy of Sandy Jablonski , KELLER WILLIAMS ADVANTAGE REALTY
RealHub Information is provided exclusively for consumers' personal, non-commercial use, and it may not be used for any purpose other than to identify prospective properties consumers may be interested in purchasing. All information deemed reliable but not guaranteed and should be independently verified. All properties are subject to prior sale, change or withdrawal. RealHub website owner shall not be responsible for any typographical errors, misinformation, misprints and shall be held totally harmless.

FOUNDER
DanielleUrtnowski
Call Danielle today to schedule a private showing.

* Listings on this website come from the FMLS IDX Compilation and may be held by brokerage firms other than the owner of this website. The listing brokerage is identified in any listing details. Information is deemed reliable but is not guaranteed. If you believe any FMLS listing contains material that infringes your copyrighted work please click here to review our DMCA policy and learn how to submit a takedown request.© 2024 FMLS.
