Property
Beds
3
Full Baths
2
1/2 Baths
None
Year Built
2019
Sq.Footage
1,718
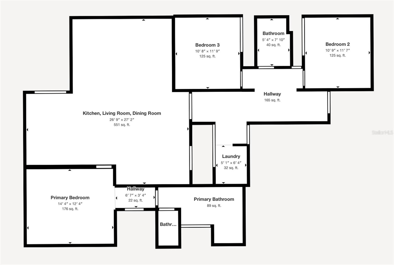
One or more photo(s) has been virtually staged. One or more photos have been virtually staged! Welcome to this beautifully updated 3-bedroom, 2-bathroom home in the heart of Eagle Lake, Florida. With 1,718 square feet of thoughtfully designed living space, this home offers the perfect combination of comfort, style, and functionality. Step inside to discover an inviting open floor plan that seamlessly connects the kitchen, dining, and living areas—perfect for both everyday living and entertaining guests. The kitchen is a standout, featuring solid wood cabinetry, a spacious center island, a new faucet, and a stylish backsplash that adds a modern touch. Natural light fills the living area, enhanced by brand-new tile flooring, while all bedrooms showcase new luxury vinyl plank flooring for a cohesive, contemporary feel. The split-bedroom layout provides privacy and comfort. The spacious primary suite includes a large walk-in closet and a beautifully updated en suite bath with dual sinks and a walk-in shower. Two additional bedrooms and a full guest bath complete the thoughtful layout, offering plenty of space for family, guests, or a home office. Sliding glass doors from the dining area open to a screened-in lanai overlooking the generous backyard—ideal for relaxing, barbecuing, or entertaining. The outdoor space offers endless potential, with room for a garden, play area, or future pool. Additional highlights include a two-car garage, numerous updates throughout, and a desirable location close to schools, shopping, and major roadways for easy commuting. Move-in ready and beautifully maintained, this Eagle Lake gem perfectly combines modern updates with timeless comfort. Schedule your private showing today!
Features & Amenities
Interior
-
Other Interior Features
Open Floorplan, Walk-In Closet(s)
-
Total Bedrooms
3
-
Bathrooms
2
-
Cooling YN
YES
-
Cooling
Central Air
-
Fireplace YN
NO
-
Heating YN
YES
-
Heating
Central
-
Pet friendly
Yes
Exterior
-
Garage
Yes
-
Garage spaces
2
-
Construction Materials
Stucco
-
Other Exterior Features
Lighting
-
Parking
Driveway, Garage Door Opener, Attached
-
Patio and Porch Features
Covered, Front Porch, Patio, Screened
-
Pool
No
-
Waterfront YN
NO
Area & Lot
-
Lot Size(acres)
0.13
-
Property Type
Residential
-
Property Sub Type
Single Family Residence
Price
-
Sales Price
$267,000
-
Tax Amount
4715.0
-
Sq. Footage
1, 718
-
Price/SqFt
$155
HOA
-
Association
YES
-
Association Fee
$500
-
Association Fee Frequency
Annually
-
Association Fee Includes
N/A
School District
-
Elementary School
N/A
-
Middle School
N/A
-
High School
N/A
Property Features
-
Foundation Details
Slab
-
Ownership
Fee Simple
-
Senior Community YN
NO
-
Sewer
Public Sewer
-
Tax Lot
66
-
Water Source
Public
Schedule a Showing
Showing scheduled successfully.
Mortgage calculator
Estimate your monthly mortgage payment, including the principal and interest, property taxes, and HOA. Adjust the values to generate a more accurate rate.
Your payment
Principal and Interest:
$
Property taxes:
$
HOA fees:
$
Total loan payment:
$
Total interest amount:
$
Location
County
Polk
Elementary School
Middle School
High School
Listing Courtesy of Kathi Zerilli , REDFIN CORPORATION
RealHub Information is provided exclusively for consumers' personal, non-commercial use, and it may not be used for any purpose other than to identify prospective properties consumers may be interested in purchasing. All information deemed reliable but not guaranteed and should be independently verified. All properties are subject to prior sale, change or withdrawal. RealHub website owner shall not be responsible for any typographical errors, misinformation, misprints and shall be held totally harmless.

FOUNDER
DanielleUrtnowski
Call Danielle today to schedule a private showing.

* Listings on this website come from the FMLS IDX Compilation and may be held by brokerage firms other than the owner of this website. The listing brokerage is identified in any listing details. Information is deemed reliable but is not guaranteed. If you believe any FMLS listing contains material that infringes your copyrighted work please click here to review our DMCA policy and learn how to submit a takedown request.© 2024 FMLS.
