Property
Beds
4
Full Baths
3
1/2 Baths
1
Year Built
2000
Sq.Footage
2,940
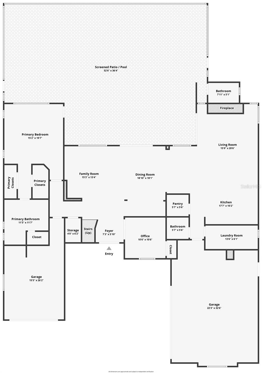
FRESHLY REDUCED - EXCEPTIONAL OPPORTUNITY! Step into a world of refined elegance and sophistication at this masterfully re-imagined estate in the prestigious enclave of Walden Lake. Perfectly situated on nearly an acre at the end of a tranquil cul-de-sac, this 4-bedroom, 3.5-bath custom residence offers an expansive open-concept layout infused with upscale finishes and luxury details throughout. The grand, open floor plan invites effortless entertaining and comfortable living, featuring soaring ceilings, abundant natural light, and seamless transitions between formal and casual living spaces. Every inch of the interior has been thoughtfully transformed into an ensemble of bespoke opulence. Grand entryway doors, foyer lighting and décor appointments, custom staircase and loft railings,lavish window treatments including electronic banded blinds, crown molding and elevated base boards floating on the bourbon marbled luxury vinyl throughout. At the heart of the home lies a gourmet kitchen fit for a culinary enthusiast, featuring a premium three oven array featuring both ZLINE and Janska units, a Janska Professional 48” eight-burner propane range with premium range hood, custom island with farmhouse single basin sink, ZLINE dishwasher and refrigerator, and 42” custom cabinetry. A 120-gallon propane tank ensures peak performance, while designer lighting sets a dramatic tone. Adjacent to the kitchen, a spacious family room and formal dining area create the ideal backdrop for both intimate gatherings and grand affairs replete with wood burning fireplace. The primary suite is a sanctuary unto itself, complete with custom plantation shutters, arched breezeway, tray ceiling and a brand-new spa-inspired en-suite bathroom adorned with premium vanity, free-standing soaking tub and an open shower design. Three additional bedrooms and guest baths offer comfort and style that mirror the home’s refined aesthetic. Step outdoors and discover your private cabana-style oasis. The expansive screen-enclosed pool lanai is a true showstopper—surrounded by lush new landscaping, mature palm trees, new aluminum surround fencing, and a tranquil ambiance perfect for both relaxation and entertaining. Lounge in the shade, dine al fresco, or host unforgettable gatherings in this resort-inspired setting including a custom stained teak tiki bar with outdoor kitchen. The front yard makes a striking impression with a three-tier fountain, manicured grounds, and a newly painted exterior in 2025. Additional enhancements include: WiFi-enabled irrigation system, new outdoor lighting with timer switches, Samsung front-load washer and dryer, garage storage cabinetry, all new hinges and door hardware throughout, new WiFi enabled water heater 2024, and new roof 2022. This exceptional residence blends timeless architecture with contemporary luxury, all set within a well-established and secure community. Rest assured knowing no one can build to the rear of the property as it borders conservation land. 3008 Sutton Woods Dr is more than a home—it’s a statement of lifestyle. Walden Lake features winding golf cart trails, a dog park, and boat ramp onto the lake for non-motorized watercraft. Close to downtown Plant City, minutes from shopping, convenient to West Coast beaches and Orlando theme parks. Schedule your private showing today and experience the pinnacle of Florida living.
Features & Amenities
Interior
-
Other Interior Features
Cathedral Ceiling(s), Crown Molding, Eat-in Kitchen, High Ceilings, Open Floorplan, Stone Counters, Tray Ceiling(s), Vaulted Ceiling(s), Walk-In Closet(s)
-
Total Bedrooms
4
-
Bathrooms
3
-
1/2 Bathrooms
1
-
Cooling YN
YES
-
Cooling
Central Air
-
Fireplace YN
YES
-
Heating YN
YES
-
Heating
Electric
-
Pet friendly
Yes
Exterior
-
Garage
Yes
-
Garage spaces
3
-
Construction Materials
Block, Stucco
-
Other Exterior Features
Awning(s), Garden, Outdoor Kitchen, Rain Gutters
-
Parking
Boat, Circular Driveway, Driveway, Golf Cart Garage, Attached
-
Patio and Porch Features
Deck, Rear Porch, Screened
-
Pool
Yes
-
Pool Features
Heated, In Ground, Private
-
Waterfront YN
NO
-
View
Lake, Water, Park/Greenbelt
Area & Lot
-
Lot Size(acres)
0.91
-
Property Type
Residential
-
Property Sub Type
Single Family Residence
Price
-
Sales Price
$998,000
-
Tax Amount
9394.34
-
Sq. Footage
2, 940
-
Price/SqFt
$339
HOA
-
Association
YES
-
Association Fee
$384
-
Association Fee Frequency
Semi-Annually
-
Association Fee Includes
N/A
School District
-
Elementary School
Walden Lake-HB
-
Middle School
Tomlin-HB
-
High School
Plant City-HB
Property Features
-
Stories
2
-
Foundation Details
Slab
-
Ownership
Fee Simple
-
Senior Community YN
NO
-
Sewer
Public Sewer
-
Tax Lot
28
-
Water Source
Public
Schedule a Showing
Showing scheduled successfully.
Mortgage calculator
Estimate your monthly mortgage payment, including the principal and interest, property taxes, and HOA. Adjust the values to generate a more accurate rate.
Your payment
Principal and Interest:
$
Property taxes:
$
HOA fees:
$
Total loan payment:
$
Total interest amount:
$
Location
County
Hillsborough
Elementary School
Walden Lake-HB
Middle School
Tomlin-HB
High School
Plant City-HB
Listing Courtesy of Walter Givens, PA , LPT REALTY, LLC
RealHub Information is provided exclusively for consumers' personal, non-commercial use, and it may not be used for any purpose other than to identify prospective properties consumers may be interested in purchasing. All information deemed reliable but not guaranteed and should be independently verified. All properties are subject to prior sale, change or withdrawal. RealHub website owner shall not be responsible for any typographical errors, misinformation, misprints and shall be held totally harmless.

FOUNDER
DanielleUrtnowski
Call Danielle today to schedule a private showing.

* Listings on this website come from the FMLS IDX Compilation and may be held by brokerage firms other than the owner of this website. The listing brokerage is identified in any listing details. Information is deemed reliable but is not guaranteed. If you believe any FMLS listing contains material that infringes your copyrighted work please click here to review our DMCA policy and learn how to submit a takedown request.© 2024 FMLS.
