Property
Beds
2
Full Baths
1
1/2 Baths
None
Year Built
2024
Sq.Footage
1,061
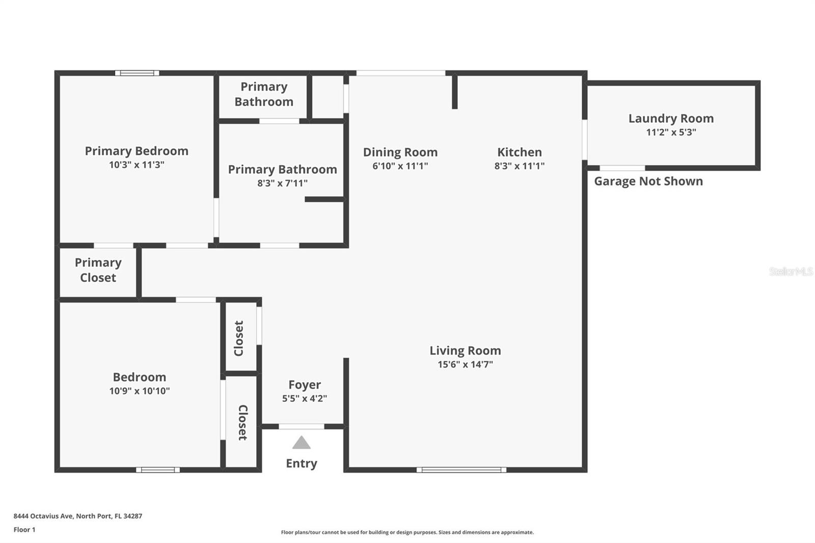
Home of your Dreams! NOT FLOOD ZONE! NEW CONSTRUCTION! Minutes away from Warm Mineral Springs and Wellen Park! Very Private !This beautiful 2 bedroom, 1 bathroom, 1 car garage move-in ready.This home has great curb appeal and may be just what you've been looking for. This home has a wonderfully open floor plan with the great room open to the kitchen with stainless steel appliances . Tile throughout the entire home. Indoor laundry room with a counter and utility sink . With privacy in mind, the master suite is separated from the other two bedrooms. The home sits in a quiet neighborhood located in WARM MINERAL SPRINGS, one of the most popular locations to live. NOT IN A FLOOD ZONE. No deed restrictions or HOA fees. Excellent location, peaceful neighborhood, minutes from I-75 & Tamiami Trail! The perfect place to call home with a central location to shopping, dining, golfing, entertainment, medical facilities, award winning beaches, and the Spring Training home of the Tampa Bay Rays. You don’t want to miss the opportunity to see this incredible home in person. All information deemed reliable, but not guaranteed; buyer to confirm all.
Features & Amenities
Interior
-
Total Bedrooms
2
-
Bathrooms
1
-
Cooling YN
YES
-
Cooling
Central Air
-
Fireplace YN
NO
-
Heating YN
YES
-
Heating
Central
-
Pet friendly
N/A
Exterior
-
Garage
Yes
-
Garage spaces
1
-
Construction Materials
Block, Stucco
-
Parking
Attached
-
Pool
No
-
Waterfront YN
NO
Area & Lot
-
Lot Size(acres)
0.24
-
Property Type
Residential
-
Property Sub Type
Single Family Residence
Price
-
Sales Price
$280,000
-
Tax Amount
1014.0
-
Sq. Footage
1, 061
-
Price/SqFt
$263
HOA
-
Association
NO
School District
-
Elementary School
Englewood Elementary
-
Middle School
SKY Academy Englewood
-
High School
Venice Senior High
Property Features
-
Foundation Details
Slab
-
Ownership
Fee Simple
-
Senior Community YN
NO
-
Sewer
Septic Tank
-
Tax Lot
15
-
Water Source
Private, Well
Schedule a Showing
Showing scheduled successfully.
Mortgage calculator
Estimate your monthly mortgage payment, including the principal and interest, property taxes, and HOA. Adjust the values to generate a more accurate rate.
Your payment
Principal and Interest:
$
Property taxes:
$
HOA fees:
$
Total loan payment:
$
Total interest amount:
$
Location
County
Sarasota
Elementary School
Englewood Elementary
Middle School
SKY Academy Englewood
High School
Venice Senior High
Listing Courtesy of Regina Melman , RE/MAX PALM REALTY OF VENICE
RealHub Information is provided exclusively for consumers' personal, non-commercial use, and it may not be used for any purpose other than to identify prospective properties consumers may be interested in purchasing. All information deemed reliable but not guaranteed and should be independently verified. All properties are subject to prior sale, change or withdrawal. RealHub website owner shall not be responsible for any typographical errors, misinformation, misprints and shall be held totally harmless.

FOUNDER
DanielleUrtnowski
Call Danielle today to schedule a private showing.

* Listings on this website come from the FMLS IDX Compilation and may be held by brokerage firms other than the owner of this website. The listing brokerage is identified in any listing details. Information is deemed reliable but is not guaranteed. If you believe any FMLS listing contains material that infringes your copyrighted work please click here to review our DMCA policy and learn how to submit a takedown request.© 2024 FMLS.
