Property
Beds
3
Full Baths
1
1/2 Baths
None
Year Built
1979
Sq.Footage
1,308
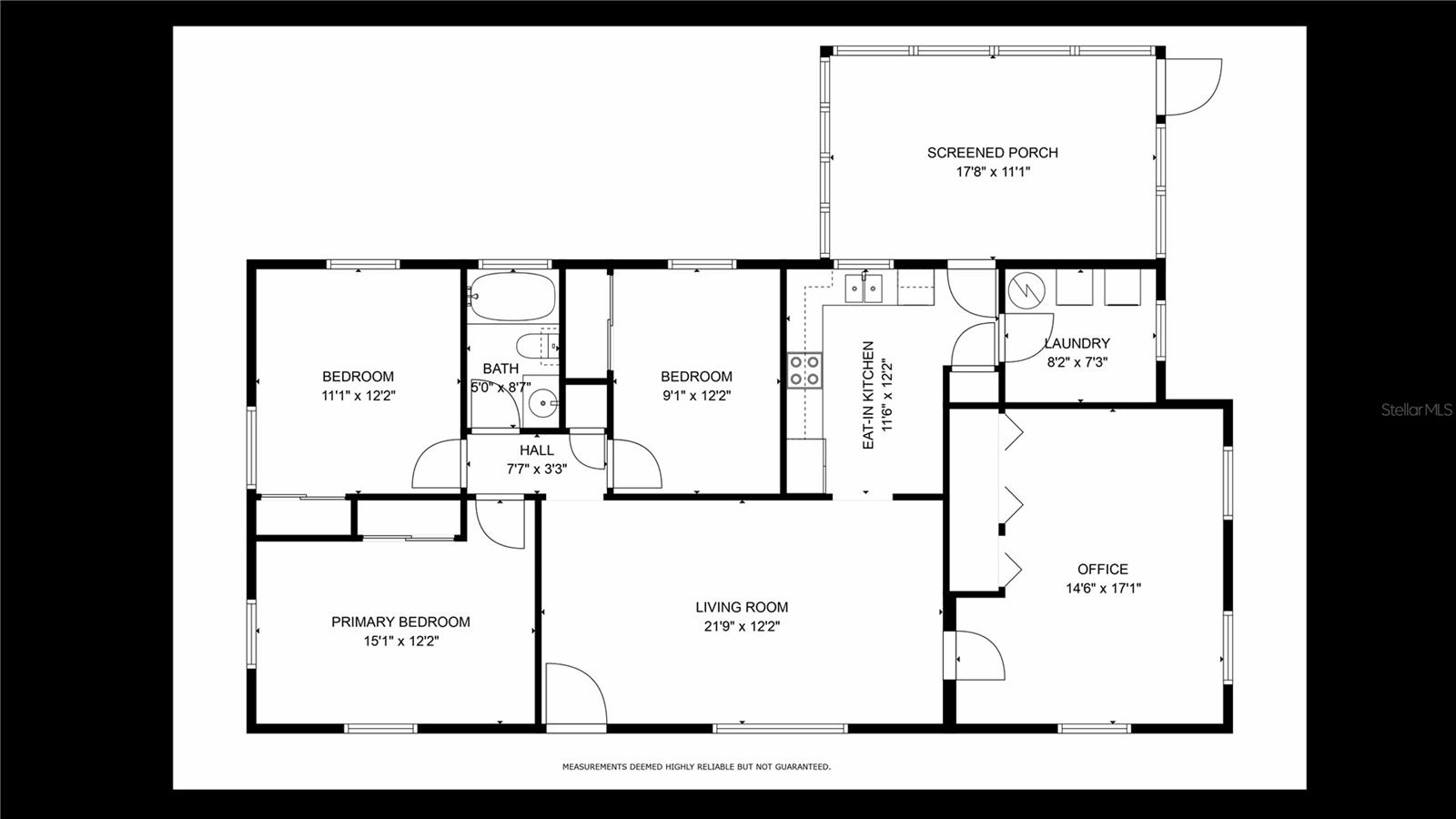
Charming 3-Bedroom Home with Bonus Room on Oversized Lot – Solar Powered! Welcome to your new home! This beautifully maintained 3-bedroom, 2-bath residence features a spacious bonus room that can easily serve as a 4th bedroom, home office, or guest space. Located in a quiet, well-established neighborhood, this home sits on an oversized 0.57-acre lot - plenty of space for outdoor living, gardening, or even future expansion. Built with durable concrete block construction, this home offers peace of mind and lasting value. A new roof was installed in 2018, and in 2022, solar panels were added—fully paid off—which means your average electric bill is only $35/month! Two outbuildings in the backyard, one is a workshop and the second is a storage shed. Enjoy the best of both worlds with a peaceful, suburban feel while being within city limits which offers central water and city sewer. It’s just minutes from beautiful local lakes, as well as shopping, restaurants, and medical facilities. This home offers comfort, efficiency, and convenience in one unbeatable package. Don’t miss the opportunity to make it yours! Schedule a private showing today!
Features & Amenities
Interior
-
Other Interior Features
Eat-in Kitchen
-
Total Bedrooms
3
-
Bathrooms
1
-
Cooling YN
YES
-
Cooling
Central Air
-
Fireplace YN
NO
-
Heating YN
YES
-
Heating
Central, Electric
-
Pet friendly
Yes
Exterior
-
Garage
No
-
Construction Materials
Block
-
Pool
No
-
Waterfront YN
NO
Area & Lot
-
Lot Size(acres)
0.57
-
Property Type
Residential
-
Property Sub Type
Single Family Residence
Price
-
Sales Price
$244,000
-
Tax Amount
1124.26
-
Sq. Footage
1, 308
-
Price/SqFt
$186
HOA
-
Association
NO
School District
-
Elementary School
N/A
-
Middle School
N/A
-
High School
N/A
Property Features
-
Stories
1
-
Foundation Details
Slab
-
Ownership
Fee Simple
-
Senior Community YN
NO
-
Sewer
Public Sewer
-
Tax Lot
17
-
Water Source
None
Schedule a Showing
Showing scheduled successfully.
Mortgage calculator
Estimate your monthly mortgage payment, including the principal and interest, property taxes, and HOA. Adjust the values to generate a more accurate rate.
Your payment
Principal and Interest:
$
Property taxes:
$
HOA fees:
$
Total loan payment:
$
Total interest amount:
$
Location
County
Highlands
Elementary School
Middle School
High School
Listing Courtesy of Nancy Newman May, PA , ADVANTAGE REALTY 1
RealHub Information is provided exclusively for consumers' personal, non-commercial use, and it may not be used for any purpose other than to identify prospective properties consumers may be interested in purchasing. All information deemed reliable but not guaranteed and should be independently verified. All properties are subject to prior sale, change or withdrawal. RealHub website owner shall not be responsible for any typographical errors, misinformation, misprints and shall be held totally harmless.

FOUNDER
DanielleUrtnowski
Call Danielle today to schedule a private showing.

* Listings on this website come from the FMLS IDX Compilation and may be held by brokerage firms other than the owner of this website. The listing brokerage is identified in any listing details. Information is deemed reliable but is not guaranteed. If you believe any FMLS listing contains material that infringes your copyrighted work please click here to review our DMCA policy and learn how to submit a takedown request.© 2024 FMLS.
