Property
Beds
3
Full Baths
2
1/2 Baths
None
Year Built
1997
Sq.Footage
1,216
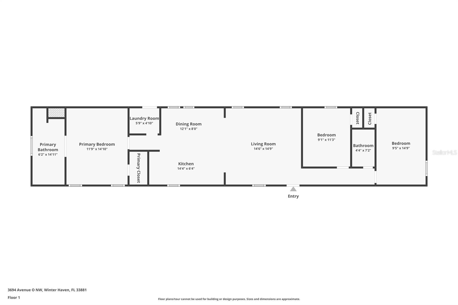
Affordable 3-Bedroom Home on Owned Land! This 1997 manufactured home offers 1,216 sq. ft. of comfortable living space on its own lot—no lot rent! Enjoy a spacious, open floor plan featuring a large living room and kitchen, perfect for gatherings or everyday living. Major updates have already been completed, including a new roof (2019), new septic system (2020), and new A/C (2022). The property also includes a 24 ft x 24 ft concrete block building, partially finished and full of potential—ideal for a workshop, storage, or future guest space. With some cosmetic updates, this home can truly shine! Whether you’re looking for a smart investment opportunity or a starter home, this one checks all the boxes.
Features & Amenities
Interior
-
Other Interior Features
High Ceilings, Open Floorplan
-
Total Bedrooms
3
-
Bathrooms
2
-
Cooling YN
YES
-
Cooling
Central Air
-
Fireplace YN
NO
-
Heating YN
YES
-
Heating
Central
-
Pet friendly
N/A
Exterior
-
Garage
No
-
Construction Materials
Vinyl Siding
-
Other Exterior Features
Storage
-
Patio and Porch Features
Deck
-
Pool
No
-
Waterfront YN
NO
Area & Lot
-
Lot Features
Cleared, Paved
-
Lot Size(acres)
0.21
-
Property Type
Residential
-
Property Sub Type
Manufactured Home
Price
-
Sales Price
$175,000
-
Tax Amount
2003.24
-
Sq. Footage
1, 216
-
Price/SqFt
$143
HOA
-
Association
NO
School District
-
Elementary School
N/A
-
Middle School
N/A
-
High School
N/A
Property Features
-
Stories
1
-
Ownership
Fee Simple
-
Senior Community YN
NO
-
Sewer
Septic Tank
-
Tax Lot
122
-
Water Source
Public
Schedule a Showing
Showing scheduled successfully.
Mortgage calculator
Estimate your monthly mortgage payment, including the principal and interest, property taxes, and HOA. Adjust the values to generate a more accurate rate.
Your payment
Principal and Interest:
$
Property taxes:
$
HOA fees:
$
Total loan payment:
$
Total interest amount:
$
Location
County
Polk
Elementary School
Middle School
High School
Listing Courtesy of Monica Hawkinson , LIVE FLORIDA REALTY
RealHub Information is provided exclusively for consumers' personal, non-commercial use, and it may not be used for any purpose other than to identify prospective properties consumers may be interested in purchasing. All information deemed reliable but not guaranteed and should be independently verified. All properties are subject to prior sale, change or withdrawal. RealHub website owner shall not be responsible for any typographical errors, misinformation, misprints and shall be held totally harmless.

FOUNDER
DanielleUrtnowski
Call Danielle today to schedule a private showing.

* Listings on this website come from the FMLS IDX Compilation and may be held by brokerage firms other than the owner of this website. The listing brokerage is identified in any listing details. Information is deemed reliable but is not guaranteed. If you believe any FMLS listing contains material that infringes your copyrighted work please click here to review our DMCA policy and learn how to submit a takedown request.© 2024 FMLS.
